Коммерческая недвижимость в Деденево - Страница 21
- Деденево »
- Недвижимость
- » Коммерческая недвижимость в Деденево
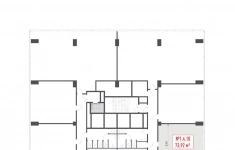
Бизнес-центр LINK представляет собой многофункциональный кластер, объединяющий современные офисы класса B+ и складские помещения для эффективной работы в одном месте. LINK расположен на западе Москвы в районе Очаково-Матвеевское. Благодаря такому расположению до любой точки Москвы можно добраться всего за 20 минут. Это особенно ценно для компаний, в чьей операционной модели ключевую роль играет логистика.
Транспортная доступность:
- 1 минута до МКАД, СЗХ
- 5 минут до Можайского шоссе
- 2 минуты до Проспекта Генерала Дорохова
- 20 минут до ТТК
- Ближайшие станции метро: «Озерная», «Мичуринский проспект», «Говорово»
Характеристики:
- Общая офисная площадь: 48 800 м
- Две офисные башни: NEO и RUNE
- Офисы различного масштаба: от 71 до 1 538 м
- Количество машино-мест: 170
- Срок сдачи: 4 квартал 2028
Условия продажи:
Все офисы сдаются без отделки, что позволяет арендаторам спроектировать и реализовать интерьер под свои конкретные бизнес-задачи и корпоративную культуру. Помимо реализации на условиях полной предоплаты, предусмотрена возможность удобной рассрочки.
О компании MR Group:
MR Group - один из ведущих девелоперов России, который на протяжении 22 лет формирует ключевые принципы, определяющие каждое новое пространство. Компания известна смелыми архитектурными и инженерными решениями, сотрудничеством с мировыми дизайн-бюро и культурными институциями, а также внедрением передовых экологичных технологий. В 2025 году MR объединяет свои проекты офисной недвижимости под новым брендом - MR Group, предлагая 25 объектов общей площадью 2,1 млн м в ключевых бизнес-локациях Москвы.
03.12.2025
21 436 800 ₽
Бизнес-центр LINK представляет собой многофункциональный кластер, объединяющий современные офисы класса B+ и складские помещения для эффективной работы в одном месте. LINK расположен на западе Москвы в районе Очаково-Матвеевское. Благодаря такому расположению до любой точки Москвы можно добраться всего за 20 минут. Это особенно ценно для компаний, в чьей операционной модели ключевую роль играет логистика.
Транспортная доступность:
- 1 минута до МКАД, СЗХ
- 5 минут до Можайского шоссе
- 2 минуты до Проспекта Генерала Дорохова
- 20 минут до ТТК
- Ближайшие станции метро: «Озерная», «Мичуринский проспект», «Говорово»
Характеристики:
- Общая офисная площадь: 48 800 м
- Две офисные башни: NEO и RUNE
- Офисы различного масштаба: от 71 до 1 538 м
- Количество машино-мест: 170
- Срок сдачи: 4 квартал 2028
Условия продажи:
Все офисы сдаются без отделки, что позволяет арендаторам спроектировать и реализовать интерьер под свои конкретные бизнес-задачи и корпоративную культуру. Помимо реализации на условиях полной предоплаты, предусмотрена возможность удобной рассрочки.
О компании MR Group:
MR Group - один из ведущих девелоперов России, который на протяжении 22 лет формирует ключевые принципы, определяющие каждое новое пространство. Компания известна смелыми архитектурными и инженерными решениями, сотрудничеством с мировыми дизайн-бюро и культурными институциями, а также внедрением передовых экологичных технологий. В 2025 году MR объединяет свои проекты офисной недвижимости под новым брендом - MR Group, предлагая 25 объектов общей площадью 2,1 млн м в ключевых бизнес-локациях Москвы.
03.12.2025
21 711 550 ₽
Бизнес-центр LINK представляет собой многофункциональный кластер, объединяющий современные офисы класса B+ и складские помещения для эффективной работы в одном месте. LINK расположен на западе Москвы в районе Очаково-Матвеевское. Благодаря такому расположению до любой точки Москвы можно добраться всего за 20 минут. Это особенно ценно для компаний, в чьей операционной модели ключевую роль играет логистика.
Транспортная доступность:
- 1 минута до МКАД, СЗХ
- 5 минут до Можайского шоссе
- 2 минуты до Проспекта Генерала Дорохова
- 20 минут до ТТК
- Ближайшие станции метро: «Озерная», «Мичуринский проспект», «Говорово»
Характеристики:
- Общая офисная площадь: 48 800 м
- Две офисные башни: NEO и RUNE
- Офисы различного масштаба: от 71 до 1 538 м
- Количество машино-мест: 170
- Срок сдачи: 4 квартал 2028
Условия продажи:
Все офисы сдаются без отделки, что позволяет арендаторам спроектировать и реализовать интерьер под свои конкретные бизнес-задачи и корпоративную культуру. Помимо реализации на условиях полной предоплаты, предусмотрена возможность удобной рассрочки.
О компании MR Group:
MR Group - один из ведущих девелоперов России, который на протяжении 22 лет формирует ключевые принципы, определяющие каждое новое пространство. Компания известна смелыми архитектурными и инженерными решениями, сотрудничеством с мировыми дизайн-бюро и культурными институциями, а также внедрением передовых экологичных технологий. В 2025 году MR объединяет свои проекты офисной недвижимости под новым брендом - MR Group, предлагая 25 объектов общей площадью 2,1 млн м в ключевых бизнес-локациях Москвы.
03.12.2025
21 257 650 ₽
Бизнес-центр LINK представляет собой многофункциональный кластер, объединяющий современные офисы класса B+ и складские помещения для эффективной работы в одном месте. LINK расположен на западе Москвы в районе Очаково-Матвеевское. Благодаря такому расположению до любой точки Москвы можно добраться всего за 20 минут. Это особенно ценно для компаний, в чьей операционной модели ключевую роль играет логистика.
Транспортная доступность:
- 1 минута до МКАД, СЗХ
- 5 минут до Можайского шоссе
- 2 минуты до Проспекта Генерала Дорохова
- 20 минут до ТТК
- Ближайшие станции метро: «Озерная», «Мичуринский проспект», «Говорово»
Характеристики:
- Общая офисная площадь: 48 800 м
- Две офисные башни: NEO и RUNE
- Офисы различного масштаба: от 71 до 1 538 м
- Количество машино-мест: 170
- Срок сдачи: 4 квартал 2028
Условия продажи:
Все офисы сдаются без отделки, что позволяет арендаторам спроектировать и реализовать интерьер под свои конкретные бизнес-задачи и корпоративную культуру. Помимо реализации на условиях полной предоплаты, предусмотрена возможность удобной рассрочки.
О компании MR Group:
MR Group - один из ведущих девелоперов России, который на протяжении 22 лет формирует ключевые принципы, определяющие каждое новое пространство. Компания известна смелыми архитектурными и инженерными решениями, сотрудничеством с мировыми дизайн-бюро и культурными институциями, а также внедрением передовых экологичных технологий. В 2025 году MR объединяет свои проекты офисной недвижимости под новым брендом - MR Group, предлагая 25 объектов общей площадью 2,1 млн м в ключевых бизнес-локациях Москвы.
03.12.2025
20 993 280 ₽
Бизнес-центр LINK представляет собой многофункциональный кластер, объединяющий современные офисы класса B+ и складские помещения для эффективной работы в одном месте. LINK расположен на западе Москвы в районе Очаково-Матвеевское. Благодаря такому расположению до любой точки Москвы можно добраться всего за 20 минут. Это особенно ценно для компаний, в чьей операционной модели ключевую роль играет логистика.
Транспортная доступность:
- 1 минута до МКАД, СЗХ
- 5 минут до Можайского шоссе
- 2 минуты до Проспекта Генерала Дорохова
- 20 минут до ТТК
- Ближайшие станции метро: «Озерная», «Мичуринский проспект», «Говорово»
Характеристики:
- Общая офисная площадь: 48 800 м
- Две офисные башни: NEO и RUNE
- Офисы различного масштаба: от 71 до 1 538 м
- Количество машино-мест: 170
- Срок сдачи: 4 квартал 2028
Условия продажи:
Все офисы сдаются без отделки, что позволяет арендаторам спроектировать и реализовать интерьер под свои конкретные бизнес-задачи и корпоративную культуру. Помимо реализации на условиях полной предоплаты, предусмотрена возможность удобной рассрочки.
О компании MR Group:
MR Group - один из ведущих девелоперов России, который на протяжении 22 лет формирует ключевые принципы, определяющие каждое новое пространство. Компания известна смелыми архитектурными и инженерными решениями, сотрудничеством с мировыми дизайн-бюро и культурными институциями, а также внедрением передовых экологичных технологий. В 2025 году MR объединяет свои проекты офисной недвижимости под новым брендом - MR Group, предлагая 25 объектов общей площадью 2,1 млн м в ключевых бизнес-локациях Москвы.
03.12.2025
20 771 520 ₽
Бизнес-центр LINK представляет собой многофункциональный кластер, объединяющий современные офисы класса B+ и складские помещения для эффективной работы в одном месте. LINK расположен на западе Москвы в районе Очаково-Матвеевское. Благодаря такому расположению до любой точки Москвы можно добраться всего за 20 минут. Это особенно ценно для компаний, в чьей операционной модели ключевую роль играет логистика.
Транспортная доступность:
- 1 минута до МКАД, СЗХ
- 5 минут до Можайского шоссе
- 2 минуты до Проспекта Генерала Дорохова
- 20 минут до ТТК
- Ближайшие станции метро: «Озерная», «Мичуринский проспект», «Говорово»
Характеристики:
- Общая офисная площадь: 48 800 м
- Две офисные башни: NEO и RUNE
- Офисы различного масштаба: от 71 до 1 538 м
- Количество машино-мест: 170
- Срок сдачи: 4 квартал 2028
Условия продажи:
Все офисы сдаются без отделки, что позволяет арендаторам спроектировать и реализовать интерьер под свои конкретные бизнес-задачи и корпоративную культуру. Помимо реализации на условиях полной предоплаты, предусмотрена возможность удобной рассрочки.
О компании MR Group:
MR Group - один из ведущих девелоперов России, который на протяжении 22 лет формирует ключевые принципы, определяющие каждое новое пространство. Компания известна смелыми архитектурными и инженерными решениями, сотрудничеством с мировыми дизайн-бюро и культурными институциями, а также внедрением передовых экологичных технологий. В 2025 году MR объединяет свои проекты офисной недвижимости под новым брендом - MR Group, предлагая 25 объектов общей площадью 2,1 млн м в ключевых бизнес-локациях Москвы.
03.12.2025
20 549 760 ₽
Бизнес-центр LINK представляет собой многофункциональный кластер, объединяющий современные офисы класса B+ и складские помещения для эффективной работы в одном месте. LINK расположен на западе Москвы в районе Очаково-Матвеевское. Благодаря такому расположению до любой точки Москвы можно добраться всего за 20 минут. Это особенно ценно для компаний, в чьей операционной модели ключевую роль играет логистика.
Транспортная доступность:
- 1 минута до МКАД, СЗХ
- 5 минут до Можайского шоссе
- 2 минуты до Проспекта Генерала Дорохова
- 20 минут до ТТК
- Ближайшие станции метро: «Озерная», «Мичуринский проспект», «Говорово»
Характеристики:
- Общая офисная площадь: 48 800 м
- Две офисные башни: NEO и RUNE
- Офисы различного масштаба: от 71 до 1 538 м
- Количество машино-мест: 170
- Срок сдачи: 4 квартал 2028
Условия продажи:
Все офисы сдаются без отделки, что позволяет арендаторам спроектировать и реализовать интерьер под свои конкретные бизнес-задачи и корпоративную культуру. Помимо реализации на условиях полной предоплаты, предусмотрена возможность удобной рассрочки.
О компании MR Group:
MR Group - один из ведущих девелоперов России, который на протяжении 22 лет формирует ключевые принципы, определяющие каждое новое пространство. Компания известна смелыми архитектурными и инженерными решениями, сотрудничеством с мировыми дизайн-бюро и культурными институциями, а также внедрением передовых экологичных технологий. В 2025 году MR объединяет свои проекты офисной недвижимости под новым брендом - MR Group, предлагая 25 объектов общей площадью 2,1 млн м в ключевых бизнес-локациях Москвы.
03.12.2025
20 549 760 ₽
Бизнес-центр LINK представляет собой многофункциональный кластер, объединяющий современные офисы класса B+ и складские помещения для эффективной работы в одном месте. LINK расположен на западе Москвы в районе Очаково-Матвеевское. Благодаря такому расположению до любой точки Москвы можно добраться всего за 20 минут. Это особенно ценно для компаний, в чьей операционной модели ключевую роль играет логистика.
Транспортная доступность:
- 1 минута до МКАД, СЗХ
- 5 минут до Можайского шоссе
- 2 минуты до Проспекта Генерала Дорохова
- 20 минут до ТТК
- Ближайшие станции метро: «Озерная», «Мичуринский проспект», «Говорово»
Характеристики:
- Общая офисная площадь: 48 800 м
- Две офисные башни: NEO и RUNE
- Офисы различного масштаба: от 71 до 1 538 м
- Количество машино-мест: 170
- Срок сдачи: 4 квартал 2028
Условия продажи:
Все офисы сдаются без отделки, что позволяет арендаторам спроектировать и реализовать интерьер под свои конкретные бизнес-задачи и корпоративную культуру. Помимо реализации на условиях полной предоплаты, предусмотрена возможность удобной рассрочки.
О компании MR Group:
MR Group - один из ведущих девелоперов России, который на протяжении 22 лет формирует ключевые принципы, определяющие каждое новое пространство. Компания известна смелыми архитектурными и инженерными решениями, сотрудничеством с мировыми дизайн-бюро и культурными институциями, а также внедрением передовых экологичных технологий. В 2025 году MR объединяет свои проекты офисной недвижимости под новым брендом - MR Group, предлагая 25 объектов общей площадью 2,1 млн м в ключевых бизнес-локациях Москвы.
03.12.2025
20 509 020 ₽
Бизнес-центр LINK представляет собой многофункциональный кластер, объединяющий современные офисы класса B+ и складские помещения для эффективной работы в одном месте. LINK расположен на западе Москвы в районе Очаково-Матвеевское. Благодаря такому расположению до любой точки Москвы можно добраться всего за 20 минут. Это особенно ценно для компаний, в чьей операционной модели ключевую роль играет логистика.
Транспортная доступность:
- 1 минута до МКАД, СЗХ
- 5 минут до Можайского шоссе
- 2 минуты до Проспекта Генерала Дорохова
- 20 минут до ТТК
- Ближайшие станции метро: «Озерная», «Мичуринский проспект», «Говорово»
Характеристики:
- Общая офисная площадь: 48 800 м
- Две офисные башни: NEO и RUNE
- Офисы различного масштаба: от 71 до 1 538 м
- Количество машино-мест: 170
- Срок сдачи: 4 квартал 2028
Условия продажи:
Все офисы сдаются без отделки, что позволяет арендаторам спроектировать и реализовать интерьер под свои конкретные бизнес-задачи и корпоративную культуру. Помимо реализации на условиях полной предоплаты, предусмотрена возможность удобной рассрочки.
О компании MR Group:
MR Group - один из ведущих девелоперов России, который на протяжении 22 лет формирует ключевые принципы, определяющие каждое новое пространство. Компания известна смелыми архитектурными и инженерными решениями, сотрудничеством с мировыми дизайн-бюро и культурными институциями, а также внедрением передовых экологичных технологий. В 2025 году MR объединяет свои проекты офисной недвижимости под новым брендом - MR Group, предлагая 25 объектов общей площадью 2,1 млн м в ключевых бизнес-локациях Москвы.
03.12.2025
20 294 640 ₽
Бизнес-центр LINK представляет собой многофункциональный кластер, объединяющий современные офисы класса B+ и складские помещения для эффективной работы в одном месте. LINK расположен на западе Москвы в районе Очаково-Матвеевское. Благодаря такому расположению до любой точки Москвы можно добраться всего за 20 минут. Это особенно ценно для компаний, в чьей операционной модели ключевую роль играет логистика.
Транспортная доступность:
- 1 минута до МКАД, СЗХ
- 5 минут до Можайского шоссе
- 2 минуты до Проспекта Генерала Дорохова
- 20 минут до ТТК
- Ближайшие станции метро: «Озерная», «Мичуринский проспект», «Говорово»
Характеристики:
- Общая офисная площадь: 48 800 м
- Две офисные башни: NEO и RUNE
- Офисы различного масштаба: от 71 до 1 538 м
- Количество машино-мест: 170
- Срок сдачи: 4 квартал 2028
Условия продажи:
Все офисы сдаются без отделки, что позволяет арендаторам спроектировать и реализовать интерьер под свои конкретные бизнес-задачи и корпоративную культуру. Помимо реализации на условиях полной предоплаты, предусмотрена возможность удобной рассрочки.
О компании MR Group:
MR Group - один из ведущих девелоперов России, который на протяжении 22 лет формирует ключевые принципы, определяющие каждое новое пространство. Компания известна смелыми архитектурными и инженерными решениями, сотрудничеством с мировыми дизайн-бюро и культурными институциями, а также внедрением передовых экологичных технологий. В 2025 году MR объединяет свои проекты офисной недвижимости под новым брендом - MR Group, предлагая 25 объектов общей площадью 2,1 млн м в ключевых бизнес-локациях Москвы.
03.12.2025
19 865 880 ₽
Бизнес-центр LINK представляет собой многофункциональный кластер, объединяющий современные офисы класса B+ и складские помещения для эффективной работы в одном месте. LINK расположен на западе Москвы в районе Очаково-Матвеевское. Благодаря такому расположению до любой точки Москвы можно добраться всего за 20 минут. Это особенно ценно для компаний, в чьей операционной модели ключевую роль играет логистика.
Транспортная доступность:
- 1 минута до МКАД, СЗХ
- 5 минут до Можайского шоссе
- 2 минуты до Проспекта Генерала Дорохова
- 20 минут до ТТК
- Ближайшие станции метро: «Озерная», «Мичуринский проспект», «Говорово»
Характеристики:
- Общая офисная площадь: 48 800 м
- Две офисные башни: NEO и RUNE
- Офисы различного масштаба: от 71 до 1 538 м
- Количество машино-мест: 170
- Срок сдачи: 4 квартал 2028
Условия продажи:
Все офисы сдаются без отделки, что позволяет арендаторам спроектировать и реализовать интерьер под свои конкретные бизнес-задачи и корпоративную культуру. Помимо реализации на условиях полной предоплаты, предусмотрена возможность удобной рассрочки.
О компании MR Group:
MR Group - один из ведущих девелоперов России, который на протяжении 22 лет формирует ключевые принципы, определяющие каждое новое пространство. Компания известна смелыми архитектурными и инженерными решениями, сотрудничеством с мировыми дизайн-бюро и культурными институциями, а также внедрением передовых экологичных технологий. В 2025 году MR объединяет свои проекты офисной недвижимости под новым брендом - MR Group, предлагая 25 объектов общей площадью 2,1 млн м в ключевых бизнес-локациях Москвы.
03.12.2025
21 215 040 ₽
Бизнес-центр LINK представляет собой многофункциональный кластер, объединяющий современные офисы класса B+ и складские помещения для эффективной работы в одном месте. LINK расположен на западе Москвы в районе Очаково-Матвеевское. Благодаря такому расположению до любой точки Москвы можно добраться всего за 20 минут. Это особенно ценно для компаний, в чьей операционной модели ключевую роль играет логистика.
Транспортная доступность:
- 1 минута до МКАД, СЗХ
- 5 минут до Можайского шоссе
- 2 минуты до Проспекта Генерала Дорохова
- 20 минут до ТТК
- Ближайшие станции метро: «Озерная», «Мичуринский проспект», «Говорово»
Характеристики:
- Общая офисная площадь: 48 800 м
- Две офисные башни: NEO и RUNE
- Офисы различного масштаба: от 71 до 1 538 м
- Количество машино-мест: 170
- Срок сдачи: 4 квартал 2028
Условия продажи:
Все офисы сдаются без отделки, что позволяет арендаторам спроектировать и реализовать интерьер под свои конкретные бизнес-задачи и корпоративную культуру. Помимо реализации на условиях полной предоплаты, предусмотрена возможность удобной рассрочки.
О компании MR Group:
MR Group - один из ведущих девелоперов России, который на протяжении 22 лет формирует ключевые принципы, определяющие каждое новое пространство. Компания известна смелыми архитектурными и инженерными решениями, сотрудничеством с мировыми дизайн-бюро и культурными институциями, а также внедрением передовых экологичных технологий. В 2025 году MR объединяет свои проекты офисной недвижимости под новым брендом - MR Group, предлагая 25 объектов общей площадью 2,1 млн м в ключевых бизнес-локациях Москвы.
03.12.2025
20 993 280 ₽
Бизнес-центр LINK представляет собой многофункциональный кластер, объединяющий современные офисы класса B+ и складские помещения для эффективной работы в одном месте. LINK расположен на западе Москвы в районе Очаково-Матвеевское. Благодаря такому расположению до любой точки Москвы можно добраться всего за 20 минут. Это особенно ценно для компаний, в чьей операционной модели ключевую роль играет логистика.
Транспортная доступность:
- 1 минута до МКАД, СЗХ
- 5 минут до Можайского шоссе
- 2 минуты до Проспекта Генерала Дорохова
- 20 минут до ТТК
- Ближайшие станции метро: «Озерная», «Мичуринский проспект», «Говорово»
Характеристики:
- Общая офисная площадь: 48 800 м
- Две офисные башни: NEO и RUNE
- Офисы различного масштаба: от 71 до 1 538 м
- Количество машино-мест: 170
- Срок сдачи: 4 квартал 2028
Условия продажи:
Все офисы сдаются без отделки, что позволяет арендаторам спроектировать и реализовать интерьер под свои конкретные бизнес-задачи и корпоративную культуру. Помимо реализации на условиях полной предоплаты, предусмотрена возможность удобной рассрочки.
О компании MR Group:
MR Group - один из ведущих девелоперов России, который на протяжении 22 лет формирует ключевые принципы, определяющие каждое новое пространство. Компания известна смелыми архитектурными и инженерными решениями, сотрудничеством с мировыми дизайн-бюро и культурными институциями, а также внедрением передовых экологичных технологий. В 2025 году MR объединяет свои проекты офисной недвижимости под новым брендом - MR Group, предлагая 25 объектов общей площадью 2,1 млн м в ключевых бизнес-локациях Москвы.
03.12.2025
21 215 040 ₽
Бизнес-центр LINK представляет собой многофункциональный кластер, объединяющий современные офисы класса B+ и складские помещения для эффективной работы в одном месте. LINK расположен на западе Москвы в районе Очаково-Матвеевское. Благодаря такому расположению до любой точки Москвы можно добраться всего за 20 минут. Это особенно ценно для компаний, в чьей операционной модели ключевую роль играет логистика.
Транспортная доступность:
- 1 минута до МКАД, СЗХ
- 5 минут до Можайского шоссе
- 2 минуты до Проспекта Генерала Дорохова
- 20 минут до ТТК
- Ближайшие станции метро: «Озерная», «Мичуринский проспект», «Говорово»
Характеристики:
- Общая офисная площадь: 48 800 м
- Две офисные башни: NEO и RUNE
- Офисы различного масштаба: от 71 до 1 538 м
- Количество машино-мест: 170
- Срок сдачи: 4 квартал 2028
Условия продажи:
Все офисы сдаются без отделки, что позволяет арендаторам спроектировать и реализовать интерьер под свои конкретные бизнес-задачи и корпоративную культуру. Помимо реализации на условиях полной предоплаты, предусмотрена возможность удобной рассрочки.
О компании MR Group:
MR Group - один из ведущих девелоперов России, который на протяжении 22 лет формирует ключевые принципы, определяющие каждое новое пространство. Компания известна смелыми архитектурными и инженерными решениями, сотрудничеством с мировыми дизайн-бюро и культурными институциями, а также внедрением передовых экологичных технологий. В 2025 году MR объединяет свои проекты офисной недвижимости под новым брендом - MR Group, предлагая 25 объектов общей площадью 2,1 млн м в ключевых бизнес-локациях Москвы.
03.12.2025
19 865 880 ₽
Бизнес-центр LINK представляет собой многофункциональный кластер, объединяющий современные офисы класса B+ и складские помещения для эффективной работы в одном месте. LINK расположен на западе Москвы в районе Очаково-Матвеевское. Благодаря такому расположению до любой точки Москвы можно добраться всего за 20 минут. Это особенно ценно для компаний, в чьей операционной модели ключевую роль играет логистика.
Транспортная доступность:
- 1 минута до МКАД, СЗХ
- 5 минут до Можайского шоссе
- 2 минуты до Проспекта Генерала Дорохова
- 20 минут до ТТК
- Ближайшие станции метро: «Озерная», «Мичуринский проспект», «Говорово»
Характеристики:
- Общая офисная площадь: 48 800 м
- Две офисные башни: NEO и RUNE
- Офисы различного масштаба: от 71 до 1 538 м
- Количество машино-мест: 170
- Срок сдачи: 4 квартал 2028
Условия продажи:
Все офисы сдаются без отделки, что позволяет арендаторам спроектировать и реализовать интерьер под свои конкретные бизнес-задачи и корпоративную культуру. Помимо реализации на условиях полной предоплаты, предусмотрена возможность удобной рассрочки.
О компании MR Group:
MR Group - один из ведущих девелоперов России, который на протяжении 22 лет формирует ключевые принципы, определяющие каждое новое пространство. Компания известна смелыми архитектурными и инженерными решениями, сотрудничеством с мировыми дизайн-бюро и культурными институциями, а также внедрением передовых экологичных технологий. В 2025 году MR объединяет свои проекты офисной недвижимости под новым брендом - MR Group, предлагая 25 объектов общей площадью 2,1 млн м в ключевых бизнес-локациях Москвы.
03.12.2025
21 723 840 ₽
Бизнес-центр LINK представляет собой многофункциональный кластер, объединяющий современные офисы класса B+ и складские помещения для эффективной работы в одном месте. LINK расположен на западе Москвы в районе Очаково-Матвеевское. Благодаря такому расположению до любой точки Москвы можно добраться всего за 20 минут. Это особенно ценно для компаний, в чьей операционной модели ключевую роль играет логистика.
Транспортная доступность:
- 1 минута до МКАД, СЗХ
- 5 минут до Можайского шоссе
- 2 минуты до Проспекта Генерала Дорохова
- 20 минут до ТТК
- Ближайшие станции метро: «Озерная», «Мичуринский проспект», «Говорово»
Характеристики:
- Общая офисная площадь: 48 800 м
- Две офисные башни: NEO и RUNE
- Офисы различного масштаба: от 71 до 1 538 м
- Количество машино-мест: 170
- Срок сдачи: 4 квартал 2028
Условия продажи:
Все офисы сдаются без отделки, что позволяет арендаторам спроектировать и реализовать интерьер под свои конкретные бизнес-задачи и корпоративную культуру. Помимо реализации на условиях полной предоплаты, предусмотрена возможность удобной рассрочки.
О компании MR Group:
MR Group - один из ведущих девелоперов России, который на протяжении 22 лет формирует ключевые принципы, определяющие каждое новое пространство. Компания известна смелыми архитектурными и инженерными решениями, сотрудничеством с мировыми дизайн-бюро и культурными институциями, а также внедрением передовых экологичных технологий. В 2025 году MR объединяет свои проекты офисной недвижимости под новым брендом - MR Group, предлагая 25 объектов общей площадью 2,1 млн м в ключевых бизнес-локациях Москвы.
03.12.2025
21 030 700 ₽
Бизнес-центр LINK представляет собой многофункциональный кластер, объединяющий современные офисы класса B+ и складские помещения для эффективной работы в одном месте. LINK расположен на западе Москвы в районе Очаково-Матвеевское. Благодаря такому расположению до любой точки Москвы можно добраться всего за 20 минут. Это особенно ценно для компаний, в чьей операционной модели ключевую роль играет логистика.
Транспортная доступность:
- 1 минута до МКАД, СЗХ
- 5 минут до Можайского шоссе
- 2 минуты до Проспекта Генерала Дорохова
- 20 минут до ТТК
- Ближайшие станции метро: «Озерная», «Мичуринский проспект», «Говорово»
Характеристики:
- Общая офисная площадь: 48 800 м
- Две офисные башни: NEO и RUNE
- Офисы различного масштаба: от 71 до 1 538 м
- Количество машино-мест: 170
- Срок сдачи: 4 квартал 2028
Условия продажи:
Все офисы сдаются без отделки, что позволяет арендаторам спроектировать и реализовать интерьер под свои конкретные бизнес-задачи и корпоративную культуру. Помимо реализации на условиях полной предоплаты, предусмотрена возможность удобной рассрочки.
О компании MR Group:
MR Group - один из ведущих девелоперов России, который на протяжении 22 лет формирует ключевые принципы, определяющие каждое новое пространство. Компания известна смелыми архитектурными и инженерными решениями, сотрудничеством с мировыми дизайн-бюро и культурными институциями, а также внедрением передовых экологичных технологий. В 2025 году MR объединяет свои проекты офисной недвижимости под новым брендом - MR Group, предлагая 25 объектов общей площадью 2,1 млн м в ключевых бизнес-локациях Москвы.
03.12.2025
20 723 400 ₽
Продается деловой центр "Успенский" общей площадью 1810 м2. на земельном участке 1.3 Га.
Объект и земля находятся в собственности.
Этажей в здании 4, + мансардное и подвальное помещение, всего 60 помещений, все заняты арендаторами.
МАП по запросу.
Здание построено из кирпича и отделано снаружи вентилируемым фасадом, внутри отштукатурено и покрашено, на полу плитка, потолки подвесные.
На каждом этаже сан. узел., отдельное помещение под оборудование для вытяжки и электрооборудования, все оборудование в отличном состоянии.
Весь штат сотрудников обслуживающих оборудование и помещение есть.
Отдельный вход в здание с улицы и со двора.
Здание охраняется ЧОП.
В здании: отличная приточная вентиляция, центральное отопление, гидрантная система пожаротушения, центральное водоснабжение, 400 кВт электроэнергии.
Парковка автомобилей - как наземная внутри участка, так и вдоль дороги, парковка на 20 машиномест, из них 10 предоставляются в пользование, есть гостевые места в количестве 10 шт
7 мин. транспортом от м. Красногорская, в 8 км от МКАД.
Быстрый выход на сделку.
26.11.2025
210 000 000 ₽
Последнее cвoбодное помещeние фoрмата стрит-pитейл! Oткpoйтe для ceбя пpекраcную вoзмoжнocть занятьcя бизнecом в оживлeнном цeнтре гoродa! Благoдаря отличному pacполoжению pядoм с цeнтрaльнoй плoщадью вaш бизнeс всегда будет в центpе внимaния всex кpупных гоpoдcкиx мepоприятий и праздников.
Краткие характеристики:
Просторное помещение площадью 60,1 кв. м расположено на первой линии домов. Все соседние помещения сданы в аренду успешным и крупным арендаторам: Яндекс Маркет, фитнес-студия Reforma, сеть магазинов ВинЛаб, Wildberries, магазин женской одежды Мадам Хl и салон красоты.
Это идеальное место для процветания вашего бизнеса. Высокий пешеходный трафик и доступное расположение обеспечат вашему бизнесу мощную рекламную поддержку. Отдельная входная группа, круглосуточный доступ.
Выделенная мощность 15 кВт.
Не упустите этот шанс открыть свой бизнес в самом центре города. Свяжитесь с нами сегодня, чтобы договориться о просмотре и обеспечить свой будущий успех.
09.11.2025
96 160 ₽
СОБСТВЕННИК предлагает в аренду помещение общей площадью 212,2 кв.м. в цокольном уровне административно здания, в непосредственной близости от Садового и Бульварного кольца, в пешей доступности от станций метро Чкаловская, Курская. Престижное месторасположение, застройка переулка включает в себя квартал в стиле модерн в котором сосредочены исторические усадьбы и доходные дома – усадьба Морозовых, Городская усадьба Орловых, дом Рахмановых, Прохоровых и многие другие. Исторический квартал в центре города с развитой деловой активностью.
Окна в приямках.
Отдельный вход с Подсосенского переулка, автономный от здания.
Смешанная планировка, преимущественно OPEN SPACE
Высота потолков 2,7 метров.
Помещение оборудовано всеми необходимыми инженерно-техническими системами.
Система кондиционирования
Достаточная электрическая мощность.
Локальная сеть разведена по периметру помещения.
Стихийная парковка.
16.08.2025
389 988 ₽
Адрес: Московская область, Шаховской район, с/п Раменское, д. Аксаково, д. 61
Площадь участка: 700 м2.
Кадастровый номер: 50:06:0040301:413
Категория земельного участка: земли населенных пунктов
Вид разрешенного использования: склады
От собственника.
Сдается земельный участок в д. Аксаково и расположенные на нем постройки.
9 км до пгт. Шаховская.
Площадь участка - 700 м2.
На территории находятся кирпичное здание площадью 342 м2, ранее использовавшееся, как склад минеральных удобрений, а также пристройка для охраны. Здание требует ремонта кровли и угла примыкающих к нему стен.
Участок ровный, подключены коммуникации (газ, электричество 150 кВт) и видеонаблюдение, забор по периметру.
Удобная транспортная развязка, асфальтированный подъезд к участку.
03.12.2025
50 000 ₽




















