Коммерческая недвижимость в Больших Жеребцах - Страница 22
- Большие Жеребцы »
- Недвижимость
- » Коммерческая недвижимость в Больших Жеребцах
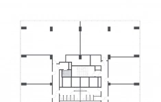
Общая площадь МФК Крекшино составляет: 10000 кв.м
25 мин по Минскому или Киевскому ш. (25 км от МКАД).
В пешей 6 мин. доступности расположена станция Санино МЦД-4 (600 м).
В непосредственной близости расположен ЖК «Медовая долина» - 3000 квартир.
В 10 мин. доступности строится еще 10000 квартир в 2-х ЖК.
Структура здания.
Минус 1-й этаж – 324 кв.м. Технические помещения и техподполье.
На 1-ом этаже (2180 кв.м) расположены вестибюли двух секций здания, нежилые помещения, техническо-бытовые помещения, диспетчерская и серверная, лестницы, лифтовые группы.
На 2-5 этажах (каждый - 2370 кв.м, 5 эт. - 1616 кв.м) расположены нежилые помещения, электрощитовые и помещения сервиса.
Кровля плоская, с внутренним водостоком, не эксплуатируемая.
Своя газовая котельная
Высота потолка 3,6-5,1 м
Ввод 07.2026
Условия продажи.
Продажа по договору долевого участия (НДС включен)
Сейчас выгодно приобретать этажами или здание целиком. Экономия бюджета покупки до 19%
16.09.2025
633 760 000 ₽
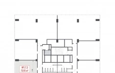
Общая площадь МФК Крекшино составляет 11378 кв.м
(полезная продаваемая площадь - 8564 кв.м)
Месторасположение.
25 мин по Минскому или Киевскому ш. (25 км от МКАД)
В пешей 6 мин. доступности расположена станция Санино МЦД-4 (600 м).
В непосредственной близости расположен ЖК «Медовая долина» - около 3000 квартир. Строится еще 10000 квартир в соседних 2-х ЖК.
Основные характеристики.
4-5 этажное здание - с подземным уровнем для технических помещений
Размеры здания: 107х31 м
Высота 1 этажа - 5 м, со 2 по 5 этажи - 3,6 м
Парковка на территории – 110 машиномест
Своя газовая котельная.
Ввод 07.2026
Условия продажи.
Продажа по договору долевого участия (НДС включен)
Сейчас выгодно приобретать этажами или здание целиком. Экономия бюджета покупки до 19%
16.09.2025
1 455 880 000 ₽
Предлагаем в аренду комфортабельный офис в деловом центре "Химки Бизнес Парк", "А" класс, 14 этаж. Четыре километра до МКАД. От станции метро "Речной вокзал" организовано регулярное движение комфортабельных автобусов. В десяти минутах езды аэропорт «Шереметьево».
Характеристики:
- Приточно-вытяжная вентиляция
- Центральное кондиционирование
- Спринклерная Пожарная сигнализация
- Система контроля доступа
- Круглосуточная охрана здания
Параметры делового центра:
- Класс: A
- Подземный и наземный паркинги
- Этажность: 15
- Высота потолков: 2.8 м
- Шаг колонн: 9 м.
- Панорамное остекление
- Высокоскоростные лифты Kone.
Инфраструктура делового центра:
- Шаттл-басы
- Минимаркеты
- Вело и мотопарковка
- Фитнес-зал
- Столовые
- Кофейня
Коммерческие условия:
- договор аренды от 11 месяцев
- базовая арендная ставка от 12 200 руб. кв.м./год (вкл. НДС)
- эксплуатационные расходы 6 100 руб. кв.м./год (вкл. НДС)
- коммунальные платежи оплачиваются ежемесячно по факту
- арендные каникулы.
07.05.2026
2 134 695 ₽
Сдается помещение площадью 359.4 кв. м., в субаренду, на срок от одного года с предоплатой за 1 месяц, с возможностью арендных каникул. Минимальный срок аренды 11 мес. Помещение располагается в 2-этажном здании в 1 мин. пешком от м. Комсомольская, район Красносельский.
Помещение располагается на -1 этаже здания.
Возможное назначение помещения - общепит, требуется провести косметический ремонт, одна мокрая точка, здание функционирует круглосуточно, открыто ежедневно.
Внутри центральное кондиционирование, вентиляция - естественная, центральное отопление, есть водоснабжение.
Доступ в здание свободный, здание охраняется.
На сообщения отвечаем реже, просьба по всем имеющимся вопросам звонить!!!
13.05.2026
1 000 000 ₽
ОФИС В БАШНЕ A | Рублево Бизнес Парк
Класс А |
Победитель премии Move Realty Awards в номинации «Лучший проект для инвестиций»
Инвестируйте в офис с максимальным потенциалом роста - в новом бизнес-центре Рублево Бизнес Парк. Современный проект А-класса на Новорижском направлении: высокий спрос, редкие форматы, идеальная транспортная доступность.
Преимущества объекта
Свободная планировка от 50 до 4000 м - возможность адаптации под любые задачи бизнеса.
Высота потолков от 4,05 до 6,03 м - создаёт ощущение простора, идеально для открытых пространств, шоурумов и двухуровневых решений.
Частные террасы - уникальный формат на офисном рынке Москвы.
Панорамное угловое остекление - естественный свет в течение всего дня и впечатляющие виды.
Shell & Core - гибкость в проектировании интерьера под себя.
Архитектура и инженерия
Класс А - соответствие высоким стандартам по инфраструктуре, инженерным системам и управлению зданием.
Гранд-лобби 1500 м, высота 9 м - знаковое пространство с интерьерами от бюро UNK corporate interiors.
22 скоростных лифта - бесшумные и быстрые, рассчитаны на интенсивный трафик.
Современные инженерные системы - высокий уровень комфорта и энергоэффективности.
Локация и транспорт
2 минуты до Новорижского шоссе и проспекта Маршала Жукова - быстрый выезд на ключевые магистрали.
8 минут до м. Строгино, 500 м до будущей м. Липовая роща (открытие до 2027 года) - отличная доступность как на авто, так и на общественном транспорте.
Условия покупки
Продажа по ДДУ (214-ФЗ) через эскроу-счета
Проектное финансирование от Сбербанка
Возможна рассрочка
Возврат НДС 22%
Инвестиционная привлекательность
Ожидаемый рост капитализации с открытием метро
Возможность сдачи по блокам или этажом целиком
ROI: 9-12%
________________________________________
Адрес объекта: МКАД, 64 км
09.05.2026
40 560 304 ₽
ОФИС В БАШНЕ A | Рублево Бизнес Парк
Класс А |
Победитель премии Move Realty Awards в номинации «Лучший проект для инвестиций»
Инвестируйте в офис с максимальным потенциалом роста - в новом бизнес-центре Рублево Бизнес Парк. Современный проект А-класса на Новорижском направлении: высокий спрос, редкие форматы, идеальная транспортная доступность.
Преимущества объекта
Свободная планировка от 50 до 4000 м - возможность адаптации под любые задачи бизнеса.
Высота потолков от 4,05 до 6,03 м - создаёт ощущение простора, идеально для открытых пространств, шоурумов и двухуровневых решений.
Частные террасы - уникальный формат на офисном рынке Москвы.
Панорамное угловое остекление - естественный свет в течение всего дня и впечатляющие виды.
Shell & Core - гибкость в проектировании интерьера под себя.
Архитектура и инженерия
Класс А - соответствие высоким стандартам по инфраструктуре, инженерным системам и управлению зданием.
Гранд-лобби 1500 м, высота 9 м - знаковое пространство с интерьерами от бюро UNK corporate interiors.
22 скоростных лифта - бесшумные и быстрые, рассчитаны на интенсивный трафик.
Современные инженерные системы - высокий уровень комфорта и энергоэффективности.
Локация и транспорт
2 минуты до Новорижского шоссе и проспекта Маршала Жукова - быстрый выезд на ключевые магистрали.
8 минут до м. Строгино, 500 м до будущей м. Липовая роща (открытие до 2027 года) - отличная доступность как на авто, так и на общественном транспорте.
Условия покупки
Продажа по ДДУ (214-ФЗ) через эскроу-счета
Проектное финансирование от Сбербанка
Возможна рассрочка
Возврат НДС 22%
Инвестиционная привлекательность
Ожидаемый рост капитализации с открытием метро
Возможность сдачи по блокам или этажом целиком
ROI: 9-12%
________________________________________
Адрес объекта: МКАД, 64 км
09.05.2026
54 534 704 ₽
ОФИС В БАШНЕ A | Рублево Бизнес Парк
Класс А |
Победитель премии Move Realty Awards в номинации «Лучший проект для инвестиций»
Инвестируйте в офис с максимальным потенциалом роста - в новом бизнес-центре Рублево Бизнес Парк. Современный проект А-класса на Новорижском направлении: высокий спрос, редкие форматы, идеальная транспортная доступность.
Преимущества объекта
Свободная планировка от 50 до 4000 м - возможность адаптации под любые задачи бизнеса.
Высота потолков от 4,05 до 6,03 м - создаёт ощущение простора, идеально для открытых пространств, шоурумов и двухуровневых решений.
Частные террасы - уникальный формат на офисном рынке Москвы.
Панорамное угловое остекление - естественный свет в течение всего дня и впечатляющие виды.
Shell & Core - гибкость в проектировании интерьера под себя.
Архитектура и инженерия
Класс А - соответствие высоким стандартам по инфраструктуре, инженерным системам и управлению зданием.
Гранд-лобби 1500 м, высота 9 м - знаковое пространство с интерьерами от бюро UNK corporate interiors.
22 скоростных лифта - бесшумные и быстрые, рассчитаны на интенсивный трафик.
Современные инженерные системы - высокий уровень комфорта и энергоэффективности.
Локация и транспорт
2 минуты до Новорижского шоссе и проспекта Маршала Жукова - быстрый выезд на ключевые магистрали.
8 минут до м. Строгино, 500 м до будущей м. Липовая роща (открытие до 2027 года) - отличная доступность как на авто, так и на общественном транспорте.
Условия покупки
Продажа по ДДУ (214-ФЗ) через эскроу-счета
Проектное финансирование от Сбербанка
Возможна рассрочка
Возврат НДС 22%
Инвестиционная привлекательность
Ожидаемый рост капитализации с открытием метро
Возможность сдачи по блокам или этажом целиком
ROI: 9-12%
________________________________________
Адрес объекта: МКАД, 64 км
09.05.2026
40 550 511 ₽
ОФИС В БАШНЕ A | Рублево Бизнес Парк
Класс А |
Победитель премии Move Realty Awards в номинации «Лучший проект для инвестиций»
Инвестируйте в офис с максимальным потенциалом роста - в новом бизнес-центре Рублево Бизнес Парк. Современный проект А-класса на Новорижском направлении: высокий спрос, редкие форматы, идеальная транспортная доступность.
Преимущества объекта
Свободная планировка от 50 до 4000 м - возможность адаптации под любые задачи бизнеса.
Высота потолков от 4,05 до 6,03 м - создаёт ощущение простора, идеально для открытых пространств, шоурумов и двухуровневых решений.
Частные террасы - уникальный формат на офисном рынке Москвы.
Панорамное угловое остекление - естественный свет в течение всего дня и впечатляющие виды.
Shell & Core - гибкость в проектировании интерьера под себя.
Архитектура и инженерия
Класс А - соответствие высоким стандартам по инфраструктуре, инженерным системам и управлению зданием.
Гранд-лобби 1500 м, высота 9 м - знаковое пространство с интерьерами от бюро UNK corporate interiors.
22 скоростных лифта - бесшумные и быстрые, рассчитаны на интенсивный трафик.
Современные инженерные системы - высокий уровень комфорта и энергоэффективности.
Локация и транспорт
2 минуты до Новорижского шоссе и проспекта Маршала Жукова - быстрый выезд на ключевые магистрали.
8 минут до м. Строгино, 500 м до будущей м. Липовая роща (открытие до 2027 года) - отличная доступность как на авто, так и на общественном транспорте.
Условия покупки
Продажа по ДДУ (214-ФЗ) через эскроу-счета
Проектное финансирование от Сбербанка
Возможна рассрочка
Возврат НДС 22%
Инвестиционная привлекательность
Ожидаемый рост капитализации с открытием метро
Возможность сдачи по блокам или этажом целиком
ROI: 9-12%
________________________________________
Адрес объекта: МКАД, 64 км
09.05.2026
42 009 928 ₽
НОВОРИЖСКОЕ ШОССЕ. Адрес: Московская область, Шаховской район, с/п Раменское, д. Аксаково, д. 61
Площадь участка: 700 м2.
Кадастровый номер: 50:06:0040301:413
Категория земельного участка: земли населенных пунктов
Вид разрешенного использования: склады, можно под производство, автосервис.
От собственника.
Продается земельный участок по Новой Риге в д. Аксаково и расположенные на нем постройки.
9 км до пгт. Шаховская.
Площадь участка - 700 м2.
На территории находятся кирпичное здание площадью 342 м2, ранее использовавшееся, как склад минеральных удобрений, а также пристройка для охраны.
Участок ровный, подключены коммуникации (магистральный газ, электричество 150 кВт) и видеонаблюдение, забор по периметру.
Удобная транспортная развязка по Новорижскому шоссе, асфальтированный подъезд к участку.
Быстрый выход на сделку.
31.03.2026
19 440 000 ₽
Помещение № 7 расположено на цокольном этаже многоквартирного жилого дома ЖК "Суханово Парк" в 10 км от МКАД по Симферопольскому шоссе. Остановка общественного транспорта расположена в 166 метрах от ЖК.
В помещении отсутствуют окна, вход в помещение один. Предполагаемое использование - офисно-торговое. Все коммунальные системы подключены.
02.05.2026
3 750 000 ₽
Помещение № 2 расположено на цокольном этаже многоквартирного жилого дома ЖК "Суханово Парк" в 10 км от МКАД по Симферопольскому шоссе. Остановка общественного транспорта расположена в 166 метрах от ЖК.
В помещении отсутствуют окна, вход в помещение один. Предполагаемое использование - офисно-торговое. Все коммунальные системы подключены.
02.05.2026
4 800 000 ₽
ОФИС В БАШНЕ A | Рублево Бизнес Парк
Класс А |
Победитель премии Move Realty Awards в номинации «Лучший проект для инвестиций»
Инвестируйте в офис с максимальным потенциалом роста - в новом бизнес-центре Рублево Бизнес Парк. Современный проект А-класса на Новорижском направлении: высокий спрос, редкие форматы, идеальная транспортная доступность.
Преимущества объекта
Свободная планировка от 50 до 4000 м - возможность адаптации под любые задачи бизнеса.
Высота потолков от 4,05 до 6,03 м - создаёт ощущение простора, идеально для открытых пространств, шоурумов и двухуровневых решений.
Частные террасы - уникальный формат на офисном рынке Москвы.
Панорамное угловое остекление - естественный свет в течение всего дня и впечатляющие виды.
Shell & Core - гибкость в проектировании интерьера под себя.
Архитектура и инженерия
Класс А - соответствие высоким стандартам по инфраструктуре, инженерным системам и управлению зданием.
Гранд-лобби 1500 м, высота 9 м - знаковое пространство с интерьерами от бюро UNK corporate interiors.
22 скоростных лифта - бесшумные и быстрые, рассчитаны на интенсивный трафик.
Современные инженерные системы - высокий уровень комфорта и энергоэффективности.
Локация и транспорт
2 минуты до Новорижского шоссе и проспекта Маршала Жукова - быстрый выезд на ключевые магистрали.
8 минут до м. Строгино, 500 м до будущей м. Липовая роща (открытие до 2027 года) - отличная доступность как на авто, так и на общественном транспорте.
Условия покупки
Продажа по ДДУ (214-ФЗ) через эскроу-счета
Проектное финансирование от Сбербанка
Возможна рассрочка
Возврат НДС 22%
Инвестиционная привлекательность
Ожидаемый рост капитализации с открытием метро
Возможность сдачи по блокам или этажом целиком
ROI: 9-12%
________________________________________
Адрес объекта: МКАД, 64 км
09.05.2026
71 121 240 ₽
ОФИС В БАШНЕ A | Рублево Бизнес Парк
Класс А |
Победитель премии Move Realty Awards в номинации «Лучший проект для инвестиций»
Инвестируйте в офис с максимальным потенциалом роста - в новом бизнес-центре Рублево Бизнес Парк. Современный проект А-класса на Новорижском направлении: высокий спрос, редкие форматы, идеальная транспортная доступность.
Преимущества объекта
Свободная планировка от 50 до 4000 м - возможность адаптации под любые задачи бизнеса.
Высота потолков от 4,05 до 6,03 м - создаёт ощущение простора, идеально для открытых пространств, шоурумов и двухуровневых решений.
Частные террасы - уникальный формат на офисном рынке Москвы.
Панорамное угловое остекление - естественный свет в течение всего дня и впечатляющие виды.
Shell & Core - гибкость в проектировании интерьера под себя.
Архитектура и инженерия
Класс А - соответствие высоким стандартам по инфраструктуре, инженерным системам и управлению зданием.
Гранд-лобби 1500 м, высота 9 м - знаковое пространство с интерьерами от бюро UNK corporate interiors.
22 скоростных лифта - бесшумные и быстрые, рассчитаны на интенсивный трафик.
Современные инженерные системы - высокий уровень комфорта и энергоэффективности.
Локация и транспорт
2 минуты до Новорижского шоссе и проспекта Маршала Жукова - быстрый выезд на ключевые магистрали.
8 минут до м. Строгино, 500 м до будущей м. Липовая роща (открытие до 2027 года) - отличная доступность как на авто, так и на общественном транспорте.
Условия покупки
Продажа по ДДУ (214-ФЗ) через эскроу-счета
Проектное финансирование от Сбербанка
Возможна рассрочка
Возврат НДС 22%
Инвестиционная привлекательность
Ожидаемый рост капитализации с открытием метро
Возможность сдачи по блокам или этажом целиком
ROI: 9-12%
________________________________________
Адрес объекта: МКАД, 64 км
09.05.2026
29 093 020 ₽
Сдам склад площадью 3000 метров квадратных. Новый. Все коммуникации подведены. Есть кран-балка грузоподъемностью 10 тонн. Осуществляется приемка грузов у железной дороги. На территории есть административное здание. Внутри склада есть туалет. Проведен интернет. УСН. Коммунальные платежи оплачиваются отдельно
03.04.2026
3 000 000 ₽
Аренда коммерческой недвижимости от собственника в престижном районе Подмосковья
Предлагаем в аренду современный объект недвижимости площадью 3000 м² (возможность аренды как всего объекта, так и отдельных помещений от 70 до 1500 м.кв;) в престижном районе рядом с элитными поселками "Зеленый мыс" и "Пестово".
📍Московская область, г.о. Мытищи,
д. Румянцево, Центральная ул., 1А/1
30 км от МКАД по Дмитровскому шоссе.
✅ Это идеальное место для:
• Медицинского бизнеса: клиники, больницы, центры реабилитации.
• Лаборатории и инновационные технологии
• Прокат и продажа премиального спортивного инвентаря (SUP-борды, каяки)
• Образовательных проектов: детские сады, школы, развивающие центры, учебные классы, спортивные клубы.
• Гастрономического бизнеса: рестораны, кафе, пекарни, кондитерские, магазины деликатесов, фермерских продуктов, винотека.
• И многих других направлений: аптека, барбершоп, химчистка, прачечная, СПА-салон, салон красоты, соляная пещера, флоатинг, кабинет отбеливания зубов, цветочный бутик, кондитерская, пекарни, студии фитнеса, груминг салон, детский развлекательный центр, творческая мастерская, магазин рыбы и морепродуктов, суши-ролов, зоогостиница, секции сквоша, магазин элитного алкоголя.
✅ Преимущества:
• Первая линия, отличная видимость с дороги и удобный подъезд.
• Новое здание (сдается впервые) с чистовой отделкой.
• Высокая нагрузка на пол (900 кг/м²) – возможность размещения тяжелого оборудования.
• Возможность расширения – эксплуатируемая кровля и возможность использования крыши.
• Развитая инфраструктура: рядом Гольф Клуб "Пестово", Яхт Клубы, Вертолётная площадка, пункты выдачи, магазины.
• Полностью оборудовано: электроснабжение (до 160 кВт), отопление, водоснабжение, канализация.
• Просторная парковка и возможность разгрузки большегрузного транспорта.
• Гибкие условия аренды и возможность долгосрочного сотрудничества.
Стоимость от 800р/м.кв.
Рассмотрим вариант продажи объекта!
Профессиональная помощь в организации ремонта под ваши нужды.
Звоните, чтобы обсудить ваши потребности и узнать подробности.
Александр Владимирович
+7 (985) 148-14-94
13.04.2026
800 ₽
Неактивные объявления
ПРЯМАЯ АРЕНДА. Сдам в аренду на длительное время отдельно стоящее складское помещение общей площадью 300м2 + 150м2 территории. Большие ворота (3,2*3,3), высота потолка 4м, бетонный пол. Объект находится в 2 км от МКАД на первой линии Новорижского шоссе. Ближайшими транспортными магистралями являются Новорижское, Ильинское, Волоколамское, Рублево-Успенского и Ленинградское шоссе. Рядом расположена автобусная остановка на которой останавливаются автобусы, маршрутные такси, которые следуют от станции метро Тушинская. Огороженная, освещенная по всему периметру участка территория, охрана, электричество, склад холодный можно сделать теплым, путем установки отопления (масляный котел был ранее). Удобная транспортная доступность, идеальна для торговли. Дополнительная информация по телефону. БЕЗ КОМИССИИ. Звоните
18.04.2023
200 000 ₽
В архиве
Сдается в аренду от СОБСТВЕННИКА помещение площадью 170 кв.м в отдельно стоящем 3-х этажном административном здании на втором этаже с отдельным входом в г. Бронницы (на пересечении Новорязанского шоссе и малого бетонного кольца А-107). Помещение коридорно-кабинетного типа,санузел,запасной выход. Отопление от собственной котельной. Предоставление юридического адреса, парковочных мест. Удобное месторасположение, круглогодичный подъезд. Огороженная и охраняемая территория.
27.03.2023
85 000 ₽
В архиве
Складские лицензированные помещения любой площади г. Оболенск Московской области, 70 км от Москвы. 20 км от г. Серпухов. Есть охрана, отопление, вентиляция, система пожаротушения, электричество, водоснабжение, грузоподъемники, грузовые лифты, техника, помещения в отличном состоянии. Отличные подъездные пути. Высота 4,5 м. Цена от 200-350 рублей за квадратный метр. +7 903 569 98 52
21.12.2023
150 000 ₽
В архиве
Предлагаю в аренду помещение 242 кв.м с отдельным входом с улицы. Помещение возможно использовать под различные цели: магазин, кафе, салон, шоурум, сфера услуг. Есть рекламные места на фасаде и на крыше здания. Свободная планировка, высота потолка 3,5м. Коммуникации: электричество, вентиляция, отопление, кондиционирование, водоснабжение, канализация. Объект расположен на первой линии домов. В здании расположены арендаторы: "Eurospar" (продуктовый супермаркет), "Мята лаунж платина" (кальянная). В пешеходной доступности от метро "Аэропорт" или жд станции "Красный Балтиец". Хорошая транспортная доступность, близость Ленинградского проспекта и ТТК. Окружение: жилая застройка, БЦ класса А и Б, университеты, колледжи, НИИ. Дополнительная информация предоставляется по запросу.
19.06.2025
3 333 ₽
В архиве
Предлагаю в аренду на втором этаже магазин, площадь 331 кв.м. Витрина 25м. Помещение расположено в проходной галереи и просматривается с первого этажа от центрального входа . ТРЦ "ВИТТЕ МОЛЛ" ул. Венёвская, д.6 (в пяти минутах ходьбы от метро "Бульвар Адмирала Ушакова"). Якорные арендаторы: "Eurospar" (продуктовый супермаркет), "М видео" (электробытовая техника), "Небо" (спортивно-развлекательный центр), "Голден" (фитнес клуб с бассейном), Ростикс (ресторан), Изи-паб (ресторан).
Дополнительная информация предоставляется по запросу.
19.06.2025
3 000 ₽
В архиве
Аренда торговой площадки рядом с МКАД, г. Красногорск. Удачное место расположение, с возможность подъезда грузового транспорта на охраняемой территории, хороший трафик. Площадка подходит для хранения, складирования, легковой и грузовой автотехники, спецтехники, грузов, материалов. Звоните обсудим все вопросы.
19.06.2023
100 000 ₽
В архиве
Предлагаю в аренду помещения под кафе на фудкорте, площадь 10-120 кв.м, расположенные на третьем этаже в ТРЦ "ВИТТЕ МОЛЛ" ул. Венёвская, д.6 (в пяти минутах ходьбы от метро "Бульвар Адмирала Ушакова"). Якорные арендаторы: "Перекресток" (продуктовый супермаркет), "Мвидео" (электробытовая техника), "КАРО фильм" (кинотеатр 8 залов), "Зебра" (фитнес клуб с бассейном), КФС (ресторан), Изи паб (пивной ресторан), Иль патио (итальянская кухня), Планета суши (японская кухня).
09.12.2024
5 900 ₽
В архиве
Сдаются в аренду офисные помещения от 15 кв.м по 900 руб. кв.м
г.Балашиха ул.Текстильщиков дом 2
17.06.2023
900 ₽
В архиве
Аренда земельного участка 5000м2 под склад или для стоянки легкового и грузового транспорта, спецтехники, стройматериалов и т.п. Могут обсуждаться другие варианты целевого назначения аренды. Удобный заезд с федеральной трассы, территория огорожена, освещена, на территории видеонаблюдение. Также на территории сдается холодный склад площадь 350 кв.м., который возможно использовать как тёплый склaд. Возможна аренда как полного участка, так и разделение на меньшие площади. Прямой договор аренды. Рассмотрим Ваши предложения. Звоните
18.07.2023
1 000 000 ₽
В архиве
Это помещение свободного назначения ждет тех арендаторов, кто ценит уют, комфорт и спокойствие. Большое свободное пространство позволит правильно распределить рабочие места, а при необходимости и клиентскую зону. Есть еще помещения 113,2 кв.м и 111,7 кв.м. Установлена система кондиционирования. В нашем помещении можно разместить и офис, и шоурумы, и производство, и многое другое. Мощность 80 КВт. Бесплатная парковка, рядом с БЦ позволит спокойно оставить свой автомобиль. Подъезд к нашему Бизнес Центру можно осуществить, как через МКАД, так и по Липкинскому шоссе.
08.06.2023
В архиве
Сдается двухкомнатное помещение свободного назначения ,расположенное в г.Королев, на ул.Калинина ,д.6Б в ДЦ "Сигма".Помещение расположено на 3 этаже ,общей площадью 64.6 кв.м. Комната с окном 23.6 кв.м. +смежная комната 41 кв.м. без окна.Под любой вид деятельности. Арендная плата 54040 рублей ( все включено).Страховой депозит 1 месяц. Комиссия 50%.
20.02.2023
54 040 ₽
В архиве
Вендинг места для аренды в Москве под установку кофейных автоматов. кофе корнеров. кофе поинт. кофейных станций с сиропами кофе стоек. снековых аппаратов. микромаркетов и прочего вендингового оборудования. Продаём точки локации как поштучно. так и оптом. в пределах Москвы.
Это предложение для вендинговых компаний у которых большой парк автоматов.
Предложения для тех, кому места нужны всегда и в большом кол-ве. от 50 мест (приблизительно 20 установок) в месяц. (Без моек и сервисов). Стоимость услуги 200 000 рублей.
Полная предоплата наших услуг, официальный договор. Часть мест даём сразу после предоплаты, остальные места добираем в сроки прописанные в договоре. 89264087504 Владимир
18.02.2022
200 000 ₽
В архиве
Предлагаю место в Москве ЮЗАО отделение банка под установку кофе корнера. кофейного автомата микромаркета кофе стойки станции с сиропами
Проходимость в день около 450 сотрудники и клиенты банка.
Арендная плата в месяц. 4400 руб. за автомат Стоимость места 16 000 рублей по предоплате. Замена места бесплатная.
Предлагаем локации для установки кофе корнеров кофейных аппаратов. автоматов с горячим питанием микромаркетов кофейных станций с сиропами. Всегда есть места в разных районах Москвы. Дмитрий
19.02.2022
4 400 ₽
В архиве
В Москве место локация для установки кофейного автомата корнера кофе поинта в ЗАО метро Филевский парк в Мед. центре 300-400 чел. в день.
Предлагаю место под установку кофе корнера. кофейного автомата аппарата микромаркета кофейной станции с сиропами. кофе стойку.
Арендная плата в месяц. 3200 руб. за автомат Стоимость места 15 000 рублей по предоплате. Замена места бесплатная.
Предлагаем локации для установки кофе корнеров кофейных аппаратов. автоматов с горячим питанием микромаркетов. Всегда есть места в разных районах Москвы. Дмитрий
20.02.2022
3 200 ₽
В архиве
Локация место под установку вендинга в аренду Бизнес Центр для установки кофе поинт. корнер. кофейного автомата в ЗАО Москвы м.Электрозаводская можно микромаркет в день около 6000 чел. + посетители 700-800 чел.
Арендная плата в месяц. 5000 руб. за автомат. Точка продаётся стоимость места 35 000 рублей предоплата. Так же предлагаем места для установки торговых автоматов. кофейных станций с сиропами кофе стоек аппаратов с питанием микромаркетов во всех округах Москвы +79261073903 Кирилл
21.02.2022
5 000 ₽
В архиве
Сдается в аренду здание свободного назначения общей площадью 355 м2 (площадь 1 этажа - 155м2, площадь 2 этажа 155м2, площадь подвала - 55 м2) по адресу: М.О. Рузский район, д. Волково, к/п Озерна. Собственник. В помещении имеются все необходимые коммуникации: ВиВ, отопление, электроснабжение. В помещении 2 отдельных входа, пандус, парковка, 2 санузла, кабинет, эл. подъемник.
Арендная ставка 200000,00 руб/мес. (6760,56 руб/м2/год). Здание расположено на первой линии домов. Проездное и проходное место. Вблизи расположены дачные поселки, базы отдыха, деревни и т.д.)
10.11.2022
200 000 ₽
В архиве
Продам в аренду место локацию для установки кофейного автомата корнера кофе поинта в САО Москвы в Фитнес центре.
Предлагаю место под установку кофе корнера. кофейного автомата аппарата микромаркета кофейной станции с сиропами. кофе стойку.В Фитнес центре
Район метро Войковская в САО Проходимость в день около 500 человек сотрудников+ посетители
Арендная плата в месяц. 3400 руб. за автомат Стоимость места 15 000 рублей по предоплате. Замена места бесплатная.
Предлагаем локации для установки кофе корнеров кофейных аппаратов. автоматов с горячим питанием микромаркетов. Всегда есть места в разных районах Москвы. Дмитрий 89253098996
23.02.2022
3 400 ₽
В архиве
Предлагаю в аренду место в БЦ для кофейного автомата или кофе поинт кофе корнера кофе станции с сиропами в аренду в бизнес парке.офисный центр. бизнес центр район метро Преображенская площадь в ВАО Москвы.
Предлагаю продаю место в аренду в бизнес парке район метро Преображенская площадь в ВАО Москвы для кофейного автомата или кофе поинт кофе корнера.В день приблизительно около 12 000 человек работающих. вместе с посетителями. Арендная плата 5300+электричество. Арендный договор на 12 месяцев. Установка на входе возле охраны. конкурентов на входе нет. Возможность покупать воду кулерную у БЦ.
у бизнес центра.Продаётся место по предоплате 35 000 рублей. Так же предлагаю места под установку торговых автоматов как кофейных так и с питанием снеков и микромаркетов в других округах Москвы и Московской области.
Обращайтесь всегда на связи Олег 89252304974
24.02.2022
5 300 ₽
В архиве
Место в аренду для установки кофе автомата поинт корнера. кофейного автомата микромаркета в Мед. центре.
Район САО Москвы метро Сокол Проходимость в день около 400 человек.
Арендная плата в месяц. 2200 руб. за автомат Стоимость места 14 000 рублей по предоплате. Замена места если не подошло бесплатная.
Предлагаем локации для установки кофе корнеров кофейных аппаратов. кофейных станций с сиропами. автоматов с горячим питанием микромаркетов. Всегда есть места в разных районах Москвы. Дмитрий +7 925 309 89 96
27.02.2022
2 200 ₽
В архиве
Вендинг места для аренды в Москве под установку кофейных автоматов. кофе корнеров. кофе поинт. кофейных станций с сиропами кофе стоек. снековых аппаратов. микромаркетов и прочего вендингового оборудования. Продаём точки локации как поштучно. так и оптом. в пределах Москвы.
Это предложение для вендинговых компаний у которых большой парк автоматов.
Предложения для тех, кому места нужны всегда и в большом кол-ве. от 50 мест (приблизительно 20 установок) в месяц. (Без моек и сервисов). Стоимость услуги 200 000 рублей.
Полная предоплата наших услуг, официальный договор. Часть мест даём сразу после предоплаты, остальные места добираем в сроки прописанные в договоре. Владимир
28.02.2022
200 000 ₽
В архиве
Предлагаю место в Москве ЮЗАО отделение банка под установку кофе корнера. кофейного автомата микромаркета кофе стойки станции с сиропами
Проходимость в день около 450 сотрудники и клиенты банка.
Арендная плата в месяц. 4400 руб. за автомат Стоимость места 16 000 рублей по предоплате. Замена места бесплатная.
Предлагаем локации для установки кофе корнеров кофейных аппаратов. автоматов с горячим питанием микромаркетов кофейных станций с сиропами. Всегда есть места в разных районах Москвы. Дмитрий
01.03.2022
4 400 ₽
В архиве

































