Продать квартиру в Белых Столбах - Страница 24
- Белые Столбы »
- Недвижимость
- » Квартиры
- » Продажа квартир в Белых Столбах
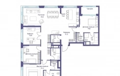
Продается просторная квартира площадью 182.70 м2 в жилом комплексе РЕКА. Квартира находится в 1 секции корпуса 3 (будет введен в эксплуатацию в 4 кв. 2026) . Этаж 11-й из 16.
В квартире продуманная функциональная планировка с просторной кухней 27.80 м2. Жилая площадь - 77.30 м2. Высота потолка от 3,65 м. Изолированные комнаты, 5 санузлов(1 раздельный и 4 совмещенных) . Окна на смежные стороны. Виды на природный парк и реку.
РЕКА - клубный дом от Донстрой на западе Москвы, у границы природного заповедника "Долина реки Сетунь", по соседству с МГУ и МГИМО, дипломатическими представительствами зарубежных стран. В 5 минутах ходьбы находится станция метро "Мичуринский проспект", от которой до центра можно доехать за 15 минут. Также 15 минут понадобится, чтобы добраться на автомобиле до Садового кольца.
Прямо из дома можно попасть в природную часть грандиозного парка "Событие". Здесь созданы детские игровые площадки "Луг" и "Лес", большая воркаут-зона, поле для командных видов спорта, площадка для пикников, смотровые площадки с великолепными видами, летний амфитеатр для лекториев и летняя школа.
Архитектурный проект дома выполнен в стиле современной классики: фасады с облицовкой из натурального камня и металлическими декоративными элементами.
В доме представлены элитные клубные резиденции. Одна из секций целиком состоит из квартир с финишной авторской отделкой: дизайнерские интерьеры, итальянские кухни, премиальная бытовая техника и сантехника. В наличии имеются пентхаусы с террасами и каминами.
В непосредственной близости от дома предусмотрены школы, детские сады, магазины, фитнес-центры, кафе и рестораны, медицинские центры - все, что необходимо для жизни.
Закрытый двор без машин обеспечен круглосуточной охраной и системами контроля доступа. Двор создан как ландшафтное продолжение окружающих природных парков и зонирован для различных видов отдыха, детских игр, занятий спортом.
Работает шоурум.
Позвоните и запишитесь на показ квартиры.
02.04.2026
199 873 800 ₽
Продается просторная квартира площадью 178.90 м2 в жилом комплексе РЕКА. Квартира находится в 1 секции корпуса 3 (будет введен в эксплуатацию в 4 кв. 2026) . Этаж 9-й из 16.
В квартире продуманная функциональная планировка с просторной кухней 27.80 м2. Жилая площадь - 73.60 м2. Высота потолка от 3,65 м. Изолированные комнаты, 5 санузлов(1 раздельный и 4 совмещенных) . Окна на смежные стороны. Виды на природный парк и реку.
РЕКА - клубный дом от Донстрой на западе Москвы, у границы природного заповедника "Долина реки Сетунь", по соседству с МГУ и МГИМО, дипломатическими представительствами зарубежных стран. В 5 минутах ходьбы находится станция метро "Мичуринский проспект", от которой до центра можно доехать за 15 минут. Также 15 минут понадобится, чтобы добраться на автомобиле до Садового кольца.
Прямо из дома можно попасть в природную часть грандиозного парка "Событие". Здесь созданы детские игровые площадки "Луг" и "Лес", большая воркаут-зона, поле для командных видов спорта, площадка для пикников, смотровые площадки с великолепными видами, летний амфитеатр для лекториев и летняя школа.
Архитектурный проект дома выполнен в стиле современной классики: фасады с облицовкой из натурального камня и металлическими декоративными элементами.
В доме представлены элитные клубные резиденции. Одна из секций целиком состоит из квартир с финишной авторской отделкой: дизайнерские интерьеры, итальянские кухни, премиальная бытовая техника и сантехника. В наличии имеются пентхаусы с террасами и каминами.
В непосредственной близости от дома предусмотрены школы, детские сады, магазины, фитнес-центры, кафе и рестораны, медицинские центры - все, что необходимо для жизни.
Закрытый двор без машин обеспечен круглосуточной охраной и системами контроля доступа. Двор создан как ландшафтное продолжение окружающих природных парков и зонирован для различных видов отдыха, детских игр, занятий спортом.
Работает шоурум.
Позвоните и запишитесь на показ квартиры.
02.04.2026
177 425 864 ₽
Продается просторная квартира площадью 150.00 м2 в жилом комплексе РЕКА. Квартира находится во 2 секции корпуса 3 (будет введен в эксплуатацию в 4 кв. 2026) . Этаж 9-й из 12.
В квартире продуманная функциональная планировка с просторной кухней 34.50 м2. Жилая площадь - 57.20 м2. Высота потолка от 3,65 м. Изолированные комнаты, 4 санузла(1 раздельный и 3 совмещенных) . Окна на противоположные стороны. Виды на природный парк и реку.
РЕКА - клубный дом от Донстрой на западе Москвы, у границы природного заповедника "Долина реки Сетунь", по соседству с МГУ и МГИМО, дипломатическими представительствами зарубежных стран. В 5 минутах ходьбы находится станция метро "Мичуринский проспект", от которой до центра можно доехать за 15 минут. Также 15 минут понадобится, чтобы добраться на автомобиле до Садового кольца.
Прямо из дома можно попасть в природную часть грандиозного парка "Событие". Здесь созданы детские игровые площадки "Луг" и "Лес", большая воркаут-зона, поле для командных видов спорта, площадка для пикников, смотровые площадки с великолепными видами, летний амфитеатр для лекториев и летняя школа.
Архитектурный проект дома выполнен в стиле современной классики: фасады с облицовкой из натурального камня и металлическими декоративными элементами.
В доме представлены элитные клубные резиденции. Одна из секций целиком состоит из квартир с финишной авторской отделкой: дизайнерские интерьеры, итальянские кухни, премиальная бытовая техника и сантехника. В наличии имеются пентхаусы с террасами и каминами.
В непосредственной близости от дома предусмотрены школы, детские сады, магазины, фитнес-центры, кафе и рестораны, медицинские центры - все, что необходимо для жизни.
Закрытый двор без машин обеспечен круглосуточной охраной и системами контроля доступа. Двор создан как ландшафтное продолжение окружающих природных парков и зонирован для различных видов отдыха, детских игр, занятий спортом.
Работает шоурум.
Позвоните и запишитесь на показ квартиры.
02.04.2026
144 210 000 ₽
Продается просторная квартира площадью 179.40 м2 в жилом комплексе РЕКА. Квартира находится во 2 секции корпуса 2 введен в эксплуатацию в 4 кв. 2023. Этаж 10-й из 12.
В квартире продуманная функциональная планировка с просторной кухней 16.20 м2. Жилая площадь - 99.50 м2. Высота потолка от 3,65 м. Изолированные комнаты, 4 санузла(1 раздельный и 3 совмещенных) . Окна на противоположные стороны. Виды на природный парк и реку.
РЕКА - клубный дом от Донстрой на западе Москвы, у границы природного заповедника "Долина реки Сетунь", по соседству с МГУ и МГИМО, дипломатическими представительствами зарубежных стран. В 5 минутах ходьбы находится станция метро "Мичуринский проспект", от которой до центра можно доехать за 15 минут. Также 15 минут понадобится, чтобы добраться на автомобиле до Садового кольца.
Прямо из дома можно попасть в природную часть грандиозного парка "Событие". Здесь созданы детские игровые площадки "Луг" и "Лес", большая воркаут-зона, поле для командных видов спорта, площадка для пикников, смотровые площадки с великолепными видами, летний амфитеатр для лекториев и летняя школа.
Архитектурный проект дома выполнен в стиле современной классики: фасады с облицовкой из натурального камня и металлическими декоративными элементами.
В доме представлены элитные клубные резиденции. Одна из секций целиком состоит из квартир с финишной авторской отделкой: дизайнерские интерьеры, итальянские кухни, премиальная бытовая техника и сантехника. В наличии имеются пентхаусы с террасами и каминами.
В непосредственной близости от дома предусмотрены школы, детские сады, магазины, фитнес-центры, кафе и рестораны, медицинские центры - все, что необходимо для жизни.
Закрытый двор без машин обеспечен круглосуточной охраной и системами контроля доступа. Двор создан как ландшафтное продолжение окружающих природных парков и зонирован для различных видов отдыха, детских игр, занятий спортом.
Работает шоурум.
Позвоните и запишитесь на показ квартиры.
02.04.2026
251 558 800 ₽
К продаже предлагается право требование участника долевого строительства по договору о долевом строительстве квартира-студия, общ. Пл. 22, 87 кв.м. , номер квартиры 322, этаж 15 секция 22. Дом располагается на земельном участке с кад. №50: 21: 0060310: 1677. Адрес объекта Московская область, г. Видное, дер. Коробово, корп. 7.2. Строительство осуществляет: ООО Специализированный застройщик «Самолет- Коробово» ОГРН 1137746376877Продажа осуществляется в рамках процедуры банкротства. Предлагаем воспользоваться услугами профессионального агента для приобретения с торгов. В случае возникновения вопросов - обращайтесь.
16.12.2025
7 640 000 ₽
Продается просторная квартира площадью 219.00 м2 в жилом комплексе РЕКА. Квартира находится в 4 секции корпуса 3 (будет введен в эксплуатацию в 4 кв. 2026) . Этаж 12-й из 14.
В квартире продуманная функциональная планировка с просторной кухней 34.60 м2. Жилая площадь - 99.20 м2. Высота потолка от 3,65 м. Изолированные комнаты, 3 санузла(1 раздельный и 2 совмещенных) . Окна на противоположные стороны. Виды на природный парк и реку.
РЕКА - клубный дом от Донстрой на западе Москвы, у границы природного заповедника "Долина реки Сетунь", по соседству с МГУ и МГИМО, дипломатическими представительствами зарубежных стран. В 5 минутах ходьбы находится станция метро "Мичуринский проспект", от которой до центра можно доехать за 15 минут. Также 15 минут понадобится, чтобы добраться на автомобиле до Садового кольца.
Прямо из дома можно попасть в природную часть грандиозного парка "Событие". Здесь созданы детские игровые площадки "Луг" и "Лес", большая воркаут-зона, поле для командных видов спорта, площадка для пикников, смотровые площадки с великолепными видами, летний амфитеатр для лекториев и летняя школа.
Архитектурный проект дома выполнен в стиле современной классики: фасады с облицовкой из натурального камня и металлическими декоративными элементами.
В доме представлены элитные клубные резиденции. Одна из секций целиком состоит из квартир с финишной авторской отделкой: дизайнерские интерьеры, итальянские кухни, премиальная бытовая техника и сантехника. В наличии имеются пентхаусы с террасами и каминами.
В непосредственной близости от дома предусмотрены школы, детские сады, магазины, фитнес-центры, кафе и рестораны, медицинские центры - все, что необходимо для жизни.
Закрытый двор без машин обеспечен круглосуточной охраной и системами контроля доступа. Двор создан как ландшафтное продолжение окружающих природных парков и зонирован для различных видов отдыха, детских игр, занятий спортом.
Работает шоурум.
Позвоните и запишитесь на показ квартиры.
02.04.2026
213 744 000 ₽
Продается просторная квартира площадью 276.40 м2 в жилом комплексе РЕКА. Квартира находится в 1 секции корпуса 3 (будет введен в эксплуатацию в 4 кв. 2026) . Этаж 13-й из 16.
В квартире продуманная функциональная планировка с просторной кухней 60.00 м2. Жилая площадь - 110.90 м2. Высота потолка от 3,65 м. Изолированные комнаты, 4 совмещенных санузла. Окна на смежные стороны. Виды на природный парк и реку.
РЕКА - клубный дом от Донстрой на западе Москвы, у границы природного заповедника "Долина реки Сетунь", по соседству с МГУ и МГИМО, дипломатическими представительствами зарубежных стран. В 5 минутах ходьбы находится станция метро "Мичуринский проспект", от которой до центра можно доехать за 15 минут. Также 15 минут понадобится, чтобы добраться на автомобиле до Садового кольца.
Прямо из дома можно попасть в природную часть грандиозного парка "Событие". Здесь созданы детские игровые площадки "Луг" и "Лес", большая воркаут-зона, поле для командных видов спорта, площадка для пикников, смотровые площадки с великолепными видами, летний амфитеатр для лекториев и летняя школа.
Архитектурный проект дома выполнен в стиле современной классики: фасады с облицовкой из натурального камня и металлическими декоративными элементами.
В доме представлены элитные клубные резиденции. Одна из секций целиком состоит из квартир с финишной авторской отделкой: дизайнерские интерьеры, итальянские кухни, премиальная бытовая техника и сантехника. В наличии имеются пентхаусы с террасами и каминами.
В непосредственной близости от дома предусмотрены школы, детские сады, магазины, фитнес-центры, кафе и рестораны, медицинские центры - все, что необходимо для жизни.
Закрытый двор без машин обеспечен круглосуточной охраной и системами контроля доступа. Двор создан как ландшафтное продолжение окружающих природных парков и зонирован для различных видов отдыха, детских игр, занятий спортом.
Работает шоурум.
Позвоните и запишитесь на показ квартиры.
02.04.2026
289 114 400 ₽
НОВЫЙ СОВРЕМЕННЫЙ ЖИЛОЙ КОМПЛЕКС ОТ НАДЕЖНОГО ЗАСТРОЙЩИКА! В исторической части города, в непосредственной близости с Николо-Угрешским монастырем и Москвой-рекой. Дом Введен в эксплуатацию. Продается 1 комнатная крупногабаритная квартира, площадь 43,7/17,4/13 м2, с/у совмещ. 4,2 м2, прихожая 4,3 м2, балкон 5,2 м2. Адрес: Московская область, г. Дзержинский, Героя России Виктора Дудкина д.3. Возможна ИПОТЕКА. Дом комфорт класса с улучшенным планировочным решением. Тихий зеленый спальный район города. В нутри комплекса торговый центр, медицинский центр. Рядом с домом сетевые магазины Магнит, Пятерочка, фермерский магазин Алексеевский, Николо-угрешский монастырь. Хорошее сообщение с Москвой, остановка общественного транспорта через дорогу от дома до Москвы можно добраться на автобусе за 30 мин до м Кузьминки, Котельники, Люблино, Братиславская, Алма-Атинская, станция Люберцы ходят автобусы. Развитая инфраструктура города в шаговой доступности: школа, детский сад, детская площадка, автостоянка, сетевые и розничные магазины, отделение СберБанка, аптеки, поликлиника
28.08.2025
7 206 969 ₽
НОВЫЙ СОВРЕМЕННЫЙ ЖИЛОЙ КОМПЛЕКС ОТ НАДЕЖНОГО ЗАСТРОЙЩИКА! В исторической части города, в непосредственной близости с Николо-Угрешским монастырем и Москвой-рекой. Дом Введен в эксплуатацию. Продается 1 комнатная крупногабаритная квартира, площадь 43,4/17,3/13 м2, с/у совмещ. 4,2 м2, прихожая 4,3 м2, балкон 5,2 м2. Адрес: Московская область, г. Дзержинский, Героя России Виктора Дудкина д. 3 . Возможна ИПОТЕКА. Дом комфорт класса с улучшенным планировочным решением. Тихий зеленый спальный район города. В нутри комплекса торговый центр, медицинский центр. Рядом с домом сетевые магазины Магнит, Пятерочка, фермерский магазин Алексеевский, Николо-угрешский монастырь. Хорошее сообщение с Москвой, остановка общественного транспорта через дорогу от дома до Москвы можно добраться на автобусе за 30 мин до м Кузьминки, Котельники, Люблино, Братиславская, Алма-Атинская, станция Люберцы ходят автобусы. Развитая инфраструктура города в шаговой доступности: школа, детский сад, детская площадка, автостоянка, сетевые и розничные магазины, отделение СберБанка, аптеки, поликлиника
28.08.2025
7 750 000 ₽
НОВЫЙ СОВРЕМЕННЫЙ ЖИЛОЙ КОМПЛЕКС ОТ НАДЕЖНОГО ЗАСТРОЙЩИКА! В исторической части города, в непосредственной близости с Николо-Угрешским монастырем и Москвой-рекой. Дом Введен в эксплуатацию. Продается 1 комнатная крупногабаритная квартира, площадь 43,4/17,4/12,9 м2, Адрес: Московская область, г. Дзержинский, ул. Героя России Виктора Дудкина . Возможна ИПОТЕКА. Квартира с современной планировкой. Тихий зеленый спальный район города. Рядом с домом сетевые магазины Магнит, Пятерочка, фермерский магазин Алексеевский, Николо-угрешский монастырь. Хорошее сообщение с Москвой, остановка общественного транспорта через дорогу от дома до Москвы можно добраться на автобусе за 30 мин до м Кузьминки, Котельники, Люблино, Братиславская, Алма-Атинская, станция Люберцы ходят автобусы. Развитая инфраструктура города в шаговой доступности: школа, детский сад, детская площадка, автостоянка, сетевые и розничные магазины, отделение СберБанка, аптеки, поликлиника
28.08.2025
7 760 000 ₽
НОВЫЙ СОВРЕМЕННЫЙ ЖИЛОЙ КОМПЛЕКС ОТ НАДЕЖНОГО ЗАСТРОЙЩИКА! В исторической части города, в непосредственной близости с Николо-Угрешским монастырем и Москвой-рекой. Дом Введен в эксплуатацию. Продается 1 комнатная крупногабаритная квартира, площадь 43,3/17,2/13 м2, Адрес: Московская область, г. Дзержинский, ул.Героя России Виктора Дудкина . Возможна ИПОТЕКА. Квартира с современной планировкой. Тихий зеленый спальный район города. Рядом с домом сетевые магазины Магнит, Пятерочка, фермерский магазин Алексеевский, Николо-угрешский монастырь. Хорошее сообщение с Москвой, остановка общественного транспорта через дорогу от дома до Москвы можно добраться на автобусе за 30 мин до м Кузьминки, Котельники, Люблино, Братиславская, Алма-Атинская, станция Люберцы ходят автобусы. Развитая инфраструктура города в шаговой доступности: школа, детский сад, детская площадка, автостоянка, сетевые и розничные магазины, отделение СберБанка, аптеки, поликлиника
28.08.2025
7 750 000 ₽
Продаётся просторная двухкомнатная квартира площадью 69.8 квадратных метров в новом кирпичном доме 2025 года постройки, расположенном в уютном микрорайоне по адресу город Дзержинский, улица Бондарева, дом 4.
Предлагаем вашему вниманию светлую и просторную жилую площадь в размере 36.7 квадратных метров с удобной планировкой и раздельным санузлом. Кухня занимает 13,4 квадратных метров, предоставляя достаточно места для кулинарного творчества и семейных ужинов. Несмотря на то, что квартира требует ремонта, это открывает прекрасную возможность обустроить жильё согласно вашим личным предпочтениям и вкусам.
Расположенная на первом этаже, квартира порадует вас прекрасным видом из окон как на тихий двор, так и на улицу, наполняя пространство естественным светом. Балкон станет идеальным местом для утреннего кофе или вечернего отдыха после рабочего дня.
Для жителей дома предусмотрены удобные варианты парковки – во дворе и подземная, а также благоустроенный двор с детской и спортивной площадками, где ваши дети смогут активно проводить время на свежем воздухе. Рядом находятся школа, детский сад, торговый центр, парк и фитнес-клуб, обеспечивая комфортное проживание и удовлетворяя повседневные потребности семьи.
Приглашаем вас оценить все преимущества данной квартиры и представить, каким может стать ваше новое жилище благодаря вашему вкусу и воображению.
28.08.2025
11 618 000 ₽
НОВЫЙ СОВРЕМЕННЫЙ ЖИЛОЙ КОМПЛЕКС ОТ НАДЕЖНОГО ЗАСТРОЙЩИКА! В исторической части города, в непосредственной близости с Николо-Угрешским монастырем и Москвой-рекой. Дом Введен в эксплуатацию. Продается 1 комнатная крупногабаритная квартира, площадь 43,4/17,4/12,9 м2, с/у совмещ. 4,2 м2, прихожая 4,3 м2, балкон 5,2 м2. Адрес: Московская область, г. Дзержинский, ул.Героя России Виктора Дудкина . Возможна ИПОТЕКА. Дом комфорт класса с улучшенным планировочным решением. Тихий зеленый спальный район города. В нутри комплекса торговый центр, медицинский центр. Рядом с домом сетевые магазины Магнит, Пятерочка, фермерский магазин Алексеевский, Николо-угрешский монастырь. Хорошее сообщение с Москвой, остановка общественного транспорта через дорогу от дома до Москвы можно добраться на автобусе за 30 мин до м Кузьминки, Котельники, Люблино, Братиславская, Алма-Атинская, станция Люберцы ходят автобусы. Развитая инфраструктура города в шаговой доступности: школа, детский сад, детская площадка, автостоянка, сетевые и розничные магазины, отделение СберБанка, аптеки, поликлиника
11.04.2026
7 762 284 ₽
НОВЫЙ СОВРЕМЕННЫЙ ЖИЛОЙ КОМПЛЕКС ОТ НАДЕЖНОГО ЗАСТРОЙЩИКА! В исторической части города, в непосредственной близости с Николо-Угрешским монастырем и Москвой-рекой. Дом Введен в эксплуатацию. Продается 1 комнатная крупногабаритная квартира, площадь 45/17,3/13 м2, с/у совмещ. 4,2 м2, прихожая , лоджия. Адрес: Московская область, г. Дзержинский, ул. Героя России В. Дудкина д. 3. Возможна ИПОТЕКА. Дом комфорт класса с улучшенным планировочным решением. Тихий зеленый спальный район города. В нутри комплекса торговый центр, медицинский центр. Рядом с домом сетевые магазины Магнит, Пятерочка, фермерский магазин Алексеевский, Николо-угрешский монастырь. Хорошее сообщение с Москвой, остановка общественного транспорта через дорогу от дома до Москвы можно добраться на автобусе за 30 мин до м Кузьминки, Котельники, Люблино, Братиславская, Алма-Атинская, станция Люберцы ходят автобусы. Развитая инфраструктура города в шаговой доступности: школа, детский сад, детская площадка, автостоянка, сетевые и розничные магазины, отделение СберБанка, аптеки, поликлиника
28.08.2025
7 762 284 ₽
НОВЫЙ СОВРЕМЕННЫЙ ЖИЛОЙ КОМПЛЕКС ОТ НАДЕЖНОГО ЗАСТРОЙЩИКА! В исторической части города, в непосредственной близости с Николо-Угрешским монастырем и Москвой-рекой. Дом Введен в эксплуатацию. Продается 1 комнатная крупногабаритная квартира, площадь 45,2/17,3/12.9 м2, с/у совмещ. 4,2 м2, прихожая , лоджия. Адрес: Московская область, г. Дзержинский, ул. Героя России В. Дудкина д. 3. Возможна ИПОТЕКА. Дом комфорт класса с улучшенным планировочным решением. Тихий зеленый спальный район города. В нутри комплекса торговый центр, медицинский центр. Рядом с домом сетевые магазины Магнит, Пятерочка, фермерский магазин Алексеевский, Николо-угрешский монастырь. Хорошее сообщение с Москвой, остановка общественного транспорта через дорогу от дома до Москвы можно добраться на автобусе за 30 мин до м Кузьминки, Котельники, Люблино, Братиславская, Алма-Атинская, станция Люберцы ходят автобусы. Развитая инфраструктура города в шаговой доступности: школа, детский сад, детская площадка, автостоянка, сетевые и розничные магазины, отделение СберБанка, аптеки, поликлиника
28.08.2025
7 792 074 ₽
НОВЫЙ СОВРЕМЕННЫЙ ЖИЛОЙ КОМПЛЕКС ОТ НАДЕЖНОГО ЗАСТРОЙЩИКА! В исторической части города, в непосредственной близости с Николо-Угрешским монастырем и Москвой-рекой. Дом Введен в эксплуатацию. Продается 1 комнатная крупногабаритная квартира, площадь 45,3/17,3/13 м2, с/у совмещ. 4,2 м2, прихожая , лоджия. Адрес: Московская область, г. Дзержинский, ул. Героя России В. Дудкина д. 3. Возможна ИПОТЕКА. Дом комфорт класса с улучшенным планировочным решением. Тихий зеленый спальный район города. В нутри комплекса торговый центр, медицинский центр. Рядом с домом сетевые магазины Магнит, Пятерочка, фермерский магазин Алексеевский, Николо-угрешский монастырь. Хорошее сообщение с Москвой, остановка общественного транспорта через дорогу от дома до Москвы можно добраться на автобусе за 30 мин до м Кузьминки, Котельники, Люблино, Братиславская, Алма-Атинская, станция Люберцы ходят автобусы. Развитая инфраструктура города в шаговой доступности: школа, детский сад, детская площадка, автостоянка, сетевые и розничные магазины, отделение СберБанка, аптеки, поликлиника
28.08.2025
7 206 969 ₽
НОВЫЙ СОВРЕМЕННЫЙ ЖИЛОЙ КОМПЛЕКС ОТ НАДЕЖНОГО ЗАСТРОЙЩИКА! В исторической части города, в непосредственной близости с Николо-Угрешским монастырем и Москвой-рекой. Дом Введен в эксплуатацию. Продается 1 комнатная крупногабаритная квартира, площадь 45,3/17,3/13 м2, с/у совмещ. 4,2 м2, прихожая , лоджия. Адрес: Московская область, г. Дзержинский, ул. Героя России В. Дудкина д. 3. Возможна ИПОТЕКА. Дом комфорт класса с улучшенным планировочным решением. Тихий зеленый спальный район города. В нутри комплекса торговый центр, медицинский центр. Рядом с домом сетевые магазины Магнит, Пятерочка, фермерский магазин Алексеевский, Николо-угрешский монастырь. Хорошее сообщение с Москвой, остановка общественного транспорта через дорогу от дома до Москвы можно добраться на автобусе за 30 мин до м Кузьминки, Котельники, Люблино, Братиславская, Алма-Атинская, станция Люберцы ходят автобусы. Развитая инфраструктура города в шаговой доступности: школа, детский сад, детская площадка, автостоянка, сетевые и розничные магазины, отделение СберБанка, аптеки, поликлиника
28.08.2025
7 206 969 ₽
НОВЫЙ СОВРЕМЕННЫЙ ЖИЛОЙ КОМПЛЕКС ОТ НАДЕЖНОГО ЗАСТРОЙЩИКА! В исторической части города, в непосредственной близости с Николо-Угрешским монастырем и Москвой-рекой. Дом Введен в эксплуатацию. Продается 1 комнатная крупногабаритная квартира, площадь 45,2/17,3/13 м2, с/у совмещ. 4,2 м2, прихожая , лоджия. Адрес: Московская область, г. Дзержинский, ул. Героя России В. Дудкина д. 3. Возможна ИПОТЕКА. Дом комфорт класса с улучшенным планировочным решением. Тихий зеленый спальный район города. В нутри комплекса торговый центр, медицинский центр. Рядом с домом сетевые магазины Магнит, Пятерочка, фермерский магазин Алексеевский, Николо-угрешский монастырь. Хорошее сообщение с Москвой, остановка общественного транспорта через дорогу от дома до Москвы можно добраться на автобусе за 30 мин до м Кузьминки, Котельники, Люблино, Братиславская, Алма-Атинская, станция Люберцы ходят автобусы. Развитая инфраструктура города в шаговой доступности: школа, детский сад, детская площадка, автостоянка, сетевые и розничные магазины, отделение СберБанка, аптеки, поликлиника
28.08.2025
7 792 074 ₽
НОВЫЙ СОВРЕМЕННЫЙ ЖИЛОЙ КОМПЛЕКС ОТ НАДЕЖНОГО ЗАСТРОЙЩИКА! В исторической части города, в непосредственной близости с Николо-Угрешским монастырем и Москвой-рекой. Дом Введен в эксплуатацию. Продается 1 комнатная крупногабаритная квартира, площадь 45,1/17,2/12.9 м2, с/у совмещ. 4,2 м2, прихожая , лоджия. Адрес: Московская область, г. Дзержинский, ул. Героя России В. Дудкина д. 3. Возможна ИПОТЕКА. Дом комфорт класса с улучшенным планировочным решением. Тихий зеленый спальный район города. В нутри комплекса торговый центр, медицинский центр. Рядом с домом сетевые магазины Магнит, Пятерочка, фермерский магазин Алексеевский, Николо-угрешский монастырь. Хорошее сообщение с Москвой, остановка общественного транспорта через дорогу от дома до Москвы можно добраться на автобусе за 30 мин до м Кузьминки, Котельники, Люблино, Братиславская, Алма-Атинская, станция Люберцы ходят автобусы. Развитая инфраструктура города в шаговой доступности: школа, детский сад, детская площадка, автостоянка, сетевые и розничные магазины, отделение СберБанка, аптеки, поликлиника
28.08.2025
7 937 265 ₽
НОВЫЙ СОВРЕМЕННЫЙ ЖИЛОЙ КОМПЛЕКС ОТ НАДЕЖНОГО ЗАСТРОЙЩИКА! В исторической части города, в непосредственной близости с Николо-Угрешским монастырем и Москвой-рекой. Дом Введен в эксплуатацию. Продается 1 комнатная крупногабаритная квартира, площадь 43,8/17,3/12.9 м2, с/у совмещ. 4,2 м2, прихожая , лоджия. Адрес: Московская область, г. Дзержинский, ул. Героя России В. Дудкина д. 3. Возможна ИПОТЕКА. Дом комфорт класса с улучшенным планировочным решением. Тихий зеленый спальный район города. В нутри комплекса торговый центр, медицинский центр. Рядом с домом сетевые магазины Магнит, Пятерочка, фермерский магазин Алексеевский, Николо-угрешский монастырь. Хорошее сообщение с Москвой, остановка общественного транспорта через дорогу от дома до Москвы можно добраться на автобусе за 30 мин до м Кузьминки, Котельники, Люблино, Братиславская, Алма-Атинская, станция Люберцы ходят автобусы. Развитая инфраструктура города в шаговой доступности: школа, детский сад, детская площадка, автостоянка, сетевые и розничные магазины, отделение СберБанка, аптеки, поликлиника
28.08.2025
7 883 545 ₽
НОВЫЙ СОВРЕМЕННЫЙ ЖИЛОЙ КОМПЛЕКС ОТ НАДЕЖНОГО ЗАСТРОЙЩИКА! В исторической части города, в непосредственной близости с Николо-Угрешским монастырем и Москвой-рекой. Дом Введен в эксплуатацию. Продается 1 комнатная крупногабаритная квартира, площадь 45,3/17,4/13 м2, с/у совмещ. 4,2 м2, прихожая , лоджия. Адрес: Московская область, г. Дзержинский, ул. Героя России В. Дудкина д. 3. Возможна ИПОТЕКА. Дом комфорт класса с улучшенным планировочным решением. Тихий зеленый спальный район города. В нутри комплекса торговый центр, медицинский центр. Рядом с домом сетевые магазины Магнит, Пятерочка, фермерский магазин Алексеевский, Николо-угрешский монастырь. Хорошее сообщение с Москвой, остановка общественного транспорта через дорогу от дома до Москвы можно добраться на автобусе за 30 мин до м Кузьминки, Котельники, Люблино, Братиславская, Алма-Атинская, станция Люберцы ходят автобусы. Развитая инфраструктура города в шаговой доступности: школа, детский сад, детская площадка, автостоянка, сетевые и розничные магазины, отделение СберБанка, аптеки, поликлиника
28.08.2025
7 776 969 ₽
Неактивные объявления
Продаю квартиру в теплом кирпичном доме по адресу: Север Московской области гор. Талдом, пос. Северный, ул. Калинина, д.18/2. Поселок имеет всю городскую инфраструктуру. Все объекты: школа, детский сад, больница, магазины расположены в 5 минутах прогулочным шагом от дома.
09.03.2023
1 050 000 ₽
В архиве
Продается 3-х ком квартира,один взрослый собственник,легкая альтернатива, окна на две стороны.
29.05.2020
31 500 000 ₽
В архиве
Продается квартира-студия евро ЖК Живописный без отделки.
Особую прелесть комплексу придает близость зеленых массивов.
Инфраструктура максимально развита.
Подземный паркинг с отоплением и видеонаблюдением. В пошаговой доступности детский сад, салон красоты, кафе.
Застройщик: ООО "СЗ "Гранель Гранит
10.06.2024
8 377 002 ₽
В архиве
Продается 1 комнатная квартира в городе Москва, пос. Ерино,ул.Высокая дом 1 этаж 2/14 панельного дома, общая площадь 40,жилая 19, кухня 9. квартира в хорошем состоянии, раздельный санузел. Хороший район с развитой инфраструктурой, рядом школа, детский сад, остановка транспорта, магазины, аптека, банки. Полная стоимость в дкп.По документам Один взрослый собственник, в договоре полная стоимость.В собственности более 4 лет. Альтернативная продажа. Подходит под ипотеку цена 7.000.000 рублей.
31.03.2023
7 000 000 ₽
В архиве
Дом образцового порядка с новой отмосткой вокруг дома, не под снос - получила в администрации письмо, что наш дом был ошибочно внесён в постановление!
Продаю 2 комн.кв. 47 м2. 160 км от Москвы. Московская область, Шатурский район, пос. Радовицкий на озере Сельма. Продам в Подмосковье,лесной заповедник Мещёра, у озера Сельма, посёлок городского типа Радовицкий, городской округ Шатура - отличная экология, 2 комн кв, все удобства, 47/ 30 / 7 (комнаты 16 м и 14 м-изолированы) Ванна и туалет-раздельные, (унитаза два)есть кладовка - из неё сделали гардеробную, балкон. 140 км до Москвы, до автовокзала у м. Котельники.В посёлке городского типа Радовицкий (более 2 тыс.жителей)-есть почта, клуб, аптека, больница,дневной стационар,пожарная часть, школа, садик, сбербанк, 3 частных магазина и супермаркет "Пятёрочка", администрация, котельная. Озеро Сельма-рядом, дальше-Озеро Белое с санаторием, куда каждые 2 дня рабочих и служащих возит специальный автобус в 6 утра. Есть пруды, речки, рыбалка.Московская область, Шатурский район, пос. Радовицкий (автобус на Москву или Шатуру) Из Шатуры автобусом до Москвы (220 руб билет) или электричка (есть проездные, а разовый билет стоит около 300 руб, пенсионерам-бесплатно). Из пос. Радовицкий автобус на Москву стоит 310 руб.Или от Подлесной идёт до Москвы ежедневно. Если хотите посмотреть-удобнее ехать в понедельник, субботу в 8.30 о м. Котельники с 6 платформы Автобус 332 " Радовицкий Мох", без пересадок. Обратно можете поехать в 13.30 от дома и уехать в Москву. Есть в пятницу 17.40 и воскресенье 20.00, но это вечером. Рядом лес: клюква, брусника черника, грибы.Любителям рыбалки: озёра и речки.В квартире проведён безлимитный интернет от Ростелекома+ТВ..Всё делали новое в 2015 году: проводка электрическая, счётчик электрический новый, водяные трубы полипропилен, все смесители, сантехника, батареи современные, фильтры на воде (2 шт на входной трубе и питьевой "Аквафор", обои, ламинат, искусственный камень, плитка декоративная, 2 унитаза-один в отдельном туалете, второй-в ванной комнате. в одной комнате -портал каминный. Фото-панно немецкое в обеих комнатах. Вместо кладовки- сделали гардеробную. в коридоре-полки для книг и продуктов. Балкон застеклён, на полу-плитка. Если семья с детьми-очереди в садике нет. Школа хорошая. в клубе кружки и мероприятия для взрослых и детей. в среду и субботу-обязательная ярмарка. Привозят фермерские продукты недорогие: мясо, фарш, буженина, копчёное мясо, мёд и т. д. Вещевой базар и мебельный.Подъезд отремонтировали в ноябре 2018 года. Посёлок ухоженный, цветники, лавочки, детские площадки-администрация хорошо работает. Филиал управляющей компании находится в здании банка и паспортного стола.Идеальное место для пенсионеров,чьи дети работают в Москве и могут приехать на выходные, или для родителей с маленькими детьми.Много льгот у тех, у кого маленькая пенсия. Бесплатный проезд автобусом по всей Московской области.На электричке по всему Подмосковью, с 60 лет-на метро. Дом стоит напротив сквера, где почта, администрация и 3 магазина. Налево- Дом Культуры и большой лесопарк.От хоз.В собственности более 5 лет..Без торга.
19.08.2022
1 650 000 ₽
В архиве
Продается двухкомнатная квартира в ЮАО, район Нагатинский затон. Якорная ул., дом 3.
Квартира расположена на 5 этаже, 5-и этажного дома, вторая линия от проезжей части, в квартире всегда тихо, нет шума от проезжающего транспорта. Общая площадь 49, жилая 31, с/у раздельный, кухня 6. В собственности менее 3 лет, ипотека возможна, чистая продажа. Дом под реновацию на 25-27 г.
Прекрасный вариант для будущей инвестиции с гарантированным увеличением площади в этом районе. В квартире Никто не прописан. 100 процентов свободная продажа. Юридически и физически свободна. Быстрый выход на сделку. Квартира требует ремонта. Развитая инфраструктура района, в пешей доступности метро, школы, детские сады, набережная Москва реки парк Коломенское и Московский Диснейленд. Цена 14.000.000 тысяч рублей. Кадастровый номер объекта 77:05:0004009:10140
01.05.2023
14 000 000 ₽
В архиве
ЖК Алхимово корпус 1. Москва, Рязановское ш. 31к2. ДОМ СДАН. КЛЮЧИ ПОЛУЧЕНЫ. Квартира в собственность оформлена.
Продам 1-комн. квартира, площадью 36.5 м2. Жилая площадь 11 кв.м, кухня 14 кв.м.
Квартира располагается на 7 этаже 13-этажного монолитно-кирпичного дома , без отделки в новостройке, в экологичном и зеленом районе Новой Москвы МОСКОВСКАЯ ПРОПИСКА!!! Рядом расположен Дубровицкий лес, парк «Барыши», исторические усадьбы Остафьево, Плещеево, Дубровицы, а также река «Десна»
20 мин ПЕШКОМ ДО МЦД-2 «Силикатная» Школы, Сады, Поликлиники, Дворы в Европейском стиле с нестандартными архитектурными и дизайнерскими решениями. . В 2 минутах от жилого комплекса - Рязановское шоссе, а в 6 минутах - выезд на Варшавское шоссе. т.
Гардеробная, Железная дверь
28.04.2022
8 300 000 ₽
В архиве
Продается 2-х комнатная квартира по адресу: г. Москва, ул. Просторная, д. 10, корп. 3, метро Преображенская площадь, 10 минут пешком.
Квартира расположена на 2 этаже 5-и этажного кирпичного дома. Общая площадь 41 м2, комнаты изолированные 19 и 9 м2, кухня 5,5 м2, с/у раздельный, балкон, окна во двор.
Дом расположен вдали от шумных дорог, в тихом зелёном дворе. В квартире очень тихо.
В шаговой доступности - вся необходимая инфраструктура: несколько школ, детские сады, супермаркеты, банки, вся сфера услуг и т.д.
Полная сумма в договоре. Один собственник. Свободная продажа.
Цена 11 200 000 руб. Тел. 8-985-233-4642
28.04.2022
11 200 000 ₽
В архиве
Продается 1-комнатная квартира ЖК "Императорские Мытищи" без отделки.Особую прелесть комплексу придает близость зеленых массивов. Инфраструктура максимально развита. В пошаговой доступности эко-парк, школа, детский сад, гимназия, фитнес-зал, аптека, кафе, кинотеатр и ресторан.
Проектная декларация на сайте
Застройщик: ООО "СЗ "Гранель Гранит
06.05.2022
8 306 619 ₽
В архиве
Предлагаем Вашему вниманию новую студия в апарт-комплексе Кусково. Адрес: г. Москва, аллея Первой Маёвки, д. 15, стр. 1, метро Рязанский проспект, 10 минут пешком.
5/6 эт. кирпичного дома. Общая площадь 20 м2, комната 15 м2, с/у совмещенный, вид из окна на парк. Потолки 3,5 м.!
Только закончили ремонт. Грамотная планировка, качественная мебель и техника, функциональная кухня. Встроенный холодильник, варочная панель, стиральная машинка, телевизор. Удобный двуспальный диван с ортопедическим основанием. На втором уровне полноценное спальное место, можно дополнительно разместить зону хранения вещей.
Выгодный арендный бизнес. Комплекс с большой закрытой придомовой территорией, есть собственная парковка, круглосуточная охрана. Парадный подъезд, консьерж сервис. Рядом с домом - огромный Кусковский лесопарк, в пешей доступности усадьба Кусково, парк Радуга, пруды. Вся необходимая инфраструктура в наличии - супермаркеты, вся сфера услуг, школы, детские сады и т.д.
Оперативный показ, документы готовы к сделке! Возможна ипотека, свободная продажа. Цена 6 000 000 руб. Тел. 8-968-853-0856
16.05.2022
6 000 000 ₽
В архиве
Продаётся прекрасная ,готовая к проживанию 2 комнатная квартира, расположенная на 3 этаже 5 этажного кирпичного , тёплого дома 1973 года постройки по адресу: г. Королев, мкр. Текстильщик, ул. Молодёжная, д. 1.Общая площадь 46.5 кв.м. Планировка распашонка. Застеклённый, утепленный балкон. В квартире произведён капитальный евроремонт с использованием качественных материалов( делали для себя). Кухонный гарнитур остаётся.Видео наблюдение. Свое парковочное место. В собственности более 3 лет, один собственник. Несложная альтернатива.Развитая инфраструктура : детские сады,школа,поликлиника,Сбербанк,магазины,почта.Отличная транспортная доступность.Рядом остановка автобуса до м.ВДНХ,время в пути 30 мин.До ж/д станции Подлипки-Дачные 10 мин на общественном транспорте.Удобный выезд на Ярославское шоссе.Ипотека возможна.Помощь в одобрение и получении ипотечного кредита.
20.02.2023
7 800 000 ₽
В архиве
Продается 2-х комнатная квартира в г. Королев, ул. Гагарина,д.46. Квартира расположена на 4 этаже 5 этажного панельного дома 1959 года постройки.Квартира требует ремонта.Прекрасный ,удобный для жизни район с отлично развитой инфраструктурой.Удобное местоположение дома :рядом с домом центральный городской парк , ЦГБ,взрослая поликлиника,ледовый дворец, спортивно-оздоровительный комплекс с бассейном и фитнес-клубом, детский развлекательный комплекс. В шаговой доступности сетевые магазины, детские площадки, школы 1, 13, 7, школа искусств, детские сады. Автобусная остановка в 5 минутах пешком от дома. ПЕШАЯ доступность до станции до ж/д станции "Подлипки-Дачные" 15 минут (экспресс до станции метро Комсомольская - 25 минут). Прямой выезд на Ярославское шоссе.Один взрослый собственник. Более 5 лет в собственности .Наследство.Несложная альтернатива.Ипотека возможна .Помощь в одобрении и получении ипотечного кредита .
20.02.2023
6 450 000 ₽
В архиве
Продаётся прекрасная ,готовая к проживанию 2 комнатная квартира, расположенная на 3 этаже 5 этажного кирпичного , тёплого дома 1973 года постройки по адресу: г. Королев, мкр. Текстильщик, ул. Молодёжная, д. 1.Общая площадь 46.5 кв.м. Планировка распашонка. Застеклённый, утепленный балкон. В квартире произведён капитальный евроремонт с использованием качественных материалов( делали для себя). Кухонный гарнитур остаётся.Видео наблюдение. Свое парковочное место. В собственности более 3 лет, один собственник. Несложная альтернатива.Развитая инфраструктура : детские сады,школа, транспортная доступность.Рядом остановка автобуса до м.ВДНХ,время в пути 30 мин.До ж/д станции Подлипки-Дачные 10 мин на общественном транспорте.Удобный выезд на Ярославское шоссе.Ипотека возможна.Помощь в одобрение и получении ипотеки.Торг.
20.02.2023
7 800 000 ₽
В архиве
Продаётся 2-х комнатная квартира в ЖК "Остафьево".
Продажа по переуступке от застройщика. Субсидированная ипотека проходит. Квартира в ипотеке у Альфа-Банка. Чистовая отделка.
ЖК "Остафьево"- это масштабный проект в Новой Москве, в 11 км от МКАД.
Жители комплекса смогут оформить московскую прописку - это дополнительные социальные льготы от правительства Москвы.
Станция метро "Бунинская аллея" расположена в 7 минутах езды, станции МЦД-2 "Щербинка" и "Остафьево" - в 3 км. Возле комплекса организован выезд на дублер Остафьевского шоссе.
Многоуровневый паркинг создаст удобное и безопасное размещение авто на территории комплекса. За пределами дворов - дополнительные парковочные места для жителей и их гостей.
Помимо жилых корпусов застройщик возведет и объекты инфраструктуры: школы, детские сады и поликлинику. На первых этажах домов запроектированы коммерческие помещения под магазины продовольственных и непродовольственных товаров, аптеки, салоны красоты, кафе и другие предприятия.
Рядом с ЖК - парк "Барыши", сосновая роща с прогулочными аллеями и Молодцевский пруд. В 10 минутах ходьбы находится Музей- усадьба "Остафьево".
Проектной декларацией предусмотрено масштабное благоустройство придомовых территорий. Во дворах установят многофункциональные игровые городки для малышей и уличные спортивные комплексы, выполнят озеленение пространства, проложат прогулочные и беговые дорожки.
Записывайтесь на просмотр прямо сейчас!
25.05.2022
12 300 000 ₽
В архиве
Предлагается трехкомнатная квартира в жилом доме Академии Наук на 6 этаже в 11 этажном доме. В экологически чистом районе г.Москвы. ЮЗАО (Р-он Гагаринский) В 10 минутах ходьбы от станции метро Академическая Университет. Добротный кирпичный дом с потолками 3 метра. .В доме был произведен капитальный ремонт с заменой лифтов. . Въезды во двор перекрыты шлагбаумами, всегда есть парковочные места. Комнаты изолированные: 20 и 18 кв.м, кухня -15 кв.м ,совмещенная с гостиной -Студия-45 кв.м В прихожей-гардеробная -3 кв.м зеркальный шкаф-купе. Оборудована просторная совмещенная ванная комната-12 кв.м. с теплым полом. Установлен кондиционер. Проведены интернет, телевидение, городской телефон. Район один из лучших в Москве.Придомовая территория ограничена шлагбаумом. Рядом с домом работают сетевые супермаркеты и магазины, кафе, отделения банков, фитнес-клуб. Недалеко - образовательные и медицинские учреждения. Для прогулок доступны парки имени 40-летия влксм, Академический. Удобный выезд на Ленинский проспект. Рядом парки, институты,университеты, рестораны,В пешей доступности от дома супермаркеты, школы, прогулочная зеленая зона, почта Удобные транспортные развязки. 10 мин. на машине до Красной площади..Интеллигентные соседи. В основном профессорско-преподавательские семьи работников МГУ и других ВУЗов и НИИ, расположенных на Ленинском пр-те.
Квартира более 5-ти лет в собственности. 3 взрослых собственник Срочная продажа. Оперативный показ
25.05.2022
36 500 000 ₽
В архиве
Продаю срочно 4-комн. кв-ру, комнаты смежно-раздельные, с\у раздельный, лоджия, газ, кухня 6 кв. м. Квартира требует ремонта. 15 мин. транспортом до метро. Один собственник.
31.05.2022
10 000 000 ₽
В архиве
Продается квартира в ЖК "Мытищи Lite". Свободная продажа. Быстрый выход на сделку. Юридически и физически свободна.
ЖК "Мытищи Lite" - это отличная экология, удобное расположение, максимальный комфорт! Жилой комплекс создан по индивидуальному архитектурному проекту с использованием самых современных технологий и материалов с реализацией концепции замкнутого экогорода. Микрорайон окружен густым хвойным лесом, а рядом большое, чистое и живописное Пироговское водохранилище.
Всего в 6 км от МКАД по Осташковскому шоссе. Планируется строительство станции метро Челобитьево Калужско-Рижской линии.
Собственная школа, детский сад. Развитая инфраструктура района - медицинский центр, торговая инфраструктура, рестораны, многофункциональный офисно-торгово-развлекательный комплекс с фитнес центром и парком развлечений, подземные и наземные паркинги, хоккейно-баскетбольные площадки, велосипедные и беговые дорожки, физкультурно-оздоровительный комплекс.
Двойная система ограничения доступа во внутренние дворы и подъезд.
Мытищи Lite новое место для жизни, в котором свободно и комфортно. Остается только наслаждаться!
03.06.2022
12 750 000 ₽
В архиве
Продажа 1 комн. квартиры в ЖК Символ в Москве
Продаётся 1-комнатная квартира в жилом комплексе бизнес-класса «Символ» по адресу: г.Москва, ЮВАО, район Лефортово, проезд Невельского, д.1к4.
Отличная транспортная доступность – к территории ЖК примыкают шоссе Энтузиастов, ТТК; расстояние до Садового кольца 1,5 км, до МКАД 14 км.
В пешей доступности станции метро: Авиамоторная, Площадь Ильича, Лефортово и Римская.
ЖК «Символ» расположен в историческом районе на границе с ЦАО, в 5-ти км от Кремля.
Площадь Комплекса 60 га, состоит из 4-х кварталов, рассчитанных на проживание 19 тысяч человек. Каждый имеет своё название: «Достоинство», «Искренность», «Смелость» и «Свобода».
Квартира находится в квартале «Смелость» на 9 -ом этаже 28-этажного монолитного дома.
Общая площадь 31,6 кв.м, комната 16,4 кв.м, кухня 10,6, совмещённый с/у 3,5 кв.м, балкон 1,1 кв.м.
Высота потолков 3,1 м; оконное остекление увеличено до 2-х метров.
Свободная планировка с трассированием мокрых точек и без отделки. Перегородки на плане указаны условно.
В квартире предусмотрена система приточно-вытяжной вентиляции и индивидуальное кондиционирование.
Разводка отопления - горизонтальная.
Установлена капитальная металлическая дизайнерская дверь, радиаторы и счётчики на воду, электричество и отопление.
В парадной, 2 бесшумных скоростных лифта, по которым можно спуститься со своего этажа в подземный двухуровневый паркинг с круглосуточным видеонаблюдением, охраной и автоматической мойкой колёс.
На 10 и 11 этажах дома расположены открытые благоустроенные террасы.
В холле есть места для хранения велосипедов и колясок, установлены цифровые почтовые ящики, действует круглосуточная служба консьержа и видеодомофонная связь.
Площадь внутреннего двора квартала «Смелость» - 1 га.
Дом сдан. Продажа квартиры по договору уступки
Застройщик - компания «Донстрой», основана в 1994 г. Входит в число ведущих девелоперов Москвы. Специализируются на возведении высотных жилых домов в сегменте «бизнес», «премиум» и «де люкс».
Концепция ЖК «Символ» разработана звёздами мировой архитектуры - британским бюро LDA Design и UHA London, а проектирование выполнялось московскими мастерскими «Атриум» и «Моспроект-1».
Особое внимание в комплексе уделяется безопасности: территории внутренних дворов огорожены, действует охрана 24/7 с системой видеонаблюдения, вход на территорию по индивидуальным картам.
ЖК «Символ» - это «город в городе». На территории предусмотрены 2 школы, включая физико-математический лицей под патронажем МГТУ им.Баумана, 8 детских садов, детская и взрослая поликлиники и медицинские центры, ТРК, 2 стадиона, фитнес-клуб с бассейном, дом культуры, банки, рестораны и многое другое.
40% всей территории жилого комплекса занимает Центральный городской парк «Зелёная река», протяжённостью 2 км. Здесь проложены пешеходные и велосипедные маршруты, обустроены площадки воркаута для занятий спортом, роллердромы и скейтпарки, а также зоны для йоги, спортивных и интеллектуальных игр на свежем воздухе.
Также жителям ЖК «Символ» доступна вся уже сложившаяся инфраструктура района Лефортово. Именно здесь расположены сохранившиеся дворянские усадьбы, дворцы и великолепные парки: Версаль на Яузе, парки Казачьей Славы и парк Лефортово с многочисленными прудами и Плотиной Венеры
03.06.2022
12 000 000 ₽
В архиве
Продаю 3-х комн. Квартиру от Собственника.
Москва, ЦАО, Район Замоскворечье. Метро Павелецкая, Добрынинская, Серпуховская 4-7 мин. пешком. Адрес: Москва, ул.Валовая, д.8/18, 3 эт. 11 эт. кирп. Сталинского Дома, 1962 г. постройки. Дом после кап. Ремонта. Благоустроенный подъезд. Консъерж. 2 лифта.
Цена: 500000000 руб.. Возможны: Ипотека, а с серьёзным Покупателем - И серьёзный ТОРГ.
Общ. пл. - 84,3 кв.м. Жил. пл. - 50,8 кв.м. 2 изолир. Комнаты (17,0 кв.м. и 15,1 кв.м.). 3-я комната (18,7 кв.м.) объединена с кухней (5,40 кв.м.) в кухню-гостиную (24,1 кв.м.), со встроенной мебелью и бытовыми приборами. Разделена барной стойкой. Гардероб отдельная комната 3 кв.м..
ВСЕ Перепланировки узаконены и внесены в Акт.
2 санузла, в гостевом - унитаз и раковина, во втором +джакузи. 2 городских телефон. Линии (МГТС). Оптико-волокно интернет, цифровое ТВ, Три окна квартиры выходят в тихий зеленый двор. Окна трехстворчатые, пластик, двойной триплекс. Кондиционеры. Потолки: перекрытия ж/б, h=3,05 м. Полы буковый паркет. Застекленная, утепленная лоджия, "французские" распашные 3-х стекольные окна.
Развитый Общ. Транспорт. Выезд на основные Магистрали города 5-10 мин.
ВСЁ в шаговой доступности (до 500 м.): Детсад и Школа во дворе дома. Предприятия и Учреждения Медицины, Культуры, Досуга и Быта, Магазины, Кафе и Рестораны. Места отдыха и скверы. Парк им. М.Горького - 1 км.
Безопасность проживания и условия продажи:
Закрытая дворовая территория (охрана Чоп). Въезд под шлагбаум. Домофон и видеонаблюдение. Консьерж. Общий закрытый тамбур на 2 квартиры. Железные двери. В соседней квартире никто не проживает. Выделенных 2 машиноместа на охраняемой автостоянке во дворе, в 15 м. от подъезда.
Прямая, Свободная продажа вместе со всей мебелью и оборудованием.
1 Взросл. Собственник. ДКП (Полная стоимость). Документы к Сделке готовы. Звоните и пишите потенциальные Покупатели и коллеги риэлторы. Вам Бонус = 50.000 руб.
Просмотры по предварительной договоренности.
16.08.2025
50 000 000 ₽
В архиве
ОТЛИЧНОЕ ПРЕДЛОЖЕНИЕ! Подойдет и для жизни, и для сдачи в аренду! Полная стоимость в договоре, без перепланировок, собственность менее 3-х лет. Прописанных нет.
Москва, ул. Куусинена, д. 21, 2-комн. квартира, 3/4-х этажного дома. Чистый подъезд. Отделка white box. Парковка во дворе. Дом после кап. ремонта. Общая площадь – 56,9 кв.м., жилая – 35,5 кв.м., кухня – 7,5 кв.м., с/у раздельный, 2 изолированные комнаты, потолки 3 м. 1 взрослый собственник.
Находится в окружении парков, метро Сокол, Полежаевская, МЦД Зорге, на первом этаже Прокуратура САО, соседство с ней повышает безопасность этого дома - у них своя огороженная парковка, везде камеры, также есть парковка при доме открытая. Ухоженный благоустроенный двор, разнообразная инфраструктура в шаговой доступности – д/с, школы, детские игровые площадки, магазины, аптеки, поликлиники, салоны красоты, большие сетевые магазины Пятерочка, Дикси, Магнит.
Быстрый выход на сделку. Цена 17 700 000 руб
22.06.2022
17 700 000 ₽
В архиве
Продается квартира на последнем этаже со своей террасой, где можно приготовить барбекю, поставить надувной бассейн или просто загорать.
Общая площадь квартиры 95 кв.м.
В квартире 4 комнаты, из них 1 гостиная и 3 спальни, а также кухня и одна ванная комната. Площадь большой террасы 30 кв.м.
До центрального пляжа добираться не более 30 минут пешком.
Квартира расположена в спальном районе города с хорошо развитой инфраструктурой.
Мы предлагаем исключительно полное сопровождение сделки.
В наши обязанности входит:
- оформление номера иностранца (NIE);
• открытие счета в банке;
- проверка чистоты документов;
- проверка на задолженности и обременения;
- сопровождение у нотариуса;
- оплата налога собственности;
- оформление собственность;
- переоформление воды и света на Вас;
- прописка по новому месту жительства.
Также есть возможность приобретения данной квартиры удаленно по доверенности. Услуга полностью дистанционная.
Стоимость - 69900 Евро.
Помимо этого готовы сделать индивидуальный подбор недвижимости в Испании по Вашим критериям.
Квартиры от 40000, дома от 100000 Евро.
Готовы предложить помощь с адаптацией в Испании, устройством детей в школу и языковые курсы.
Прописка, открытие счета в банке, медицинские страховки, оформление документов, переводы и прочее.
Если Вас заинтересовало наше предложение - звоните по указанному номеру телефона и мы с радостью ответим на любые Ваши вопросы.
Тел.: +34625383623. Роман Сергеевич.
25.06.2022
3 985 000 ₽
В архиве









































