Продам коммерческую недвижимость 778 м2
Размещено 12 марта 2026
18
0
Жалоба
- Параметры объявления
- Общая площадь (м2): 778
- Описание
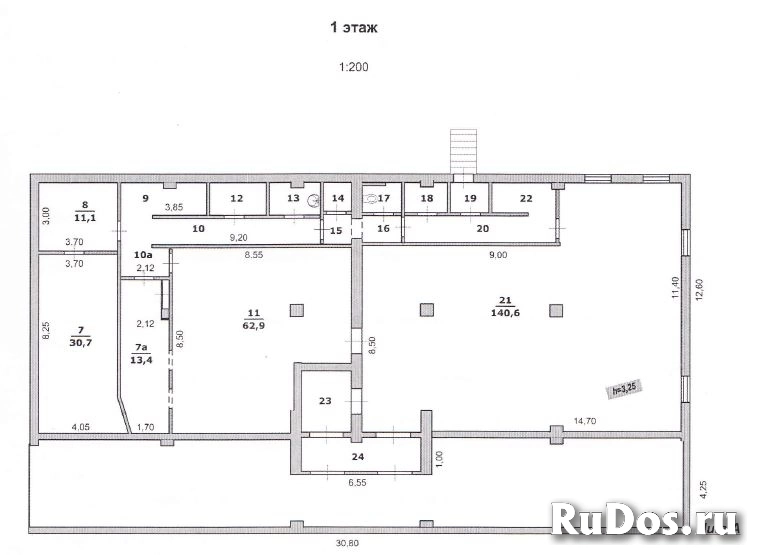
Продается нежилое помещение площадью 777.9 кв.м. Местоположение: Белгородская область, г. Белгород, ул. Горького, д. 60 Кадастровый номер: 31:16:0101001:9934 Номер, тип этажа, на котором расположено помещение, машино-место: Этаж № подвал, 1 Вид, номер, дата и время государственной регистрации права: Собственность 31:16:0101001:9934-31/001/2019-3 от 24.10.2019 Ограничение прав и обременение объекта недвижимости: не зарегистрировано. Год постройки - 1981. Материал стен кирпичные. Планировка смешанная. Высота потолков - 3,25 м. Основное назначение - производственное помещение. Вход в помещение отдельный с улицы. Доступ в помещение - свободный. Общее состояние помещения - требуется капитальный ремонт. Коммуникации центральные. Парковка - стихийная. Находится в шаговой доступности от общественных мест (магазинов, садов, школ и прочее) и в хорошем районе. Отличная транспортная развязка: рядом остановка общественного транспорта. Звоните в рабочее время, будем рады оперативно ответить на любые вопросы.
