Продам коттедж 194 м2
Размещено 25 октября 2025
7
0
Жалоба
- Параметры объявления
- Площадь дома (м2): 194
- Площадь участка (соток): 6
- Описание
От застройщика! Новый 2-х этажный коттедж 194 кв.м на участке 6 соток в КП «Новая Дятловка».
Семейная и IT ипотека - 6%.
Планировка по проекту:
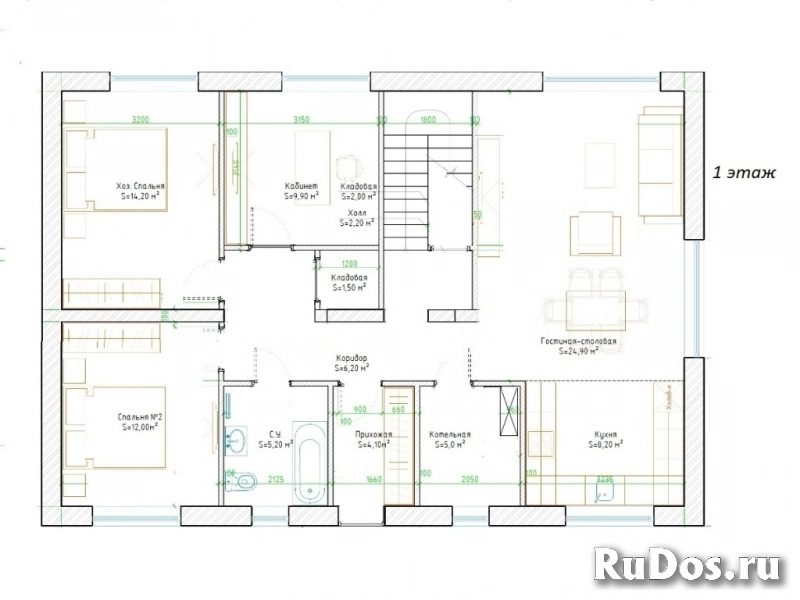
1 этаж: Просторная кухня-гостиная 33 кв.м с окнами на три стороны света и панорамной дверью на крытую террасу; три комнаты (10/12/14 кв.м), ванная комната, бойлерная, гардеробная, прихожая.
Высокие потолки- 3 метра.
2 этаж: Три спальни (17/16/22), с/у с душевой, много мест для хранения.
Потолки - 3 метра.
Дом без внутренней отделки.
Коммуникации: Электричество и магистральный газ заведены на участок.
Земельный участок: 6 соток, ровный, правильной формы, перед домом предусмотрено место для парковки 2-х авто. Забор - металлический штакетник высотой 2м.
Назначение - ИЖС. Прописка - деревня Дятловка, г.о. Балашиха. Без проблем прикрепиться к садику, школе, поликлинике.
Технологии и материалы:
- Фундамент: Свайный с ростверком (монолитный с армированием) с заглублением 3м;
- Стены: Газобетонный блок Бонолит, толщина внешних стен 400мм;
- Фасад: Штукатурка, покраска, фасадный декор; Цоколь утеплен и облицован термопанелями; выполнена отмостка;
- Кровля: Двухскатная из метало-черепицы с установкой снегозадержателей и водосточной системы;
- Окна Melke: Металло-пластиковые двухкамерные стеклопакеты с поворотно-откидным механизмом и французским балконом с кованным ограждением на 2-м этаже;
- Крыльцо с навесом;
- Входная металлическая дверь.
О поселке: Асфальтированные дороги. Общее освещение. Закрытая территория. В поселке оборудована детско-спортивная площадка с воркаутом и зоной отдыха.
Чистый и свежий воздух, удаленность от трасс и многоэтажек,тишина и уединение с природой и при этом оптимальное расстояние до города- всего 3 км от мкр. Железнодорожный и 17 км от МКАД (м. Новокосино).
Инфраструктура:
Все поблизости: Детский сад, школа, амбулатория, парк, банк, почта, спортивный комплекс с плавательным бассейном в Агрогородке - 10 мин на авто/автобусе. В д.Дятловка расположена остановка школьного автобуса, где утром забирает, а после уроков привозит ребят школьный автобус. В шаговой доступности Вкус Вилл, Пятерочка, пункты Яндекс/Озон/Валдбериз, аптека и тд.
ТЦ, рестораны, кафе, сетевые магазины и другая социально-бытовая инфраструктура расположена в городе Железнодорожном - 15 мин. на авто.
Как добраться:
От коттеджного поселка до остановки автобуса 10 минут пешком. Автобус №26 идет до ж/д станции "Черное"- 10 минут, до ж/д станции "Железнодорожная" - 20 минут.
Открыт участок автомобильной трассы М12 Москва-Ногинск, легкое метро МЦД-4 (от Апрелевки до Железнодорожного), что значительно сокращает время в пути.
Прямая продажа от застройщика. Вся стоимость в договор. Одобрение ипотеки и сопровождение сделки - бесплатно. Семейная и IT ипотека - 6%. Индивидуальная рассрочка до 12 месяцев. Специальное предложение: скидка 3% для многодетных семей и участников СВО!
Добро пожаловать в Новую Дятловку!
Семейная и IT ипотека - 6%.
Планировка по проекту:
1 этаж: Просторная кухня-гостиная 33 кв.м с окнами на три стороны света и панорамной дверью на крытую террасу; три комнаты (10/12/14 кв.м), ванная комната, бойлерная, гардеробная, прихожая.
Высокие потолки- 3 метра.
2 этаж: Три спальни (17/16/22), с/у с душевой, много мест для хранения.
Потолки - 3 метра.
Дом без внутренней отделки.
Коммуникации: Электричество и магистральный газ заведены на участок.
Земельный участок: 6 соток, ровный, правильной формы, перед домом предусмотрено место для парковки 2-х авто. Забор - металлический штакетник высотой 2м.
Назначение - ИЖС. Прописка - деревня Дятловка, г.о. Балашиха. Без проблем прикрепиться к садику, школе, поликлинике.
Технологии и материалы:
- Фундамент: Свайный с ростверком (монолитный с армированием) с заглублением 3м;
- Стены: Газобетонный блок Бонолит, толщина внешних стен 400мм;
- Фасад: Штукатурка, покраска, фасадный декор; Цоколь утеплен и облицован термопанелями; выполнена отмостка;
- Кровля: Двухскатная из метало-черепицы с установкой снегозадержателей и водосточной системы;
- Окна Melke: Металло-пластиковые двухкамерные стеклопакеты с поворотно-откидным механизмом и французским балконом с кованным ограждением на 2-м этаже;
- Крыльцо с навесом;
- Входная металлическая дверь.
О поселке: Асфальтированные дороги. Общее освещение. Закрытая территория. В поселке оборудована детско-спортивная площадка с воркаутом и зоной отдыха.
Чистый и свежий воздух, удаленность от трасс и многоэтажек,тишина и уединение с природой и при этом оптимальное расстояние до города- всего 3 км от мкр. Железнодорожный и 17 км от МКАД (м. Новокосино).
Инфраструктура:
Все поблизости: Детский сад, школа, амбулатория, парк, банк, почта, спортивный комплекс с плавательным бассейном в Агрогородке - 10 мин на авто/автобусе. В д.Дятловка расположена остановка школьного автобуса, где утром забирает, а после уроков привозит ребят школьный автобус. В шаговой доступности Вкус Вилл, Пятерочка, пункты Яндекс/Озон/Валдбериз, аптека и тд.
ТЦ, рестораны, кафе, сетевые магазины и другая социально-бытовая инфраструктура расположена в городе Железнодорожном - 15 мин. на авто.
Как добраться:
От коттеджного поселка до остановки автобуса 10 минут пешком. Автобус №26 идет до ж/д станции "Черное"- 10 минут, до ж/д станции "Железнодорожная" - 20 минут.
Открыт участок автомобильной трассы М12 Москва-Ногинск, легкое метро МЦД-4 (от Апрелевки до Железнодорожного), что значительно сокращает время в пути.
Прямая продажа от застройщика. Вся стоимость в договор. Одобрение ипотеки и сопровождение сделки - бесплатно. Семейная и IT ипотека - 6%. Индивидуальная рассрочка до 12 месяцев. Специальное предложение: скидка 3% для многодетных семей и участников СВО!
Добро пожаловать в Новую Дятловку!
