Продам коттедж 117 м2
Размещено 23 декабря 2025
2
0
Жалоба
- Параметры объявления
- Площадь дома (м2): 117
- Площадь участка (соток): 6
- Описание
От застройщика! Новый одноэтажный коттедж 117,8 кв.м с отделкой White box на участке 6 соток в КП «Новая Дятловка».
Отделка White box: В доме установлены межкомнатные стены; выполнена разводка всех коммуникаций; натяжной потолок; оборудована котельная под ключ.
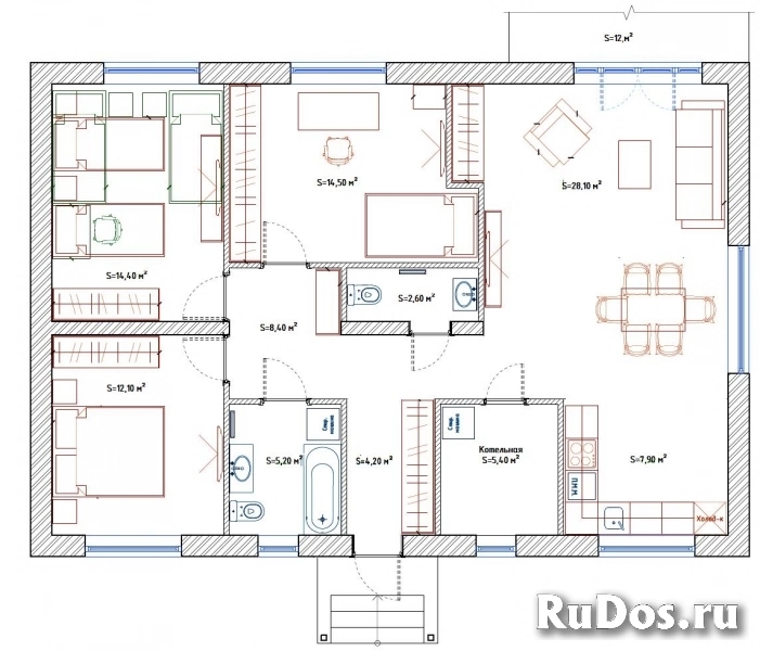
Планировка по проекту:
1 этаж
Просторная кухня-гостиная 36 кв.м с окнами на три стороны света и панорамной дверью на крытую террасу 12 кв.м;
3 изолированные комнаты 12/14/14 кв.м, ванная комната, гостевой с/у, бойлерная, гардеробная.
Высокие потолки - 3 метра.
Коммуникации в доме: Электричество, магистральный газ, автономная канализация, вода – индивидуальная скважина, отопление от газового котла.
Земельный участок: 6 соток, ровный правильной формы. Назначение - индивидуальное жилищное строительство (ИЖС), прописка – д. Дятловка, г.о. Балашиха
Вы можете прикрепиться к садику, школе, поликлинике.
Коттедж построен из высококачественных материалов с соблюдением всех технологий:
- Фундамент: Свайный с ростверком (монолитный с армированием) с заглублением 3 м;
- Стены: Газобетонный блок Бонолит, толщина внешних стен 400мм;
- Фасад: Штукатурка, покраска, Цоколь утеплен и облицован термопанелями, выполнена отмостка;
- Кровля: Четырехскатная из метало-черепицы с установкой снегозадержателей и водосточной системы;
- Окна: Металло-пластиковые двухкамерные стеклопакеты с поворотно-откидным механизмом;
- Крыльцо с навесом.
- Терраса с навесом;
- Входная металлическая утепленная дверь;
- Забор - металлический штакетник высотой 2м.
О поселке: Асфальтированные дороги. Общее освещение. Закрытая территория. В поселке оборудована детско-спортивная площадка с воркаутом и зоной отдыха.
Чистый и свежий воздух, удаленность от трасс и многоэтажек, тишина и уединение с природой и при этом оптимальное расстояние до города - всего 3 км от мкр. Железнодорожный и 17 км от МКАД. Ближайшие станции метро: Новокосино, Железнодорожная, Некрасовка.
Инфраструктура:
Все поблизости: Детский сад, школа, амбулатория, парк, банк, почта, спортивный комплекс с плавательным бассейном в Агрогородке - 10 мин на авто/автобусе. В д.Дятловка расположена остановка школьного автобуса, где утром забирает, а после уроков привозит ребят школьный автобус. В шаговой доступности Вкус Вилл, Пятерочка, пункты Яндекс/Озон/Валдбериз, аптека и тд.
ТЦ, рестораны, кафе, магазины и другая социально-бытовая инфраструктура расположена в городе Железнодорожном - 15 минут на авто.
Как добраться:
От коттеджного поселка до остановки автобуса 10 минут пешком. Автобус №26 идет до ж/д станции "Черное"- 10 минут, до ж/д станции "Железнодорожная" - 20 минут.
Открыт участок автомобильной трассы М12 Москва-Ногинск, легкое метро МЦД-4 (от Апрелевки до Железнодорожного).
Продажа от застройщика. Вся стоимость в договор. Одобрение ипотеки и сопровождение сделки - бесплатно. Индивидуальная рассрочка до 12 месяцев. Скидка 3% для многодетных семей и участников СВО!
Добро пожаловать в Новую Дятловку!
Отделка White box: В доме установлены межкомнатные стены; выполнена разводка всех коммуникаций; натяжной потолок; оборудована котельная под ключ.
Планировка по проекту:
1 этаж
Просторная кухня-гостиная 36 кв.м с окнами на три стороны света и панорамной дверью на крытую террасу 12 кв.м;
3 изолированные комнаты 12/14/14 кв.м, ванная комната, гостевой с/у, бойлерная, гардеробная.
Высокие потолки - 3 метра.
Коммуникации в доме: Электричество, магистральный газ, автономная канализация, вода – индивидуальная скважина, отопление от газового котла.
Земельный участок: 6 соток, ровный правильной формы. Назначение - индивидуальное жилищное строительство (ИЖС), прописка – д. Дятловка, г.о. Балашиха
Вы можете прикрепиться к садику, школе, поликлинике.
Коттедж построен из высококачественных материалов с соблюдением всех технологий:
- Фундамент: Свайный с ростверком (монолитный с армированием) с заглублением 3 м;
- Стены: Газобетонный блок Бонолит, толщина внешних стен 400мм;
- Фасад: Штукатурка, покраска, Цоколь утеплен и облицован термопанелями, выполнена отмостка;
- Кровля: Четырехскатная из метало-черепицы с установкой снегозадержателей и водосточной системы;
- Окна: Металло-пластиковые двухкамерные стеклопакеты с поворотно-откидным механизмом;
- Крыльцо с навесом.
- Терраса с навесом;
- Входная металлическая утепленная дверь;
- Забор - металлический штакетник высотой 2м.
О поселке: Асфальтированные дороги. Общее освещение. Закрытая территория. В поселке оборудована детско-спортивная площадка с воркаутом и зоной отдыха.
Чистый и свежий воздух, удаленность от трасс и многоэтажек, тишина и уединение с природой и при этом оптимальное расстояние до города - всего 3 км от мкр. Железнодорожный и 17 км от МКАД. Ближайшие станции метро: Новокосино, Железнодорожная, Некрасовка.
Инфраструктура:
Все поблизости: Детский сад, школа, амбулатория, парк, банк, почта, спортивный комплекс с плавательным бассейном в Агрогородке - 10 мин на авто/автобусе. В д.Дятловка расположена остановка школьного автобуса, где утром забирает, а после уроков привозит ребят школьный автобус. В шаговой доступности Вкус Вилл, Пятерочка, пункты Яндекс/Озон/Валдбериз, аптека и тд.
ТЦ, рестораны, кафе, магазины и другая социально-бытовая инфраструктура расположена в городе Железнодорожном - 15 минут на авто.
Как добраться:
От коттеджного поселка до остановки автобуса 10 минут пешком. Автобус №26 идет до ж/д станции "Черное"- 10 минут, до ж/д станции "Железнодорожная" - 20 минут.
Открыт участок автомобильной трассы М12 Москва-Ногинск, легкое метро МЦД-4 (от Апрелевки до Железнодорожного).
Продажа от застройщика. Вся стоимость в договор. Одобрение ипотеки и сопровождение сделки - бесплатно. Индивидуальная рассрочка до 12 месяцев. Скидка 3% для многодетных семей и участников СВО!
Добро пожаловать в Новую Дятловку!
