Продать квартиру в Архангельском - Страница 12
- Архангельское »
- Недвижимость
- » Квартиры
- » Продажа квартир в Архангельском
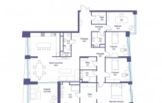
Продается 2-комн. квартира, площадью 177.7 м2 в монолитной новостройке в 12 мин. пешком от м. Динамо, район города - Хорошевский. Возможен вариант покупки с использованием ипотечных средств.
Жилая площадь 46.2 м2, кухня 6.5 м2, чистовая отделка, комнаты изолированные, окна выходят во двор.
Квартира располагается на 35 этаже 40-этажного дома в ЖК Прайм Парк.
Застройщик - Optima Development, сдача дома - I квартал 2021 года, дом уже сдан, высота потолков 3.1 м.
Дом оборудован пассажирским лифтом.
Подземная парковка, парковка охраняется. Обеспечение безопасности: консьерж. Инфраструктура: школа, детский сад, детские площадки, места для отдыха, супермаркет, рестораны, фитнес-центр.
Премиальный квартал PRIME PARK стал одним из знаковых жилых проектов столицы, который задал новые
ориентиры на рынке недвижимости. Он неизменно занимает лидирующие позиции по продажам в своем классе,
стал рекордсменом по количеству завоеванных международных и российских премий в области недвижимости,
а также был назван самым благоустроенным кварталом России на XIII Российской национальной премии по ландшафтной архитектуре.
Квартал стал новой доминантой Ленинградского проспекта. Архитектор Филип Болл не только разработал концепцию бескомпромиссно роскошного жилья, но и на постоянной основе осуществляет авторский надзор. Небоскребы квартала отличаются уникальным рисунком фасадов и располагаются в отдалении друг от друга, что обеспечивает постоянный поток солнечного света и восхитительные виды из каждой квартиры. В то же время геометрия PRIME PARK продумана
таким образом, чтобы создать атмосферу спокойствия и тишины на территории частного парка.
5 мин. от Тверской улицы, Патриарших прудов и Белой площади;
20 мин. до аэропорта «Шереметьево» или «Москва-Сити»;
4 парка - Ходынское поле, Петровский и Чапаевский парки, Березовая роща;
4 станции метро - «ЦСКА», «Аэропорт», «Динамо» и «Петровский парк».
Аккредитованные банки: Абсолют Банк, Совкомбанк, Альфа-Банк, Банк ДОМ. РФ, Промсвязьбанк, Банк ВТБ, Россельхозбанк, МКБ.
Позвоните и узнайте условия покупки прямо сейчас!
08.10.2025
234 306 873 ₽
Продаётся 2-к квартира номер 6 общей площадью 58.9 кв.м. на 2-м этаже 16 этажного здания. Без отделки. Цена с учётом скидки.
Особенности квартиры:
- Готовые квартиры рядом с лесом
- Идеально для семьи: школа, детский сад, магазины, природа
- Всего в 2,8 км от Москвы, 10 мин от метро
- Угловая планировка - больше пространства для ваших идей.
- Увеличенная ширина окна/окон - больше света и визуального простора.
- Увеличенное количество окон - дополнительное освещение и свежий воздух.
- Раздельный санузел - больше удобства для всех членов семьи.
- Гибкая планировка - создайте пространство по своему вкусу.
- Место для игры/занятия спортом - идеальное пространство для активных детей.
- Можно оборудовать рабочее место - комфорт для работы и учёбы.
- Просторная мягкая зона - комфорт и уют для отдыха всей семьи.
- Лоджия - уютное место для отдыха и тишины.
Информация о комплексе:
Вдали от городской суеты, но не отдалясь от столицы - вот концепция ЖК Скандинавский!
Всего в 300 м от жилого комплекса огромный мытищинский лесной массив, который подарит чистый и свежий воздух.
В 10 км Пироговское водохранилище с пляжами, развлекательными центрами и яхт-клубами.
Транспортная доступность:
8 мин. до м. Медведково, 18 мин. до м. Алтуфьева, 20 мин. до м. Бибирево и всего 300 метров до Мытищинского леса. Будьте ближе к природе, не отдаляясь от города
Внутренняя инфраструктура:
В Скандинавском есть все, что вам нужно для комфортной жизни!
В шаговой доступности магазины, сервисы бытовых услуг, аптеки и салоны красоты. Рядом большой ТЦ Бородино, в котором вы сможете закупиться продуктами, устроить модный шопинг или поужинать в любом из ресторанов.
В 10-минутной транспортной доступности Ашан, Леруа Мерлен, Selgros Cash & Carry, ТРЦ Весна и ТРЦ Июнь, фитнес-клуб World Gym.
За 2030 минут вы сможете добраться до спортивнооздоровительного комплекса Солярис, где вас ждут: картинг, прокат квадроциклов, лазертег, пейнтбол, страйкбол и бильярд и не только. На территории комплекса будет построены муниципальные детский сад на 240 мест и школа на 500 мест.
Территория ЖК огорожена по периметру, образуя закрытый двор без машин это безопасно, тихо и комфортно. Беспрепятственно гуляйте по внутридомовой территории и не беспокойтесь за детей - ведь детские площадки не соседствуеют с проезжей частью! Двор должен быть любимым местом для вас, а не для машин!
Во всех подъездах и на территории всего комплекса организовано круглосуточное видеонаблюдение. Вы дома, а значит в полной безопасности.
На территории комплекса - современный тренировочный комплекс.
В квартале Скандинавский условия для жизни братьев наших меньших также максимально удобны.
03.10.2025
10 709 787 ₽
Имущество реализуется путем проведения торгов в форме аукциона в соответствии с Федеральным законом "О несостоятельности (банкротстве) " от 26.10.2002 №127-ФЗ.
Квартира общей площадью 39,1 кв. м, с кадастровым номером: 50: 12: 0070322: 2970, расположенная по адресу: Московская область, городской округ Мытищи, деревня Пирогово, улица Сурикова, дом 1, квартира 294.
ЖК расположен в лесной зоне, между двумя водохранилищами, с шестью ухоженными пляжами. Всего 10 км от МКАД. Удобный выезд по новой скоростной трассе - Мытищинская хорда. Инфраструктура и окружение: Рядом: конный клуб с конюшнями, гольф-клуб с обучением, парусный клуб с выходом на воду и занятиями. На территории ЖК: множество магазинов, рынков, ресторанов, кафе, аптек. Есть действующий детский сад, строится еще один. Работает современная поликлиника с детским и взрослым отделением.
Парковка и безопасность: Закрытая территория ЖК. Много парковочных мест внутри комплекса, а также большая платная парковка. В каждом дворе - современные детские площадки. Жизнь здесь - как в собственном загородном доме: Свежий лесной воздух, лёгкий бриз с водохранилища, пение птиц, прекрасные рассветы и закаты.
Прием заявок на электронной торговой площадке МЭТС, задаток 10%. Помощь от Сбербанка - Агентский сервис по участию на торгах. Агент за Вас оформит документы, подаст заявку и примет участие на торгах.
Подробнее о способах оформления сделки, стоимости приобретения имущества Вы можете узнать по номеру телефона, указанному в объявлении, в будние дни с 09: 00 до 18: 00 (по времени МСК, GMT+3) , также на сайте активов Банка Portal-DA.
12.12.2025
5 749 200 ₽
объект под авансом
Предлагаем Вашему вниманию однокомнатную квартиру в Новой Москве.
Ремонт обычный, но можно въехать и жить. Санузел совместный, застекленный балкон.
Удобная транспортная доступность - станция D2 в пешей доступности.
Один взрослый собственник, торг после просмотра
28.10.2025
6 750 000 ₽
Продается студия, площадью 29.74 м2 в монолитной новостройке в 10 мин. пешком от м. Стахановская, район города - Нижегородский.
Жилая площадь 14.3 м2, кухня 5.12 м2, черновая отделка, комнаты смежные, окна выходят на улицу.
Квартира располагается на 16 этаже 30-этажного дома в ЖК MYPRIORITY Нижегородская. , сдача дома - III квартал 2028 года
Позвоните и узнайте условия покупки прямо сейчас!
11.12.2025
15 405 401 ₽
Отличное предложение! Оперативный просмотр и выход на сделку! Предлагается Вашему вниманию уютная трехкомнатная квартира, идеально подходящая для семьи с детьми.
Квартира полностью обустроена для комфортного проживания, продается частично с мебелью. Удобная планировка: две изолированные комнаты и просторный зал для приема гостей или уютных семейных вечеров. Выполнен евроремонт с использованием качественных материалов. Просторная кухня включает в себя современный кухонный гарнитур с первоклассной техникой. По квартире аккуратно расположилось большое количество качественно организованных мест для хранения. Санузел разделен, в плитке до потолка. Приятные соседи, ухоженная входная группа и придомовая территория.
Хорошее местоположение. До станций метро Варшавская и Каширская всего 15 минут пешком. Удобный выезд на Варшавское шоссе и Нахимовский проспект. В пешей доступности располагается большое количество магазинов различной направленности и мест для отдыха. Совсем рядом расположился прекрасный парк Коломенское.
Отличная юридическая история. 1 взрослый собственник, в собственности более 3-х лет, обременений нет. Все документы готовы к выходу на сделку.
30.11.2025
23 800 000 ₽
Продается 3-комн. квартира, площадью 87.71 м2 в монолитной новостройке в 8 мин. пешком от м. Бауманская, район города - Басманный. Возможен вариант покупки с использованием ипотечных средств.
Жилая площадь 61.1 м2, кухня 5.44 м2. Площадь комнат: 23.77/20.95/16.38 м2, чистовая отделка.
Квартира располагается на 11 этаже 19-этажного дома в ЖК MYPRIORITY Basmanny.
Застройщик - ГК Гранель, сдача дома - III квартал 2024 года.
Подземная парковка
MYPRIORITY Basmanny - привилегия высоких стандартов жизни в уютном центре столицы. Жилой комплекс бизнес-класса на берегу Яузы, рядом с МГТУ имени Баумана, в окружении памятников архитектуры и старинных усадебных парков.
За несколько минут неспешной прогулки от жилого комплекса можно дойти до станции метро «Бауманская», набережной реки Яузы и парка. Рядом находится лучший технический вуз страны - МГТУ им. Баумана. Чтобы выехать на автомобиле на Садовое кольцо, понадобится всего 5 минут.
Позвоните и узнайте условия покупки прямо сейчас!
07.11.2025
54 421 513 ₽
Продаётся просторная 2-к квартира 75.6 м2 с евроремонтом и техникой | 2012 г.п. | Закрытая территория
Описание:
Уютная квартира с современным ремонтом и всей необходимой техникой. Готова для комфортного заселения — можно жить сразу! Идеальный вариант для семьи с детьми.
Планировка и ремонт:
Общая площадь: 75.6 м2.
Просторная кухня: 13.9 м2 — место для семейных обедов.
Изолированные комнаты: 19.5 м2 и 17.3 м2 — для уединения и отдыха.
Высота потолков: 2.7 м.
Качественный евроремонт: ламинат, современная отделка.
Мебель и техника остаются: стиральная и посудомоечная машины, холодильник.
2 лоджии — для летнего отдыха и хранения.
О доме и инфраструктуре:
Дом 2012 года постройки (монолит-кирпич) — современные технологии и планировки.
5/17 этаж
Закрытая благоустроенная территория — безопасность для детей.
Лифты: пассажирский и грузовой — удобство при переезде.
Подземный паркинг — защита для автомобиля круглый год.
Вся инфраструктура рядом: школа, сад, поликлиника, супермаркет, фитнес-центр, рестораны — всё в шаговой доступности.
Цена: 11 000 000 рублей. (Возможен торг).
Прямая продажа от собственника — без комиссий.
Чистые документы, возможна ипотека.
Звоните сейчас!
Ответим на все вопросы и договоримся о просмотре в удобное для вас время.
09.12.2025
11 000 000 ₽
Продается просторная квартира площадью 182.70 м2 в жилом комплексе РЕКА. Квартира находится в 1 секции корпуса 3 (будет введен в эксплуатацию в 4 кв. 2026) . Этаж 11-й из 16.
В квартире продуманная функциональная планировка с просторной кухней 27.80 м2. Жилая площадь - 77.30 м2. Высота потолка от 3,65 м. Изолированные комнаты, 5 санузлов(1 раздельный и 4 совмещенных) . Окна на смежные стороны. Виды на природный парк и реку.
РЕКА - клубный дом от Донстрой на западе Москвы, у границы природного заповедника "Долина реки Сетунь", по соседству с МГУ и МГИМО, дипломатическими представительствами зарубежных стран. В 5 минутах ходьбы находится станция метро "Мичуринский проспект", от которой до центра можно доехать за 15 минут. Также 15 минут понадобится, чтобы добраться на автомобиле до Садового кольца.
Прямо из дома можно попасть в природную часть грандиозного парка "Событие". Здесь созданы детские игровые площадки "Луг" и "Лес", большая воркаут-зона, поле для командных видов спорта, площадка для пикников, смотровые площадки с великолепными видами, летний амфитеатр для лекториев и летняя школа.
Архитектурный проект дома выполнен в стиле современной классики: фасады с облицовкой из натурального камня и металлическими декоративными элементами.
В доме представлены элитные клубные резиденции. Одна из секций целиком состоит из квартир с финишной авторской отделкой: дизайнерские интерьеры, итальянские кухни, премиальная бытовая техника и сантехника. В наличии имеются пентхаусы с террасами и каминами.
В непосредственной близости от дома предусмотрены школы, детские сады, магазины, фитнес-центры, кафе и рестораны, медицинские центры - все, что необходимо для жизни.
Закрытый двор без машин обеспечен круглосуточной охраной и системами контроля доступа. Двор создан как ландшафтное продолжение окружающих природных парков и зонирован для различных видов отдыха, детских игр, занятий спортом.
Работает шоурум.
Позвоните и запишитесь на показ квартиры.
25.10.2025
199 873 800 ₽
Продается просторная квартира площадью 178.90 м2 в жилом комплексе РЕКА. Квартира находится в 1 секции корпуса 3 (будет введен в эксплуатацию в 4 кв. 2026) . Этаж 9-й из 16.
В квартире продуманная функциональная планировка с просторной кухней 27.80 м2. Жилая площадь - 73.60 м2. Высота потолка от 3,65 м. Изолированные комнаты, 5 санузлов(1 раздельный и 4 совмещенных) . Окна на смежные стороны. Виды на природный парк и реку.
РЕКА - клубный дом от Донстрой на западе Москвы, у границы природного заповедника "Долина реки Сетунь", по соседству с МГУ и МГИМО, дипломатическими представительствами зарубежных стран. В 5 минутах ходьбы находится станция метро "Мичуринский проспект", от которой до центра можно доехать за 15 минут. Также 15 минут понадобится, чтобы добраться на автомобиле до Садового кольца.
Прямо из дома можно попасть в природную часть грандиозного парка "Событие". Здесь созданы детские игровые площадки "Луг" и "Лес", большая воркаут-зона, поле для командных видов спорта, площадка для пикников, смотровые площадки с великолепными видами, летний амфитеатр для лекториев и летняя школа.
Архитектурный проект дома выполнен в стиле современной классики: фасады с облицовкой из натурального камня и металлическими декоративными элементами.
В доме представлены элитные клубные резиденции. Одна из секций целиком состоит из квартир с финишной авторской отделкой: дизайнерские интерьеры, итальянские кухни, премиальная бытовая техника и сантехника. В наличии имеются пентхаусы с террасами и каминами.
В непосредственной близости от дома предусмотрены школы, детские сады, магазины, фитнес-центры, кафе и рестораны, медицинские центры - все, что необходимо для жизни.
Закрытый двор без машин обеспечен круглосуточной охраной и системами контроля доступа. Двор создан как ландшафтное продолжение окружающих природных парков и зонирован для различных видов отдыха, детских игр, занятий спортом.
Работает шоурум.
Позвоните и запишитесь на показ квартиры.
25.10.2025
169 711 696 ₽
Продаем просторную 3-х комнатную Квартиру 80,2м2 в доме серии П44Т.
В квартире выполнен качественный ремонт, перепланировка узаконена, остается вся мебель и техника. Большой санузел с двумя раковинами, комнаты изолированные, прекрасный вид из окон. Квартира светлая с приятной атмосферой. Идеально подойдет для семьи с детьми, вам останется перевезти только личные вещи. Развитая инфраструктура района, школа и детский сад во дворе, удобное транспортное сообщение с Москвой, тихий двор с детскими площадками, до «Мега Химки» 3 минуты пешком. 1 взрослый собственник прописанных в квартире нет, полная сумма в ДКП, обременений нет. Быстрый выход на сделку. Оперативный показ .
22.11.2025
15 990 000 ₽
Продается просторная квартира площадью 150.00 м2 в жилом комплексе РЕКА. Квартира находится во 2 секции корпуса 3 (будет введен в эксплуатацию в 4 кв. 2026) . Этаж 9-й из 12.
В квартире продуманная функциональная планировка с просторной кухней 34.50 м2. Жилая площадь - 57.20 м2. Высота потолка от 3,65 м. Изолированные комнаты, 4 санузла(1 раздельный и 3 совмещенных) . Окна на противоположные стороны. Виды на природный парк и реку.
РЕКА - клубный дом от Донстрой на западе Москвы, у границы природного заповедника "Долина реки Сетунь", по соседству с МГУ и МГИМО, дипломатическими представительствами зарубежных стран. В 5 минутах ходьбы находится станция метро "Мичуринский проспект", от которой до центра можно доехать за 15 минут. Также 15 минут понадобится, чтобы добраться на автомобиле до Садового кольца.
Прямо из дома можно попасть в природную часть грандиозного парка "Событие". Здесь созданы детские игровые площадки "Луг" и "Лес", большая воркаут-зона, поле для командных видов спорта, площадка для пикников, смотровые площадки с великолепными видами, летний амфитеатр для лекториев и летняя школа.
Архитектурный проект дома выполнен в стиле современной классики: фасады с облицовкой из натурального камня и металлическими декоративными элементами.
В доме представлены элитные клубные резиденции. Одна из секций целиком состоит из квартир с финишной авторской отделкой: дизайнерские интерьеры, итальянские кухни, премиальная бытовая техника и сантехника. В наличии имеются пентхаусы с террасами и каминами.
В непосредственной близости от дома предусмотрены школы, детские сады, магазины, фитнес-центры, кафе и рестораны, медицинские центры - все, что необходимо для жизни.
Закрытый двор без машин обеспечен круглосуточной охраной и системами контроля доступа. Двор создан как ландшафтное продолжение окружающих природных парков и зонирован для различных видов отдыха, детских игр, занятий спортом.
Работает шоурум.
Позвоните и запишитесь на показ квартиры.
05.09.2025
156 750 000 ₽
Продается просторная квартира площадью 155.20 м2 в жилом комплексе РЕКА. Квартира находится в 4 секции корпуса 3 (будет введен в эксплуатацию в 4 кв. 2026) . Этаж 8-й из 14.
В квартире продуманная функциональная планировка с просторной кухней 35.70 м2. Жилая площадь - 52.70 м2. Высота потолка от 3,65 м. Изолированные комнаты, 4 санузла(1 раздельный и 3 совмещенных) . Окна на смежные стороны. Виды на природный парк и реку.
РЕКА - клубный дом от Донстрой на западе Москвы, у границы природного заповедника "Долина реки Сетунь", по соседству с МГУ и МГИМО, дипломатическими представительствами зарубежных стран. В 5 минутах ходьбы находится станция метро "Мичуринский проспект", от которой до центра можно доехать за 15 минут. Также 15 минут понадобится, чтобы добраться на автомобиле до Садового кольца.
Прямо из дома можно попасть в природную часть грандиозного парка "Событие". Здесь созданы детские игровые площадки "Луг" и "Лес", большая воркаут-зона, поле для командных видов спорта, площадка для пикников, смотровые площадки с великолепными видами, летний амфитеатр для лекториев и летняя школа.
Архитектурный проект дома выполнен в стиле современной классики: фасады с облицовкой из натурального камня и металлическими декоративными элементами.
В доме представлены элитные клубные резиденции. Одна из секций целиком состоит из квартир с финишной авторской отделкой: дизайнерские интерьеры, итальянские кухни, премиальная бытовая техника и сантехника. В наличии имеются пентхаусы с террасами и каминами.
В непосредственной близости от дома предусмотрены школы, детские сады, магазины, фитнес-центры, кафе и рестораны, медицинские центры - все, что необходимо для жизни.
Закрытый двор без машин обеспечен круглосуточной охраной и системами контроля доступа. Двор создан как ландшафтное продолжение окружающих природных парков и зонирован для различных видов отдыха, детских игр, занятий спортом.
Работает шоурум.
Позвоните и запишитесь на показ квартиры.
05.09.2025
142 784 000 ₽
Продается просторная квартира площадью 215.50 м2 в жилом комплексе РЕКА. Квартира находится в 1 секции корпуса 3 (будет введен в эксплуатацию в 4 кв. 2026) . Этаж 9-й из 16.
В квартире продуманная функциональная планировка с просторной кухней 53.00 м2. Жилая площадь - 68.20 м2. Высота потолка от 3,65 м. Изолированные комнаты, 4 санузла(1 раздельный и 3 совмещенных) . Окна на три стороны света. Виды на природный парк и реку.
РЕКА - клубный дом от Донстрой на западе Москвы, у границы природного заповедника "Долина реки Сетунь", по соседству с МГУ и МГИМО, дипломатическими представительствами зарубежных стран. В 5 минутах ходьбы находится станция метро "Мичуринский проспект", от которой до центра можно доехать за 15 минут. Также 15 минут понадобится, чтобы добраться на автомобиле до Садового кольца.
Прямо из дома можно попасть в природную часть грандиозного парка "Событие". Здесь созданы детские игровые площадки "Луг" и "Лес", большая воркаут-зона, поле для командных видов спорта, площадка для пикников, смотровые площадки с великолепными видами, летний амфитеатр для лекториев и летняя школа.
Архитектурный проект дома выполнен в стиле современной классики: фасады с облицовкой из натурального камня и металлическими декоративными элементами.
В доме представлены элитные клубные резиденции. Одна из секций целиком состоит из квартир с финишной авторской отделкой: дизайнерские интерьеры, итальянские кухни, премиальная бытовая техника и сантехника. В наличии имеются пентхаусы с террасами и каминами.
В непосредственной близости от дома предусмотрены школы, детские сады, магазины, фитнес-центры, кафе и рестораны, медицинские центры - все, что необходимо для жизни.
Закрытый двор без машин обеспечен круглосуточной охраной и системами контроля доступа. Двор создан как ландшафтное продолжение окружающих природных парков и зонирован для различных видов отдыха, детских игр, занятий спортом.
Работает шоурум.
Позвоните и запишитесь на показ квартиры.
07.11.2025
235 757 000 ₽
Продается просторная квартира площадью 152.50 м2 в жилом комплексе РЕКА. Квартира находится во 2 секции корпуса 3 (будет введен в эксплуатацию в 4 кв. 2026) . Этаж 10-й из 12.
В квартире продуманная функциональная планировка с просторной кухней 34.50 м2. Жилая площадь - 50.00 м2. Высота потолка от 3,65 м. Изолированные комнаты, 4 санузла(1 раздельный и 3 совмещенных) . Окна на три стороны света. Виды на природный парк и реку.
РЕКА - клубный дом от Донстрой на западе Москвы, у границы природного заповедника "Долина реки Сетунь", по соседству с МГУ и МГИМО, дипломатическими представительствами зарубежных стран. В 5 минутах ходьбы находится станция метро "Мичуринский проспект", от которой до центра можно доехать за 15 минут. Также 15 минут понадобится, чтобы добраться на автомобиле до Садового кольца.
Прямо из дома можно попасть в природную часть грандиозного парка "Событие". Здесь созданы детские игровые площадки "Луг" и "Лес", большая воркаут-зона, поле для командных видов спорта, площадка для пикников, смотровые площадки с великолепными видами, летний амфитеатр для лекториев и летняя школа.
Архитектурный проект дома выполнен в стиле современной классики: фасады с облицовкой из натурального камня и металлическими декоративными элементами.
В доме представлены элитные клубные резиденции. Одна из секций целиком состоит из квартир с финишной авторской отделкой: дизайнерские интерьеры, итальянские кухни, премиальная бытовая техника и сантехника. В наличии имеются пентхаусы с террасами и каминами.
В непосредственной близости от дома предусмотрены школы, детские сады, магазины, фитнес-центры, кафе и рестораны, медицинские центры - все, что необходимо для жизни.
Закрытый двор без машин обеспечен круглосуточной охраной и системами контроля доступа. Двор создан как ландшафтное продолжение окружающих природных парков и зонирован для различных видов отдыха, детских игр, занятий спортом.
Работает шоурум.
Позвоните и запишитесь на показ квартиры.
05.09.2025
163 480 000 ₽
Продается 2-комн. квартира, площадью 61.67 м2 в монолитной новостройке в 8 мин. пешком от м. Бауманская, район города - Басманный. Возможен вариант покупки с использованием ипотечных средств.
Жилая площадь 47.79 м2, кухня 3.12 м2. Площадь комнат: 30.73/17.06 м2, чистовая отделка.
Квартира располагается на 8 этаже 19-этажного дома в ЖК MYPRIORITY Basmanny.
Застройщик - ГК Гранель, сдача дома - III квартал 2024 года.
Подземная парковка
MYPRIORITY Basmanny - привилегия высоких стандартов жизни в уютном центре столицы. Жилой комплекс бизнес-класса на берегу Яузы, рядом с МГТУ имени Баумана, в окружении памятников архитектуры и старинных усадебных парков.
За несколько минут неспешной прогулки от жилого комплекса можно дойти до станции метро «Бауманская», набережной реки Яузы и парка. Рядом находится лучший технический вуз страны - МГТУ им. Баумана. Чтобы выехать на автомобиле на Садовое кольцо, понадобится всего 5 минут.
Позвоните и узнайте условия покупки прямо сейчас!
13.11.2025
36 030 027 ₽
Продается 2-комн. квартира, площадью 61.73 м2 в монолитной новостройке в 8 мин. пешком от м. Бауманская, район города - Басманный. Возможен вариант покупки с использованием ипотечных средств.
Жилая площадь 43.61 м2, кухня 3.2 м2. Площадь комнат: 25.28/18.33 м2, чистовая отделка, балконов - 1.
Квартира располагается на 13 этаже 19-этажного дома в ЖК MYPRIORITY Basmanny.
Застройщик - ГК Гранель, сдача дома - III квартал 2024 года.
Подземная парковка
MYPRIORITY Basmanny - привилегия высоких стандартов жизни в уютном центре столицы. Жилой комплекс бизнес-класса на берегу Яузы, рядом с МГТУ имени Баумана, в окружении памятников архитектуры и старинных усадебных парков.
За несколько минут неспешной прогулки от жилого комплекса можно дойти до станции метро «Бауманская», набережной реки Яузы и парка. Рядом находится лучший технический вуз страны - МГТУ им. Баумана. Чтобы выехать на автомобиле на Садовое кольцо, понадобится всего 5 минут.
Позвоните и узнайте условия покупки прямо сейчас!
13.11.2025
37 532 846 ₽
Татьяна. Отличное предложение! Предлагается Вашему вниманию видовая евро-двухкомнатная квартира в ЖК бизнес-класса "Парковые Аллеи" в городе Красногорск.
В квартире выполнен качественный евроремонт на завершающем этапе. Остались лишь финальные штрихи, что позволит новому владельцу подредактировать его под себя. Планировка: Изолированная комната (17,9 м2), кухня-гостиная (17 м2), утепленная просторная лоджия (10,2 м2), совмещенный санузел, просторный коридор. Общая площадь по ЕГРН: 45,3 м2 (без учета лоджии).
Преимущества комплекса и локации: Современная входная группа, система видеонаблюдения и охрана. Возможно приобретение машиноместа в просторном подземном паркинге. На территории комплекса расположен фитнес-клуб Gym Space с бассейном, залами единоборств и фитнес-садом.
Развитая внешняя инфраструктура: В шаговой доступности расположены Губайловский экопарк, детский городок "Сказочный", многочисленные магазины, супермаркеты, кафе, рестораны, образовательные и медицинские учреждения. Благоустроенный двор с детскими и спортивными площадками, наземная парковка для жителей и гостей.
Транспортная доступность: Удобный выезд на Пятницкое и Волоколамское шоссе, МКАД, М-9 "Балтия". Остановка общественного транспорта рядом с домом, регулярное сообщение с несколькими станциями метро. В 20 минутах езды на автобусе расположена станция МЦД "Красногорская" с регулярным железнодорожным сообщением с Москвой.
Юридическая информация:
- взрослые собственники.
- Договор участия в долевом строительстве от 2014 года.
- Без обременений и перепланировок.
- Полная стоимость в договоре.
- Свободная продажа.
Показ в удобное для Вас время по предварительной договоренности. Звоните для получения дополнительной информации.
06.12.2025
10 950 000 ₽
Продается 2-комн. квартира, площадью 62.94 м2 в монолитной новостройке в 8 мин. пешком от м. Бауманская, район города - Басманный. Возможен вариант покупки с использованием ипотечных средств.
Жилая площадь 44.91 м2, кухня 5.04 м2. Площадь комнат: 23.67/21.24 м2, чистовая отделка, балконов - 1.
Квартира располагается на 11 этаже 19-этажного дома в ЖК MYPRIORITY Basmanny.
Застройщик - ГК Гранель, сдача дома - III квартал 2024 года.
Подземная парковка
MYPRIORITY Basmanny - привилегия высоких стандартов жизни в уютном центре столицы. Жилой комплекс бизнес-класса на берегу Яузы, рядом с МГТУ имени Баумана, в окружении памятников архитектуры и старинных усадебных парков.
За несколько минут неспешной прогулки от жилого комплекса можно дойти до станции метро «Бауманская», набережной реки Яузы и парка. Рядом находится лучший технический вуз страны - МГТУ им. Баумана. Чтобы выехать на автомобиле на Садовое кольцо, понадобится всего 5 минут.
Позвоните и узнайте условия покупки прямо сейчас!
07.11.2025
36 772 011 ₽
Продается 2-к квартира площадью 59.3 кв.м. на 2-м этаже
ЖК «Яковлево» – 8 корпусов 1-ой и 2-ой очереди строительства введены в эксплуатацию.
Жилой комплекс «Яковлево» — это проект для тех, кому близка энергия природы в сочетании с инновационными технологиями XXI века. При возведении ЖК применена технология крупногабаритного модульного домостроения. Квартиры здесь — это выбор нового поколения, для которого дом является местом, где можно черпать силы для новых свершений.
Элегантный минимализм в архитектуре разработан так, чтобы не нарушить, а дополнить гармонию окружающего ландшафта. Пластика фасада базируется на простой геометрии, а отличительной особенностью комплекса является невысокая этажность (4 этажа) большей части домов. Только два корпуса — 11 и 16 этажей.
Инфраструктура ЖК:
15 жилых корпусов
Школа и детский сад
Молочно-раздаточный пункт
Дворы с детскими площадками и зонами отдыха
Магазины формата «у дома» на 1-х этажах зданий
Автостоянка на территории
30 минут на транспорте до ближайших станций метро «Тёплый Стан», «Коммунарка»
В перспективе — открытие станции метро в г. Троицк в непосредственной близости от ЖК «Яковлево».
Условия приобретения:
Льготная ипотека и возможность использования материнского капитала.
Рассрочка на покупку квартиры:
Первоначальный взнос — от 30% от стоимости квартиры.
Срок рассрочки — 1 год.
Платежи вносятся равными частями (ежемесячно или ежеквартально).
Рассрочка платная: стоимость квартиры увеличивается на 20% от размера рассрочки.
Подробные условия уточняйте в нашем офисе продаж!
02.11.2025
12 028 412 ₽
Продается 1-к квартира площадью 36.8 кв.м. на 1-м этаже
ЖК «Яковлево» – 8 корпусов 1-ой и 2-ой очереди строительства введены в эксплуатацию.
Жилой комплекс «Яковлево» — это проект для тех, кому близка энергия природы в сочетании с инновационными технологиями XXI века. При возведении ЖК применена технология крупногабаритного модульного домостроения. Квартиры здесь — это выбор нового поколения, для которого дом является местом, где можно черпать силы для новых свершений.
Элегантный минимализм в архитектуре разработан так, чтобы не нарушить, а дополнить гармонию окружающего ландшафта. Пластика фасада базируется на простой геометрии, а отличительной особенностью комплекса является невысокая этажность (4 этажа) большей части домов. Только два корпуса — 11 и 16 этажей.
Инфраструктура ЖК:
15 жилых корпусов
Школа и детский сад
Молочно-раздаточный пункт
Дворы с детскими площадками и зонами отдыха
Магазины формата «у дома» на 1-х этажах зданий
Автостоянка на территории
30 минут на транспорте до ближайших станций метро «Тёплый Стан», «Коммунарка»
В перспективе — открытие станции метро в г. Троицк в непосредственной близости от ЖК «Яковлево».
Условия приобретения:
Льготная ипотека и возможность использования материнского капитала.
Рассрочка на покупку квартиры:
Первоначальный взнос — от 30% от стоимости квартиры.
Срок рассрочки — 1 год.
Платежи вносятся равными частями (ежемесячно или ежеквартально).
Рассрочка платная: стоимость квартиры увеличивается на 20% от размера рассрочки.
Подробные условия уточняйте в нашем офисе продаж!
02.11.2025
8 047 424 ₽




















