Продать квартиру в Александровской - Страница 4
- Александровская »
- Недвижимость
- » Квартиры
- » Продажа квартир в Александровской
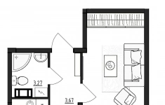
Продается 2-комн. квартира, площадью 62.22 м2 в малоэтажной в монолитной новостройке в 20 мин. транспортом от м. Проспект Ветеранов. Возможен вариант покупки с использованием ипотечных средств, есть рассрочка, возможна покупка с использованием материнского капитала.
Жилая площадь 49.78 м2, квартира без отделки.
Квартира располагается на 2 этаже 4-этажного дома в ЖК Аннино Сити.
Застройщик - ГК Невская строительная компания, сдача дома - III квартал 2025 года.
Парковка автомобилей - наземная. Инфраструктура: школа, детский сад, поликлиника, детские площадки, спортивные площадки, места для отдыха.
ЖК «Аннино Сити» как и любое жилье в стиле Urban Village имеет все достоинства современных жилых комплексов в мегаполисе, но при этом есть ряд неоспоримых преимуществ загородной жизни: малоэтажность, хорошо продуманная инфраструктура внутри комплекса, собственные котельные, охраняемые территории с зелеными насаждениями, пешеходные и зоны отдыха, детские и спортивные площадки, а также достаточное количество парковочных мест.
Аннино - небольшой уютный активно развивающийся поселок расположен всего в 30 минутах езды от Санкт-Петербурга. Поселок находится на западно-южном берегу Финского залива - т.е. к югу от Санкт-Петербурга.
Место для строительства ЖК Аннино Сити было выбрано не случайно. Поселок Аннино отличается развитой инфраструктурой, близостью к городу, хорошей транспортной доступностью, наличием различного общественного транспорта
Экологическая ситуация в районе благоприятная, так как нет крупных транспортных магистралей и промышленных производств. Поселок окружен лесными массивами, а поблизости находятся чистые лесные озера и парк Победы.
До побережья Финского залива от поселка Аннино около 14 километров.
Аккредитованные банки: Продажи ведутся через ЭСКРОУ счета при проектном финансировании ПАО Сбербанк
Позвоните и узнайте условия покупки прямо сейчас!
14.02.2026
8 237 480 ₽
Продается студия, площадью 26.5 м2 в монолитно-кирпичной новостройке в 15 мин. транспортом от м. Девяткино. Возможен вариант покупки с использованием ипотечных средств, есть рассрочка, возможна покупка с использованием материнского капитала.
Жилая площадь 18.7 м2, чистовая отделка, комнаты изолированные.
Квартира располагается на 3 этаже 17-этажного дома в ЖК Стороны света-2.
Застройщик - ГК Прок, сдача дома - I квартал 2027 года, высота потолков 2.54 м. Инфраструктура: детские площадки, спортивные площадки, места для отдыха.
ЖК комфорт-класса "Стороны света-2 строится в г. Бугры Ленинградской области, прямо на границе с Санкт-Петербургом. Мечта о спокойной жизни вблизи северной столицы стала еще реальнее.
Акция: 1-комнатные квартиры по цене студии от 4,9 млн. рублей! Отделка на выбор: чистовая либо white box!
Программа рассрочки «Фиксированный ежемесячный платеж» для ЖК "Стороны света-2" (корпуса 17 и 20) !
Первый взнос -25% от стоимости квартиры. Оплачивается при заключении Договора;
Ежемесячно вносится фиксированная сумма (35 000 рублей за студию и 1-к квартиру; 45 000 рублей - за 2-к и 3-к квартиры) ;
Остаток вносится до 01.12.2026 года.
Программа рассрочки «3 платежа» для ЖК "Стороны света-2" (корпуса 17 и 20) !
Первый взнос -25% от стоимости квартиры. Оплачивается при заключении Договора;
Платеж 35% от стоимости квартиры вносится через 6 месяцев;
Остаток 40% вносится до 01.12.2026 года.
От ЖК ходит общественный транспорт до ст. метро «Девяткино», «пр. Просвещения» и «Парнас». Есть 2 удобных выезда на КАД, развитая система наземного транспорта. Ж/Д станция «Девяткино», автовокзал «Северный» в 15 минутах езды.
Аккредитованные банки: ВТБ, Банк ДОМ. РФ, Промсвязьбанк, Ак Барс Банк, Альфа-Банк, СберБанк, Абсолют Банк, Банк «УБРиР», Россельхозбанк, Банк «Санкт-Петербург, Совкомбанк.
Позвоните и узнайте условия покупки прямо сейчас!
18.02.2026
4 611 000 ₽
Старт продаж 5 орпуса в жилом комплексе "Аннино Сити", квартиры с отделкой! Срок сдачи 2025 год.
14.02.2026
8 308 500 ₽
Старт продаж 5 орпуса в жилом комплексе "Аннино Сити", квартиры с отделкой! Срок сдачи 2025 год.
14.02.2026
8 237 480 ₽
Старт продаж 5 орпуса в жилом комплексе "Аннино Сити", квартиры с отделкой! Срок сдачи 2025 год.
14.02.2026
8 194 600 ₽
Старт продаж 5 орпуса в жилом комплексе "Аннино Сити", квартиры с отделкой! Срок сдачи 2025 год.
14.02.2026
8 237 480 ₽
Старт продаж 5 орпуса в жилом комплексе "Аннино Сити", квартиры с отделкой! Срок сдачи 2025 год.
20.02.2026
4 364 380 ₽
Старт продаж 5 орпуса в жилом комплексе "Аннино Сити", квартиры с отделкой! Срок сдачи 2025 год.
14.02.2026
4 257 310 ₽
Продается 1-комн. квартира, площадью 34.22 м2 в малоэтажной в монолитной новостройке в 20 мин. транспортом от м. Проспект Ветеранов. Возможен вариант покупки с использованием ипотечных средств, есть рассрочка, возможна покупка с использованием материнского капитала.
Жилая площадь 27.38 м2, квартира без отделки, комнаты изолированные.
Квартира располагается на 1 этаже 4-этажного дома в ЖК Аннино Сити.
Застройщик - ГК Невская строительная компания, сдача дома - III квартал 2025 года.
Парковка автомобилей - наземная. Инфраструктура: школа, детский сад, поликлиника, детские площадки, спортивные площадки, места для отдыха.
ЖК «Аннино Сити» как и любое жилье в стиле Urban Village имеет все достоинства современных жилых комплексов в мегаполисе, но при этом есть ряд неоспоримых преимуществ загородной жизни: малоэтажность, хорошо продуманная инфраструктура внутри комплекса, собственные котельные, охраняемые территории с зелеными насаждениями, пешеходные и зоны отдыха, детские и спортивные площадки, а также достаточное количество парковочных мест.
Аннино - небольшой уютный активно развивающийся поселок расположен всего в 30 минутах езды от Санкт-Петербурга. Поселок находится на западно-южном берегу Финского залива - т.е. к югу от Санкт-Петербурга.
Место для строительства ЖК Аннино Сити было выбрано не случайно. Поселок Аннино отличается развитой инфраструктурой, близостью к городу, хорошей транспортной доступностью, наличием различного общественного транспорта
Экологическая ситуация в районе благоприятная, так как нет крупных транспортных магистралей и промышленных производств. Поселок окружен лесными массивами, а поблизости находятся чистые лесные озера и парк Победы.
До побережья Финского залива от поселка Аннино около 14 километров.
Аккредитованные банки: Продажи ведутся через ЭСКРОУ счета при проектном финансировании ПАО Сбербанк
Позвоните и узнайте условия покупки прямо сейчас!
20.02.2026
4 364 380 ₽
Продается 1-комн. квартира, площадью 34.22 м2 в малоэтажной в монолитной новостройке в 20 мин. транспортом от м. Проспект Ветеранов. Возможен вариант покупки с использованием ипотечных средств, есть рассрочка, возможна покупка с использованием материнского капитала.
Жилая площадь 27.38 м2, квартира без отделки, комнаты изолированные.
Квартира располагается на 1 этаже 4-этажного дома в ЖК Аннино Сити.
Застройщик - ГК Невская строительная компания, сдача дома - III квартал 2025 года.
Парковка автомобилей - наземная. Инфраструктура: школа, детский сад, поликлиника, детские площадки, спортивные площадки, места для отдыха.
ЖК «Аннино Сити» как и любое жилье в стиле Urban Village имеет все достоинства современных жилых комплексов в мегаполисе, но при этом есть ряд неоспоримых преимуществ загородной жизни: малоэтажность, хорошо продуманная инфраструктура внутри комплекса, собственные котельные, охраняемые территории с зелеными насаждениями, пешеходные и зоны отдыха, детские и спортивные площадки, а также достаточное количество парковочных мест.
Аннино - небольшой уютный активно развивающийся поселок расположен всего в 30 минутах езды от Санкт-Петербурга. Поселок находится на западно-южном берегу Финского залива - т.е. к югу от Санкт-Петербурга.
Место для строительства ЖК Аннино Сити было выбрано не случайно. Поселок Аннино отличается развитой инфраструктурой, близостью к городу, хорошей транспортной доступностью, наличием различного общественного транспорта
Экологическая ситуация в районе благоприятная, так как нет крупных транспортных магистралей и промышленных производств. Поселок окружен лесными массивами, а поблизости находятся чистые лесные озера и парк Победы.
До побережья Финского залива от поселка Аннино около 14 километров.
Аккредитованные банки: Продажи ведутся через ЭСКРОУ счета при проектном финансировании ПАО Сбербанк
Позвоните и узнайте условия покупки прямо сейчас!
14.02.2026
4 364 380 ₽
Продается 1-комн. квартира, площадью 39.32 м2 в малоэтажной. Возможен вариант покупки с использованием ипотечных средств, возможна покупка с использованием материнского капитала, есть военная ипотека.
Жилая площадь 21.68 м2, кухня 10.7 м2, комнаты изолированные.
Квартира располагается на 4 этаже 4-этажного дома в ЖК Верево Сити.
Застройщик - Строй Бизнес Групп специализированный застройщик, сдача дома - II квартал 2025 года, закрытая территория.
Парковка автомобилей - наземная, парковка охраняется. Обеспечение безопасности: видеонаблюдение. Инфраструктура: школа, детский сад, поликлиника, детские площадки, спортивные площадки, места для отдыха, супермаркет.
Для бронирования конкретной квартиры звоните по номеру телефона в объявлении.
ЖК Верево Сити - это современный городской жилой квартал малоэтажной застройки.
В 10-ти четырехэтажных корпусах сможет поселиться 1171 семья. Дома располагаются блоками, образуя уютные закрытые и безопасные дворы с большим количеством зеленых насаждений и с зонами отдыха для взрослых и детей.
В ЖК Верево Сити самое низкое ценовое предложение в Ленинградской области и пригородах Санкт-Петербурга, что позволит вам приобрести жилье большей площади, нежели в других жилых комплексах.
Отделка - черновая.
Комфортная среда для жизни:
- малоэтажные красивые здания современной архитектуры, с большой площадью остекления
- обособленная территория
- продуманные планировки, как привычные одно- и двухкомнатные квартиры, так и европланировки
- небольшая плотность населения: комплекс располагается на 6,5 га земли
- полная внутренняя инфраструктура, которая позволит жить с комфортом
Позвоните и узнайте условия покупки прямо сейчас!
Аккредитованные банки: ПАО Сбербанк
Позвоните и узнайте условия покупки прямо сейчас!
03.12.2025
4 529 664 ₽
Продается 1-комн. квартира, площадью 39.32 м2 в малоэтажной. Возможен вариант покупки с использованием ипотечных средств, возможна покупка с использованием материнского капитала, есть военная ипотека.
Жилая площадь 21.68 м2, кухня 10.7 м2, комнаты изолированные.
Квартира располагается на 3 этаже 4-этажного дома в ЖК Верево Сити.
Застройщик - Строй Бизнес Групп специализированный застройщик, сдача дома - II квартал 2025 года, закрытая территория.
Парковка автомобилей - наземная, парковка охраняется. Обеспечение безопасности: видеонаблюдение. Инфраструктура: школа, детский сад, поликлиника, детские площадки, спортивные площадки, места для отдыха, супермаркет.
Для бронирования конкретной квартиры звоните по номеру телефона в объявлении.
ЖК Верево Сити - это современный городской жилой квартал малоэтажной застройки.
В 10-ти четырехэтажных корпусах сможет поселиться 1171 семья. Дома располагаются блоками, образуя уютные закрытые и безопасные дворы с большим количеством зеленых насаждений и с зонами отдыха для взрослых и детей.
В ЖК Верево Сити самое низкое ценовое предложение в Ленинградской области и пригородах Санкт-Петербурга, что позволит вам приобрести жилье большей площади, нежели в других жилых комплексах.
Отделка - черновая.
Комфортная среда для жизни:
- малоэтажные красивые здания современной архитектуры, с большой площадью остекления
- обособленная территория
- продуманные планировки, как привычные одно- и двухкомнатные квартиры, так и европланировки
- небольшая плотность населения: комплекс располагается на 6,5 га земли
- полная внутренняя инфраструктура, которая позволит жить с комфортом
Позвоните и узнайте условия покупки прямо сейчас!
Аккредитованные банки: ПАО Сбербанк
Позвоните и узнайте условия покупки прямо сейчас!
14.01.2026
4 529 664 ₽
Продается 1-комн. квартира, площадью 36.83 м2 в малоэтажной. Возможен вариант покупки с использованием ипотечных средств, возможна покупка с использованием материнского капитала, есть военная ипотека.
Жилая площадь 17.08 м2, кухня 11.85 м2, комнаты изолированные.
Квартира располагается на 1 этаже 4-этажного дома в ЖК Верево Сити.
Застройщик - Строй Бизнес Групп специализированный застройщик, сдача дома - II квартал 2025 года, закрытая территория.
Парковка автомобилей - наземная, парковка охраняется. Обеспечение безопасности: видеонаблюдение. Инфраструктура: школа, детский сад, поликлиника, детские площадки, спортивные площадки, места для отдыха, супермаркет.
Для бронирования конкретной квартиры звоните по номеру телефона в объявлении.
ЖК Верево Сити - это современный городской жилой квартал малоэтажной застройки.
В 10-ти четырехэтажных корпусах сможет поселиться 1171 семья. Дома располагаются блоками, образуя уютные закрытые и безопасные дворы с большим количеством зеленых насаждений и с зонами отдыха для взрослых и детей.
В ЖК Верево Сити самое низкое ценовое предложение в Ленинградской области и пригородах Санкт-Петербурга, что позволит вам приобрести жилье большей площади, нежели в других жилых комплексах.
Отделка - черновая.
Комфортная среда для жизни:
- малоэтажные красивые здания современной архитектуры, с большой площадью остекления
- обособленная территория
- продуманные планировки, как привычные одно- и двухкомнатные квартиры, так и европланировки
- небольшая плотность населения: комплекс располагается на 6,5 га земли
- полная внутренняя инфраструктура, которая позволит жить с комфортом
Позвоните и узнайте условия покупки прямо сейчас!
Аккредитованные банки: ПАО Сбербанк
Позвоните и узнайте условия покупки прямо сейчас!
03.12.2025
4 242 816 ₽
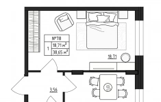
Продается 1-комн. квартира, площадью 38.65 м2 в малоэтажной. Возможен вариант покупки с использованием ипотечных средств, возможна покупка с использованием материнского капитала, есть военная ипотека.
Жилая площадь 18.71 м2, кухня 12.9 м2, комнаты изолированные.
Квартира располагается на 1 этаже 4-этажного дома в ЖК Верево Сити.
Застройщик - Строй Бизнес Групп специализированный застройщик, сдача дома - II квартал 2025 года, закрытая территория.
Парковка автомобилей - наземная, парковка охраняется. Обеспечение безопасности: видеонаблюдение. Инфраструктура: школа, детский сад, поликлиника, детские площадки, спортивные площадки, места для отдыха, супермаркет.
Для бронирования конкретной квартиры звоните по номеру телефона в объявлении.
ЖК Верево Сити - это современный городской жилой квартал малоэтажной застройки.
В 10-ти четырехэтажных корпусах сможет поселиться 1171 семья. Дома располагаются блоками, образуя уютные закрытые и безопасные дворы с большим количеством зеленых насаждений и с зонами отдыха для взрослых и детей.
В ЖК Верево Сити самое низкое ценовое предложение в Ленинградской области и пригородах Санкт-Петербурга, что позволит вам приобрести жилье большей площади, нежели в других жилых комплексах.
Отделка - черновая.
Комфортная среда для жизни:
- малоэтажные красивые здания современной архитектуры, с большой площадью остекления
- обособленная территория
- продуманные планировки, как привычные одно- и двухкомнатные квартиры, так и европланировки
- небольшая плотность населения: комплекс располагается на 6,5 га земли
- полная внутренняя инфраструктура, которая позволит жить с комфортом
Позвоните и узнайте условия покупки прямо сейчас!
Аккредитованные банки: ПАО Сбербанк
Позвоните и узнайте условия покупки прямо сейчас!
03.12.2025
4 452 480 ₽
Продается 1-комн. квартира, площадью 39.32 м2 в малоэтажной. Возможен вариант покупки с использованием ипотечных средств, возможна покупка с использованием материнского капитала, есть военная ипотека.
Жилая площадь 21.68 м2, кухня 10.72 м2, комнаты изолированные.
Квартира располагается на 3 этаже 4-этажного дома в ЖК Верево Сити.
Застройщик - Строй Бизнес Групп специализированный застройщик, сдача дома - II квартал 2025 года, закрытая территория.
Парковка автомобилей - наземная, парковка охраняется. Обеспечение безопасности: видеонаблюдение. Инфраструктура: школа, детский сад, поликлиника, детские площадки, спортивные площадки, места для отдыха, супермаркет.
Для бронирования конкретной квартиры звоните по номеру телефона в объявлении.
ЖК Верево Сити - это современный городской жилой квартал малоэтажной застройки.
В 10-ти четырехэтажных корпусах сможет поселиться 1171 семья. Дома располагаются блоками, образуя уютные закрытые и безопасные дворы с большим количеством зеленых насаждений и с зонами отдыха для взрослых и детей.
В ЖК Верево Сити самое низкое ценовое предложение в Ленинградской области и пригородах Санкт-Петербурга, что позволит вам приобрести жилье большей площади, нежели в других жилых комплексах.
Отделка - черновая.
Комфортная среда для жизни:
- малоэтажные красивые здания современной архитектуры, с большой площадью остекления
- обособленная территория
- продуманные планировки, как привычные одно- и двухкомнатные квартиры, так и европланировки
- небольшая плотность населения: комплекс располагается на 6,5 га земли
- полная внутренняя инфраструктура, которая позволит жить с комфортом
Позвоните и узнайте условия покупки прямо сейчас!
Аккредитованные банки: ПАО Сбербанк
Позвоните и узнайте условия покупки прямо сейчас!
20.12.2025
4 529 664 ₽
Продается 2-комн. квартира, площадью 54.27 м2 в малоэтажной. Возможен вариант покупки с использованием ипотечных средств, возможна покупка с использованием материнского капитала, есть военная ипотека.
Жилая площадь 25.22 м2, кухня 13.09 м2.
Квартира располагается на 1 этаже 4-этажного дома в ЖК Верево Сити.
Застройщик - Строй Бизнес Групп специализированный застройщик, сдача дома - II квартал 2025 года, закрытая территория.
Парковка автомобилей - наземная, парковка охраняется. Обеспечение безопасности: видеонаблюдение. Инфраструктура: школа, детский сад, поликлиника, детские площадки, спортивные площадки, места для отдыха, супермаркет.
Для бронирования конкретной квартиры звоните по номеру телефона в объявлении.
ЖК Верево Сити - это современный городской жилой квартал малоэтажной застройки.
В 10-ти четырехэтажных корпусах сможет поселиться 1171 семья. Дома располагаются блоками, образуя уютные закрытые и безопасные дворы с большим количеством зеленых насаждений и с зонами отдыха для взрослых и детей.
В ЖК Верево Сити самое низкое ценовое предложение в Ленинградской области и пригородах Санкт-Петербурга, что позволит вам приобрести жилье большей площади, нежели в других жилых комплексах.
Отделка - черновая.
Комфортная среда для жизни:
- малоэтажные красивые здания современной архитектуры, с большой площадью остекления
- обособленная территория
- продуманные планировки, как привычные одно- и двухкомнатные квартиры, так и европланировки
- небольшая плотность населения: комплекс располагается на 6,5 га земли
- полная внутренняя инфраструктура, которая позволит жить с комфортом
Позвоните и узнайте условия покупки прямо сейчас!
Аккредитованные банки: ПАО Сбербанк
Позвоните и узнайте условия покупки прямо сейчас!
03.12.2025
6 007 689 ₽
Продается 1-комн. квартира, площадью 36.83 м2 в малоэтажной. Возможен вариант покупки с использованием ипотечных средств, возможна покупка с использованием материнского капитала, есть военная ипотека.
Жилая площадь 17.08 м2, кухня 11.85 м2, комнаты изолированные.
Квартира располагается на 1 этаже 4-этажного дома в ЖК Верево Сити.
Застройщик - Строй Бизнес Групп специализированный застройщик, сдача дома - II квартал 2025 года, закрытая территория.
Парковка автомобилей - наземная, парковка охраняется. Обеспечение безопасности: видеонаблюдение. Инфраструктура: школа, детский сад, поликлиника, детские площадки, спортивные площадки, места для отдыха, супермаркет.
Для бронирования конкретной квартиры звоните по номеру телефона в объявлении.
ЖК Верево Сити - это современный городской жилой квартал малоэтажной застройки.
В 10-ти четырехэтажных корпусах сможет поселиться 1171 семья. Дома располагаются блоками, образуя уютные закрытые и безопасные дворы с большим количеством зеленых насаждений и с зонами отдыха для взрослых и детей.
В ЖК Верево Сити самое низкое ценовое предложение в Ленинградской области и пригородах Санкт-Петербурга, что позволит вам приобрести жилье большей площади, нежели в других жилых комплексах.
Отделка - черновая.
Комфортная среда для жизни:
- малоэтажные красивые здания современной архитектуры, с большой площадью остекления
- обособленная территория
- продуманные планировки, как привычные одно- и двухкомнатные квартиры, так и европланировки
- небольшая плотность населения: комплекс располагается на 6,5 га земли
- полная внутренняя инфраструктура, которая позволит жить с комфортом
Позвоните и узнайте условия покупки прямо сейчас!
Аккредитованные банки: ПАО Сбербанк
Позвоните и узнайте условия покупки прямо сейчас!
03.12.2025
4 242 816 ₽
Продаются просторные 2-комнатные апартаменты у самого берега Финского залива площадью 70,7 м2. Идеально для семейного проживания и отдыха. Из каждой комнаты есть выход на глубокую лоджию-аэрарий - там можно легко уместить 2 шезлонга и кофейный столик и наслаждаться видами на лес. Высокие потолки до 3 метров, гардеробная, отделка white-box.
Для семей с детьми мы предусмотрели все необходимое! Дом расположен в 50 метрах от Финского залива. Пляж широкий и песчаный, с собственным выходом. Окружают комплекс вековые хвойные деревья, воздух невероятно чистый и полезный, так как в Курортном районе нет предприятий. Такой воздух благоприятно влияет на сон, здоровье, самочувствие, а также на развитие детей.
Территория комплекса огромная и зеленая - 1,2 га. Ни одного члена семьи не оставит равнодушным большой открытый бассейн 25м с подогревом, он работает круглый год, можно просто поплавать и отдохнуть, а можно заняться спортом или даже устроить семейные соревнования.
А еще мы сделали:
- детские игровые площадки (для детей разных возрастов) , как на улице, так и в самом комплексе. Есть развивающие интерактивы, настольные игры, PlayStation. Пока дети играют, вы можете провести деловой созвон в лаунж-зоне или просто отдохнуть;
- тренажерный зал, теннисный корт, СПА-зону и многое другое. Здесь будет интересно абсолютно всем в любое время года!
И, конечно, мы тщательно продумали безопасность, чтобы вы могли спокойно жить и отдыхать. Территория комплекса закрыта от посторонних и охраняется круглосуточно. По всему периметру есть камеры видеонаблюдения, а попасть в помещения можно только по пропускам, так что вы сможете спокойно отпустить своего ребенка погулять одного, не тревожась за его безопасность.
Вы сможете жить у моря и при этом довольствоваться всей городской инфраструктурой - рядом есть школы, дет сады, поликлиника, рестораны, супермаркеты, лыжная база и тд. А до центра Санкт-Петербурга всего 40 минут езды.
А еще, в стоимость включен 22% НДС, которые вы можете сэкономить при оформлении апартамента на свое юридическое лицо. То есть, сразу на этапе покупки, получить скидку в 22%.
«Морская Ривьера» - это идеальный вариант для жизни и отдыха вашей семьи!
Записывайтесь на персональную экскурсию пока еще открыты продажи!
03.02.2026
40 652 500 ₽
Продаются просторные 2-комнатные апартаменты у самого берега Финского залива площадью 57,1 м2. Идеально для семейного проживания и отдыха. Из комнаты и кухни есть выход на глубокую лоджию-аэрарий - там можно легко уместить 2 шезлонга и кофейный столик и наслаждаться свежим воздухом, из спальни панорамное окно выходит на лес. Высокие потолки до 3 метров, отделка white-box.
Для семей с детьми мы предусмотрели все необходимое! Дом расположен в 50 метрах от Финского залива. Пляж широкий и песчаный, с собственным выходом. Окружают комплекс вековые хвойные деревья, воздух невероятно чистый и полезный, так как в Курортном районе нет предприятий. Такой воздух благоприятно влияет на сон, здоровье, самочувствие, а также на развитие детей.
Территория комплекса огромная и зеленая - 1,2 га. Ни одного члена семьи не оставит равнодушным большой открытый бассейн 25м с подогревом, он работает круглый год, можно просто поплавать и отдохнуть, а можно заняться спортом или даже устроить семейные соревнования.
А еще мы сделали:
- детские игровые площадки (для детей разных возрастов) , как на улице, так и в самом комплексе. Есть развивающие интерактивы, настольные игры, PlayStation. Пока дети играют, вы можете провести деловой созвон в лаунж-зоне или просто отдохнуть;
- тренажерный зал, теннисный корт, СПА-зону и многое другое. Здесь будет интересно абсолютно всем в любое время года!
И, конечно, мы тщательно продумали безопасность, чтобы вы могли спокойно жить и отдыхать. Территория комплекса закрыта от посторонних и охраняется круглосуточно. По всему периметру есть камеры видеонаблюдения, а попасть в помещения можно только по пропускам, так что вы сможете спокойно отпустить своего ребенка погулять одного, не тревожась за его безопасность.
Вы сможете жить у моря и при этом довольствоваться всей городской инфраструктурой - рядом есть школы, дет сады, поликлиника, рестораны, супермаркеты, лыжная база и тд. А до центра Санкт-Петербурга всего 40 минут езды.
А еще, в стоимость включен 22% НДС, которые вы можете сэкономить при оформлении апартамента на свое юридическое лицо. То есть, сразу на этапе покупки, получить скидку в 22%.
«Морская Ривьера» - это идеальный вариант для жизни и отдыха вашей семьи!
Записывайтесь на персональную экскурсию пока еще открыты продажи!
03.02.2026
33 160 825 ₽
Продается просторная светлая студия у самого берега Финского залива. Идеально для жизни и отдыха. Площадь 51,6 м, высокие потолки до 3м, остекление в пол и глубокая лоджия-аэрарий: можно разместить два шезлонга, кофейный столик и наслаждаться свежим воздухом на собственной террасе. В апартаментах редкий для нашего времени уровень звукоизоляции, это вам позволит наслаждаться тишиной и приватностью. А также из крана течет чистейшая питьевая вода. Черновая отделка позволит реализовать собственный дизайн.
"Морская Ривьера" - уникальный комплекс в Курортном районе Санкт-Петербурга, г. Зеленогорск. Это респектабельный район с потрясающей экологией, ни одного производства по близости. Воздух здесь по-настоящему оздоравливает - он насыщен морем и соснами - создает атмосферу отдыха и восстановления. Прогулки вдоль залива в лучах заходящего солнца станут вашим личным ритуалом перезагрузки.
В вашем распоряжении территория 1,2 га, где вы можете расслабиться или активно провести время:
- подогреваемый открытый бассейн 25 м - работает круглый год, хотите - плавайте по дорожкам, тренируясь в своем темпе, хотите - просто отдыхайте в теплой воде, наслаждаясь видом на сосны и свежим воздухом;
- теннисный корт, тренажерный зал, СПА-зона, лаунж-зона с PlayStation и и полный набор инфраструктуры для активного или спокойного отдыха и летом и зимой.
Стоит отметить, что управляющая компания постоянно улучшает территорию для жителей: высаживает новые растения и делает все, чтобы вы наслаждались эстетичностью территории. К вашим услугам также охрана, горничные, садовники, хаус-мастер и приветливый консьерж.
Попадать в свои апартаменты вы будете через элегантные гранд-лобби и холлы. Интерьеры и отделочные материалы мы тщательно подбирали, чтобы объединить пространство окружающей природы и пространство дома. Каждая деталь - от пола до потолка, от светильников до дверных ручек - призвана подчеркивать статус вашего дома.
А еще, в стоимость включен 22% НДС, которые вы можете сэкономить при оформлении апартамента на свое юридическое лицо. То есть, сразу на этапе покупки, получить скидку в 22%.
"Морская Ривьера" - это собственная инфраструктура для первоклассного отдыха и комфортного проживания с захватывающими видами на Финский залив и вековой лес. Здесь вы найдете идеальный баланс между динамикой городской жизни, привычным уровнем сервиса бизнес-класса и спокойствием загородной резиденции.
Приглашаем вас на персональную экскурсию, чтобы в полной мере прочувствовать эту неповторимую атмосферу. Успевайте пока еще открыты продажи!
03.02.2026
30 871 712 ₽
Продаются шикарные 2-комнатные апартаменты с европланировкой площадью 131,6 м, с глубокой лоджией и собственной видовой террасой 28,8 м с завораживающим видом на Финский залив, откуда можно увидеть шпиль Морского собора, башню Лахта-центра и наблюдать, как большие корабли идут по фарватеру.
"Морская Ривьера" - идеальный комплекс для жизни и отдыха! Он расположен в самом зелёном районе Петербурга - Курортном, всего в 50 метрах от пляжа Финского залива и в окружении вековых сосен. Здесь нет предприятий и производств, воздух чистый и свежий.
Территория комплекса - 1,2 га, и почти всё пространство отдано жителям: зелёные зоны, детские пространства, теннисный корт, тренажерный зал, лаунж зона с PS, спа-зона.
Главное место притяжения - 25-метровый открытый бассейн с подогревом, зоной отдыха и мини-баром.
Территория закрыта и охраняется, действует контроль доступа на территорию. Здесь безопасно, удобно и комфортно для всех поколений.
В апартаментах черновая отделка, дизайн проект в подарок! В комнатах установлены кондиционеры, которые подключены к общедомовой системе кондиционирования, наружные блоки размещены централизованно на кровле здания.
Также реализована система теплого водяного во всех помещениях.
Студия расположена на 12 этаже, что обеспечивает роскошные виды. На просторной террасе можно устроить летнюю кухню, зону барбекю или обустроить лаунж-площадку для друзей и вечеров под звездами.
А еще, в стоимость включен 22% НДС, которые вы можете сэкономить при оформлении апартамента на свое юридическое лицо. То есть, сразу на этапе покупки, получить скидку в 22%.
"Морская Ривьера" - это собственная инфраструктура для первоклассного отдыха и комфортного проживания с захватывающими видами на Финский залив и вековой лес. Здесь вы найдете идеальный баланс между динамикой городской жизни, привычным уровнем сервиса бизнес-класса и спокойствием загородной резиденции.
Приглашаем вас на персональную экскурсию, чтобы в полной мере прочувствовать эту неповторимую атмосферу. Успевайте пока еще открыты продажи!
03.02.2026
78 009 716 ₽




















