Продажа недвижимости в Алабино - Страница 6
- Алабино »
- Недвижимость в Алабино
Продается 2-комн. квартира, площадью 59.4 кв.м.
Жилая площадь 29.7 м2, кухня 12.2 кв. м, ремонта нет, окна выходят во двор и на улицу.
Квартира располагается на 13 этаже 13-этажного панельного дома в ЖК 1-й Ленинградский.
Дом оборудован пассажирским лифтом.
09.04.2026
18 353 115 ₽
Продается 2-комн. квартира, площадью 59.6 кв.м.
Жилая площадь 29.7 м2, кухня 12.2 кв. м, ремонта нет, окна выходят во двор и на улицу.
Квартира располагается на 7 этаже 14-этажного панельного дома в ЖК 1-й Ленинградский.
Дом оборудован пассажирским лифтом.
09.04.2026
17 779 634 ₽
О квартире
Продаётся однокомнатная квартира общей площадью 35.80 кв. м. с отделкой на выбор: черновая, White Box. Квартира на 11 этаже корпуса 5.7 в жилом комплексе бизнес-класса «Среда на Лобачевского». До метро «Аминьевская» 7 минут пешком.
Развитый район с удобным выездом
«Среда на Лобачевского» строится рядом с Аминьевским и Очаковским шоссе, отсюда можно доехать до МКАД или Ленинского проспекта за 10 минут. В районе уже есть всё для жизни: рестораны, кофейни, торговые центры, поликлиники и спортивные комплексы, школы и сады, бульвары и парки.
- 7 минут ходьбы до станции метро «Аминьевская».
- 15 минут пешком до станции МЦД-4 «Очаково».
- 8-15 минут на машине до Кутузовского проспекта и ТТК.
- До 15 минут езды до заказников «Долина реки Сетунь» и «Воробьёвы горы».
О жилом комплексе
«Среда на Лобачевского» - новый квартал в парадном стиле старой Москвы. Благодаря разноэтажной застройке во дворе комплекса будет много света и воздуха, без ощущения замкнутого пространства. Во дворе лаунж-зоны для медитации и работы, площадки для игр и кинопоказов, а на первых этажах - кофейни и магазины.
Особенности
- Высота потолков до 3,24 метра.
- Панорамное остекление в пол.
- Квартиры с террасами, мастер-спальнями и сквозными планировками.
- Дизайнерские гранд-лобби в каждом корпусе.
- Ландшафтный парк с зонами отдыха у воды.
- Коворкинг на свежем воздухе.
- Локации для спорта, игр и приватного отдыха.
- Соседский бульвар с площадкой для подростков.
- Подземный паркинг с двумя въездами.
- Система бесключевого доступа.
- Стрит-ритейл на первых этажах.
15.04.2026
21 651 840 ₽
Предлагается к продаже от собственника объект коммерческой недвижимости по адресу: МО, г. Ступино, ул. Тургенева 21. Объект с действующими арендаторами включает в себя: Земельный участок площадью 0,05 Га (пять соток) земли населенных пунктов и одноэтажное капитальное кирпичное здание площадью 187,4 квадратных метров. Есть техническая возможность строительства двух этажей и увеличения капитализации объекта. Стоимость объекта 21 миллион рублей. Договоры с арендаторами на 11 месяцев с правом продления.
10.04.2026
21 000 000 ₽
Продается новое производственно-складское помещение по Дмитровскому шоссе - ICPARK КЛЮЧ.
Назначение:
под производство и склад
Продажа осуществляется напрямую от собственника парка, что гарантирует отсутствие каких-либо комиссий и скрытых платежей!
Объект расположен в северном направлении с выездом на Дмитровское шоссе (4 км). Расстояние от МКАД - 30 км.
Координаты: 56.148996, 37.449949
Формат Point. Блок А, Бокс 6.
Планировочное решение включает в себя пространство для производства, склад или логистику 356,85 кв.м, а также офисную часть 120,60 кв.м.
Наличие мезонина.
ОСНОВНЫЕ ХАРАКТЕРИСТИКИ:
- Класс: A
- Температура: Сухой склад
- Автоматическая спринклерная система пожаротушения
- Высота: 8 м
- Нагрузка на пол: 5 т/кв.м
- Высококачественные бетонные полы с антипылевым покрытием и упрочняющим слоем
- Сетка колонн: 12x24
- Ворота: докового типа и на нулевой отметке
КОММУНИКАЦИИ:
- Электричество: 25 кВт (возможно увеличение мощности)
- Вентиляция: приточно-вытяжная
- Водоснабжение, канализация
- Индивидуальные приборы учета
ИНФРАСТРУКТУРА:
- Парковки для транспорта: для грузовых авто — 2 места, для легкового авто — 4 места
- Доступ к производственно-складским помещениям 24/7
- Охраняемая территория
- Видеонаблюдение
- Скоростной интернет и телефония
ДОПОЛНИТЕЛЬНО:
- Собственная профессиональная управляющая компания
- Клининг
- Консьерж-сервис
- Мобильное приложение
- Маркетплейс услуг
- Кафе на территории
- Зоны отдыха и спортивные площадки
Готовы предоставить подробную информацию и организовать просмотр!
09.04.2026
69 663 855 ₽
Продается новое готовое к заезду производственно-складское помещение вблизи МКАД в промышленном парке INDUSTRIAL CITY -ICPARK Сынково.
Планировочное решение включает в себя пространство для производства, склад или логистику 653,9 кв.м, а также офисную часть 110,6 кв.м
Объект расположен в южном направлении выездом на Симферопольское шоссе (М-2). Расстояние от МКАД - 30 км.
Координаты: 55.336677, 37.597621
Продажа осуществляется напрямую от собственника парка, что гарантирует отсутствие каких-либо комиссий и скрытых платежей!
Формат Base. Блок A, Бокс 6.
ОСНОВНЫЕ ХАРАКТЕРИСТИКИ:
- Класс: A
- Температура: Сухой склад
- Автоматическая спринклерная система пожаротушения
- Высота: 8 м
- Нагрузка на пол: 5 т/кв.м
- Высококачественные бетонные полы с антипылевым покрытием и упрочняющим слоем
- Сетка колонн: 12x24
- Ворота: докового типа
КОММУНИКАЦИИ:
- Электричество: 25 кВт (возможно увеличение мощности)
- Вентиляция: приточно-вытяжная
- Водоснабжение, канализация
- Индивидуальные приборы учета
ИНФРАСТРУКТУРА:
- Парковки для транспорта: для грузовых авто — 1 место, для легкового авто — 3 места
- Доступ к производственно-складским помещениям 24/7
- Охраняемая территория
- Видеонаблюдение
- Скоростной интернет и телефония
ДОПОЛНИТЕЛЬНО:
- Собственная профессиональная управляющая компания
- Клининг
- Консьерж-сервис
- Мобильное приложение
- Маркетплейс услуг
- Кафе на территории
- Зоны отдыха и спортивные площадки
Готовы предоставить подробную информацию и организовать просмотр!
09.04.2026
131 557 453 ₽
Продается новое готовое к заезду производственно-складское помещение вблизи МКАД в промышленном парке INDUSTRIAL CITY -ICPARK Коледино.
Планировочное решение включает в себя пространство для производства, склад или логистику 901.44 кв.м, а также офисную часть 109,93 кв.м. Общая площадь 1011.37 кв.м.
Объект расположен в южном направлении с выездом на Симферопольское шоссе (М-2). Расстояние от МКАД — 24 км.
Координаты: 55.373194, 37.575127
Продажа осуществляется напрямую от собственника парка, что гарантирует отсутствие каких-либо комиссий и скрытых платежей!
Формат Point. Блок D, Бокс 10.
ОСНОВНЫЕ ХАРАКТЕРИСТИКИ:
- Класс: A
- Температура: Сухой склад
- Автоматическая спринклерная система пожаротушения
- Высота: 8 м
- Нагрузка на пол: 5 т/кв.м
- Высококачественные бетонные полы с антипылевым покрытием и упрочняющим слоем
- Сетка колонн: 12x24
- Ворота: на нулевой отметке
КОММУНИКАЦИИ:
- Электричество: 25 кВт (возможно увеличение мощности)
- Вентиляция: приточно-вытяжная
- Водоснабжение, канализация
- Индивидуальные приборы учета
ИНФРАСТРУКТУРА:
- Парковки для транспорта: для грузовых авто — 1 место, для легкового авто — 3 места
- Доступ к производственно-складским помещениям 24/7
- Охраняемая территория
- Видеонаблюдение
- Скоростной интернет и телефония
ДОПОЛНИТЕЛЬНО:
- Собственная профессиональная управляющая компания
- Клининг
- Консьерж-сервис
- Мобильное приложение
- Маркетплейс услуг
- Кафе на территории
- Зоны отдыха и спортивные площадки
Готовы предоставить подробную информацию и организовать просмотр!"
09.04.2026
135 539 762 ₽
Просторная 5-комнатная квартира с дизайнерским ремонтом и высокими потолками. Отличный вариант для семьи, которая ценит комфорт и статусное расположение в престижном районе Москвы. Возможна ипотека.
Расположение и транспорт:
8 минут пешком от м. «Мичуринский проспект».
Район: Проспект Вернадского — один из самых зеленых и престижных районов Москвы.
Дом: 13-этажный (квартира на последних этажах — 12 и 13).
О квартире:
Формат: Двухуровневая квартира.
Площадь: 167 м2.
Планировка: 5 изолированных комнат — достаточно пространства для большой семьи, кабинета и гостевой зоны.
Высота потолков: 3.2 метра — создает ощущение воздуха и свободы.
Санузлы: 1 раздельный + 2 совмещенных — максимальное удобство для всех членов семьи.
Остекление: 2 лоджии, окна выходят на две стороны (во двор и на улицу).
Ремонт и состояние:
Качественный современный ремонт по авторскому проекту — можно въезжать и жить, не тратя время и деньги на отделку.
Покрытие полов: паркет и плитка.
Бонус: по договоренности можем оставить мебель — переезжайте с комфортом.
Условия продажи:
Цена: 73 480 000 руб. (прямая продажа от собственника).
Возможна ипотека — включая семейную (уточняйте условия).
Обременения: нет, чистая продажа.
Для просмотра:
Свяжитесь с нами, чтобы увидеть квартиру своими глазами и почувствовать атмосферу этого пространства. Готовы ответить на любые вопросы.
09.04.2026
73 480 000 ₽
Предлагается к продаже уютный дуплекс 186 квадратных метров с мангальной зоной и зоной отдыха на заднем дворе площадью 3 сотки.
ЛОКАЦИЯ: Московская область, город Красногорск, село Николо-Урюпино. От МКАД до дома 10 минут! 9 км по Новой Риге с выездом на шоссе без пробок. В радиусе 2 км щедрая и развитая инфраструктура, много объектов социального назначения в пешей доступности. Отличные соседи. Рядом две школы и детский сад. В посёлке детские площадки, поблизости винотека, супермаркеты, фитнесс зал.
УЧАСТОК: Участок очень ухоженный: вымощенная зона парковки на два-три автомобиля, дом в тупиковой части улицы, а на заднем дворе живая изгородь, плотный газон и дорожки с подсветкой, зона отдыха с мангалом.
ДОМ: Двухэтажный дуплекс 186 квадратов с тремя просторными спальнями, 3 санузла и с 3 гардеробными. Большая кухня-гостиная с панорамным остеклением на веранду. Большая уютная веранда как продолжение зоны отдыха на участке. Санузел на каждом этаже. Гараж на один автомобиль. Выполнен дизайнерский качественный ремонт для собственного проживания из дорогостоящих материалов. Дизайн в уютном современном стиле в светлых тонах. Фасад отделан деревом. Было выполнено дополнительное утепление и звукоизоляция. Вся мебель и техника остается по согласованию. Фундамент - шведская утепленная плита, мягкая кровля, лиственница на фасаде, окна и внутренние коммуникации Rehau.
Магистральный газ, очистка воды, электричество 18 кВт.
Участок и строение оформлены в собственность, документы готовы к сделке, дом готов стать вашим родным гнездом!
Показы в любое время, звоните!
09.04.2026
38 000 000 ₽
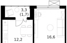
Продается 2-комн. квартира, площадью 56.4 кв. м.
Жилая площадь 35 кв. м, кухня 15 кв. м, внутри евро ремонт, комнаты изолированные, интернет. Раздельных санузлов - 1, совмещенных санузлов - нет.
На полу ламинат, балконов - нет, лоджий - 1, окна выходят во двор и на улицу.
Квартира располагается на 10 этаже 18-этажного монолитно-кирпичного дома в ЖК Самолет 2018 года постройки, высота потолков 2.7 м. Частично мебелерована. Вся встроенная мебель остается (шкафы, кухня).
Дом оборудован грузовым и пассажирским лифтом, есть мусоропровод, закрытая территория.
Парковка автомобилей - наземная, есть гостевые парковочные места, парковка охраняемая. Обеспечение безопасности: консьерж. Инфраструктура: школа, детский сад, поликлиника, детские площадки, спортивные площадки, места для отдыха, супермаркет.
2 собственника, срок владения более 5 лет. Прямая свободная продажа.
10.04.2026
11 500 000 ₽
Продается новое готовое к заезду производственно-складское помещение вблизи МКАД в промышленном парке INDUSTRIAL CITY -ICPARK Коледино.
Планировочное решение включает в себя пространство для производства, склад или логистику 859,2 кв.м, а также офисную часть 109,93 кв.м.
Объект расположен в южном направлении с выездом на Симферопольское шоссе (М-2). Расстояние от МКАД — 24 км.
Координаты: 55.373194, 37.575127
Продажа осуществляется напрямую от собственника парка, что гарантирует отсутствие каких-либо комиссий и скрытых платежей!
Формат Point. Блок D, Бокс 11.
ОСНОВНЫЕ ХАРАКТЕРИСТИКИ:
- Класс: A
- Температура: Сухой склад
- Автоматическая спринклерная система пожаротушения
- Высота: 8 м
- Нагрузка на пол: 5 т/кв.м
- Высококачественные бетонные полы с антипылевым покрытием и упрочняющим слоем
- Сетка колонн: 12x24
- Ворота: на нулевой отметке
КОММУНИКАЦИИ:
- Электричество: 25 кВт (возможно увеличение мощности)
- Вентиляция: приточно-вытяжная
- Водоснабжение, канализация
- Индивидуальные приборы учета
ИНФРАСТРУКТУРА:
- Парковки для транспорта: для грузовых авто — 1 место, для легкового авто — 3 места
- Доступ к производственно-складским помещениям 24/7
- Охраняемая территория
- Видеонаблюдение
- Скоростной интернет и телефония
ДОПОЛНИТЕЛЬНО:
- Собственная профессиональная управляющая компания
- Клининг
- Консьерж-сервис
- Мобильное приложение
- Маркетплейс услуг
- Кафе на территории
- Зоны отдыха и спортивные площадки
Готовы предоставить подробную информацию и организовать просмотр!
09.04.2026
129 878 926 ₽
Продажа: Дом в поселке бизнес-класса с собственным озером 17,6 га. КП «Силва»
Хотите жить на берегу личного озера, но при этом быть в 41 км от МКАД?
В экологичном коттеджном поселке «Силва» (Фряновское шоссе, д. Воря-Богородское) продается дом, где природа становится продолжением интерьера. Участок граничит с вековым хвойным лесом - чистый воздух и тишина гарантированы 365 дней в году.
Комплектация MAX: Предчистовая отделка + готовая инженерия. Технически дом полностью укомплектован (газ, котел, теплые полы, приточная вентиляция, кондиционирование). Вам остается только финишная отделка по вашему вкусу.
Архитектура и виды:
Единый современный стиль. Панорамное остекление стирает границы между домом и лесом. Доступны видовые лоты с прямым видом на ваше собственное озеро (акватория 17,6 Га!).
Комфорт бизнес-класса:
-Закрытая охраняемая территория (КПП, видеонаблюдение 24/7)
-Все коммуникации заведены: газ, своя котельная, свет
-На участке: собственная скважина (вода) + автономный септик (канализация)
-Климат-контроль: система кондиционирования и приточная вентиляция — свежий воздух круглый год
-Широкие асфальтированные дороги, прогулочные зоны вдоль озера
-Своя управляющая компания (двор без снега и мусора)
Инвестируйте в качество жизни.
Это не просто дом - это резиденция с закрытой экосистемой: лес, озеро, безопасность и архитектура премиум-уровня.
Запишитесь на просмотр и выберите лучший участок у воды прямо сейчас!
11.04.2026
29 800 000 ₽
Продается дом в поселке бизнес-класса СИЛВА. Это проект для тех, кто ищет баланс между приватностью дикой природы и сервисом высокого уровня.
Локация: Щёлковское / Фряновское направление, ~40 км от МКАД, д. Воря-Богородское. 38,9 га территории, включая озеро 17,6 га, реку и хвойный массив.
Архитектура и продукт: Единый стиль (Альтерум / Барн), панорамное остекление и высокие потолки.
Комплектация MAX: Предчистовая отделка + готовая инженерия. Технически дом полностью укомплектован (газ, котел, теплые полы, приточная вентиляция, кондиционирование). Вам остается только финишная отделка по вашему вкусу.
Ценность первой очереди – это возможность войти в проект на этапе запуска. Статус «первого жителя» дает не только приоритет в выборе, но и лучшие финансовые условия на старте. Пока поселок развивается, вы фиксируете стоимость и получаете дом, полностью готовый к обустройству.
Преимущества:
-ИЖС – прозрачная юридическая модель (земли населенных пунктов).
-Закрытый периметр, КПП, видеонаблюдение и собственная управляющая компания.
-Асфальтированные дороги, прогулочные зоны и общественные пространства.
-Готовые дома - можно сразу переходить к финальной отделке без ожидания завершения строительства.
Финансовая модель:
-Рассрочка с индивидуальным графиком.
-Специальные условия при 100% оплате.
-Прозрачная система бронирования.
Станьте частью комьюнити СИЛВА на этапе формирования поселка.
Запишитесь на персональный просмотр, чтобы оценить локацию и выбрать свой формат дома.
11.04.2026
37 000 000 ₽
Сдаётся в аренду новое производственно-складское помещение, полностью готовое к заезду, в современном промышленном парке INDUSTRIAL CITY - ICPARK КЛЮЧ.
Назначение:
под производство и склад
Аренда напрямую от собственника парка INDUSTRIAL CITY, что гарантирует отсутствие каких-либо комиссий и скрытых платежей!
Объект расположен в северном направлении с выездом на Дмитровское шоссе (4 км). Расстояние от МКАД - 30 км.
Координаты: 56.148996, 37.449949
Формат Base. Блок А, Бокс 19.
Планировочное решение включает в себя пространство для производства, склада или логистику 648 кв.м, а также офисную часть 106,05 кв.м.
ОСНОВНЫЕ ХАРАКТЕРИСТИКИ:
- Класс: A
- Температура: Сухой склад
- Автоматическая спринклерная система пожаротушения
- Высота: 8 м
- Нагрузка на пол: 5 т/кв.м
- Высококачественные бетонные полы с антипылевым покрытием и упрочняющим слоем
- Сетка колонн: 12x24
- Ворота: докового типа и на нулевой отметке
КОММУНИКАЦИИ:
- Электричество: 25 кВт (возможно увеличение мощности)
- Вентиляция: приточно-вытяжная
- Водоснабжение, канализация
- Индивидуальные приборы учета
ИНФРАСТРУКТУРА:
- Парковки для транспорта: для грузовых авто — 2 места, для легкового авто — 3 места
- Доступ к производственно-складским помещениям 24/7
- Охраняемая территория
- Видеонаблюдение
- Скоростной интернет и телефония
ДОПОЛНИТЕЛЬНО:
- Собственная профессиональная управляющая компания
- Клининг
- Консьерж-сервис
- Мобильное приложение
- Маркетплейс услуг
- Кафе на территории
- Зоны отдыха и спортивные площадки
Готовы предоставить подробную информацию и организовать просмотр!
09.04.2026
952 868 ₽
Продается дом в поселке бизнес-класса СИЛВА. Это проект для тех, кто ищет баланс между приватностью дикой природы и сервисом высокого уровня.
Локация: Щёлковское / Фряновское направление, ~40 км от МКАД, д. Воря-Богородское. 38,9 га территории, включая озеро 17,6 га, реку и хвойный массив.
Архитектура и продукт: Единый стиль (Альтерум / Барн), панорамное остекление и высокие потолки.
Комплектация MAX: Предчистовая отделка + готовая инженерия. Технически дом полностью укомплектован (газ, котел, теплые полы, приточная вентиляция, кондиционирование). Вам остается только финишная отделка по вашему вкусу.
Ценность первой очереди – это возможность войти в проект на этапе запуска. Статус «первого жителя» дает не только приоритет в выборе, но и лучшие финансовые условия на старте. Пока поселок развивается, вы фиксируете стоимость и получаете дом, полностью готовый к обустройству.
Преимущества:
-ИЖС – прозрачная юридическая модель (земли населенных пунктов).
-Закрытый периметр, КПП, видеонаблюдение и собственная управляющая компания.
-Асфальтированные дороги, прогулочные зоны и общественные пространства.
-Готовые дома - можно сразу переходить к финальной отделке без ожидания завершения строительства.
Финансовая модель:
-Рассрочка с индивидуальным графиком.
-Специальные условия при 100% оплате.
-Прозрачная система бронирования.
Станьте частью комьюнити СИЛВА на этапе формирования поселка.
Запишитесь на персональный просмотр, чтобы оценить локацию и выбрать свой формат дома.
11.04.2026
29 800 000 ₽
Сдаётся в аренду производственно-складское помещение в современном промышленном парке -ICPARK ТИТАН.
Назначение:
под производство и склад
Это полноценное решение для вашего бизнеса, позволяющее масштабировать производство и логистику.
Помещение находится всего в 8 км от МКАД по скоростному шоссе М-4 «Дон», что обеспечивает отличную транспортную доступность. Координаты: 55.528404, 37.684668
Мы предлагаем формат Base, Блок В, Бокс 11, общей площадью 977,78 кв.м., которая включает:
Производственная и складская зона: 871,73 кв.м
Офисная часть: 106,05 кв.м
Включено в ставку: эксплуатационные расходы (OPEX)
Аренда напрямую от собственника INDUSTRIAL CITY, без комиссий и скрытых платежей.
Основные характеристики и инфраструктура
Класс: A
Температура: Сухой склад
Высота потолков: 8 м
Полы: высококачественные бетонные полы с антипылевым покрытием, нагрузка до 5 т/кв.м
Сетка колонн: 12x24
Ворота: докового типа
Пожаротушение: автоматическая спринклерная система
Коммуникации:
Электричество: 25 кВт (с возможностью увеличения)
Вентиляция: приточно-вытяжная
Другое: водоснабжение, канализация, индивидуальные приборы учета
Инфраструктура:
Парковка: 2 места для грузового и 3 для легкового транспорта
Доступ: 24/7
Безопасность: охраняемая территория, видеонаблюдение
Связь: скоростной интернет и телефония
Дополнительно:
Профессиональная управляющая компания
Кафе, зоны отдыха и спортивные площадки на территории
Клининг, консьерж-сервис, мобильное приложение, маркетплейс услуг
Готовы ответить на все вопросы.
09.04.2026
1 469 358 ₽
Продается дом в поселке бизнес-класса СИЛВА. Это проект для тех, кто ищет баланс между приватностью дикой природы и сервисом высокого уровня.
Локация: Щёлковское / Фряновское направление, ~40 км от МКАД, д. Воря-Богородское. 38,9 га территории, включая озеро 17,6 га, реку и хвойный массив.
Архитектура и продукт: Единый стиль (Альтерум / Барн), панорамное остекление и высокие потолки.
Комплектация MAX: Предчистовая отделка + готовая инженерия. Технически дом полностью укомплектован (газ, котел, теплые полы, приточная вентиляция, кондиционирование). Вам остается только финишная отделка по вашему вкусу.
Ценность первой очереди – это возможность войти в проект на этапе запуска. Статус «первого жителя» дает не только приоритет в выборе, но и лучшие финансовые условия на старте. Пока поселок развивается, вы фиксируете стоимость и получаете дом, полностью готовый к обустройству.
Преимущества:
-ИЖС – прозрачная юридическая модель (земли населенных пунктов).
-Закрытый периметр, КПП, видеонаблюдение и собственная управляющая компания.
-Асфальтированные дороги, прогулочные зоны и общественные пространства.
-Готовые дома - можно сразу переходить к финальной отделке без ожидания завершения строительства.
Финансовая модель:
-Рассрочка с индивидуальным графиком.
-Специальные условия при 100% оплате.
-Прозрачная система бронирования.
Станьте частью комьюнити СИЛВА на этапе формирования поселка.
Запишитесь на персональный просмотр, чтобы оценить локацию и выбрать свой формат дома.
11.04.2026
42 500 000 ₽
Продажа: Дом в поселке бизнес-класса с собственным озером 17,6 га. КП «Силва»
Хотите жить на берегу личного озера, но при этом быть в 41 км от МКАД?
В экологичном коттеджном поселке «Силва» (Фряновское шоссе, д. Воря-Богородское) продается дом, где природа становится продолжением интерьера. Участок граничит с вековым хвойным лесом - чистый воздух и тишина гарантированы 365 дней в году.
Комплектация MAX: Предчистовая отделка + готовая инженерия. Технически дом полностью укомплектован (газ, котел, теплые полы, приточная вентиляция, кондиционирование). Вам остается только финишная отделка по вашему вкусу.
Архитектура и виды:
Единый современный стиль. Панорамное остекление стирает границы между домом и лесом. Доступны видовые лоты с прямым видом на ваше собственное озеро (акватория 17,6 Га!).
Комфорт бизнес-класса:
-Закрытая охраняемая территория (КПП, видеонаблюдение 24/7)
-Все коммуникации заведены: газ, своя котельная, свет
-На участке: собственная скважина (вода) + автономный септик (канализация)
-Климат-контроль: система кондиционирования и приточная вентиляция — свежий воздух круглый год
-Широкие асфальтированные дороги, прогулочные зоны вдоль озера
-Своя управляющая компания (двор без снега и мусора)
Инвестируйте в качество жизни.
Это не просто дом - это резиденция с закрытой экосистемой: лес, озеро, безопасность и архитектура премиум-уровня.
Запишитесь на просмотр и выберите лучший участок у воды прямо сейчас!
11.04.2026
42 500 000 ₽
Сдается в аренду производственно-складское помещение в современном ICPARK ТИТАН!
Назначение:
под производство и склад
Идеальное расположение для вашего бизнеса - всего 8 км от МКАД по скоростному шоссе М-4 «Дон». Это не просто склад, а готовое решение для масштабирования вашего дела.
Координаты: 55.528404, 37.684668
Аренда напрямую от собственника INDUSTRIAL CITY, что гарантирует отсутствие каких-либо комиссий и скрытых платежей!
Формат Base. Блок В, Бокс 11.
Планировка включает просторное помещение для производства, склада или логистики (871,73 кв.м), а также комфортную офисную часть (106,05 кв.м).
ОСНОВНЫЕ ХАРАКТЕРИСТИКИ:
Класс: A
Температура: Сухой склад
Автоматическая спринклерная система пожаротушения
Высота: 8 м
Нагрузка на пол: 5 т/кв.м
Высококачественные бетонные полы с антипылевым покрытием и упрочняющим слоем
Сетка колонн: 12x24
Ворота: докового типа
КОММУНИКАЦИИ:
Электричество: 25 кВт (возможно увеличение мощности)
Вентиляция: приточно-вытяжная
Водоснабжение, канализация
Индивидуальные приборы учета
ИНФРАСТРУКТУРА:
Парковки для транспорта: для грузовых авто — 2 места, для легкового авто — 3 места
Доступ к производственно-складским помещениям 24/7
Охраняемая территория
Видеонаблюдение
Скоростной интернет и телефония
ДОПОЛНИТЕЛЬНО:
Собственная профессиональная управляющая компания
Клининг
Консьерж-сервис
Мобильное приложение
Маркетплейс услуг
Кафе на территории
Зоны отдыха и спортивные площадки
Свяжитесь с нами, и мы ответим на все ваши вопросы об условиях аренды!
09.04.2026
1 469 359 ₽
Продается 3-комн. квартира, площадью 84.3 м2.
Жилая площадь 39.3 кв. м, ремонта нет, окна выходят на улицу.
Квартира располагается на 5 этаже 17-этажного монолитного дома.
Дом оборудован пассажирским лифтом, есть мусоропровод, закрытая территория, парковка охраняется.
08.04.2026
51 652 296 ₽
Новый 1-но этажный коттедж 118 кв.м на участке 6 соток в КП «Новая Дятловка».
Ключи – май 2026г. Завершается внешняя отделка фасада.
Дом без внутренней отделки.
Семейная и IT ипотека - 6%.
Планировка по проекту:
Просторная кухня-гостиная 36 кв.м с окнами на три стороны света и панорамной дверью на крытую террасу; три комнаты (12/14/14 кв.м), ванная комната, бойлерная, гардеробная, прихожая, гостевой с/у.
Высокие потолки- 3 метра.
Под кровлей можно оборудовать дополнительное помещение площадью от 18 до 30 кв.м с высотой до 1,8 м.
Коммуникации: Электричество и магистральный газ заведены на участок.
Земельный участок: 6 соток, ровный, правильной формы, перед домом предусмотрено место для парковки 2-х авто. Забор - металлический штакетник высотой 2м.
Назначение - индивидуальное жилищное строительство. Прописка – д.Дятловка, г.Балашиха. Без проблем прикрепиться к садику, школе, поликлинике.
Коттедж построен из высококачественных материалов с соблюдением всех технологий:
- Фундамент: Свайный с ростверком (монолитный с армированием) с заглублением 3м;
- Стены: Газобетонный блок Бонолит, толщина внешних стен 400мм;
- Фасад: Штукатурка, покраска, фасадный декор; Цоколь утеплен и облицован термопанелями; выполнена отмостка;
- Кровля: Четырехскатная из метало-черепицы с установкой снегозадержателей и водосточной системы;
- Окна Melke: Металло-пластиковые двухкамерные стеклопакеты с поворотно-откидным механизмом;
- Крыльцо с навесом;
- Входная металлическая дверь.
О поселке: Асфальтированные дороги. Общее освещение. Закрытая территория. В поселке оборудована детско-спортивная площадка с воркаутом и зоной отдыха, отдельной площадкой для малышей и теннисным столом.
Чистый и свежий воздух, удаленность от трасс и многоэтажек, тишина и уединение с природой и при этом оптимальное расстояние до города- всего 3 км от мкр. Железнодорожный и 17 км от МКАД. Ближайшие станции метро: Новокосино, Железнодорожная, Некрасовка.
Инфраструктура:
Все поблизости: Детский сад, школа, амбулатория, парк, банк, почта, спортивный комплекс с плавательным бассейном в Агрогородке - 10 мин на авто/автобусе. В д.Дятловка расположена остановка школьного автобуса, где утром забирает, а после уроков привозит ребят школьный автобус. В шаговой доступности Вкус Вилл, Пятерочка, пункты Яндекс/Озон/Валдбериз, аптека и тд.
ТЦ, рестораны, кафе, сетевые магазины и другая социально-бытовая инфраструктура расположена в городе Железнодорожном - 15 минут на авто.
Как добраться:
От КП до остановки автобуса 10 минут пешком. Автобус №26 идет до ж/д станции "Черное"- 10 минут, до ж/д станции "Железнодорожная" - 20 минут.
Открыт участок автомобильной трассы М12 Москва-Ногинск, легкое метро МЦД-4 (от Апрелевки до Железнодорожного), что значительно сокращает время в пути.
Продажа от застройщика. Вся стоимость в договор. Одобрение ипотеки и сопровождение сделки - бесплатно. Индивидуальная рассрочка до 12 месяцев.
Добро пожаловать в Новую Дятловку!
08.04.2026
14 100 000 ₽




















