Продажа недвижимости в Ахтырском - Страница 3
- Ахтырский »
- Недвижимость в Ахтырском
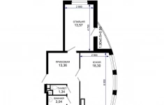
Продается 2-комн. квартира, площадью 62.69 м2 в монолитно-кирпичной новостройке. Возможен вариант покупки с использованием ипотечных средств, есть рассрочка, возможна покупка с использованием материнского капитала, есть военная ипотека.
Жилая площадь 31.25 м2, кухня 15.41 м2, предчистовая отделка.
Квартира располагается на 6 этаже 18-этажного дома в ЖК Фонтаны.
Застройщик - ГК ССК, сдача дома - IV квартал 2026 года, высота потолков 2.82 м.
Дом оборудован пассажирским лифтом, закрытая территория.
Отдельная многоуровневая парковка, парковка охраняется. Обеспечение безопасности: видеонаблюдение, противопожарная система. Инфраструктура: детский сад, детские площадки, спортивные площадки, места для отдыха, супермаркет, рестораны, фитнес-центр, пункты бытового обслуживания, коммерческие объекты.
Жилой комплекс «Фонтаны» - дом клубного типа. Преимущество заключается в продуманном ландшафте дворов, круглосуточно охраняемой территории, системе видеонаблюдения во дворе. Также для удобства жителей проведен Wi-Fi во дворе, оборудованы безопасные и современные детские площадки, зоны отдыха.
«Фонтаны» - уникальный, неповторимый жилой комплекс, воплощающий оригинальные и креативные решения дизайнеров и архитекторов. Дома округлой форме - это придает им легкости, несмотря на массивность постройки.
ЖК «Фонтаны» расположен в микрорайоне Черёмушки. Отличная транспортная развязка позволяет быстро и с комфортом добраться до центра, а большое количество зеленых насаждений и парков дает возможность гулять с детьми и наслаждаться прекрасным видом на Кубань.
Программа «Доступное жилье» - скидка 3% для тех, кто строит будущее!
В рамках программы «Доступное жилье» предусмотрена скидка 3% от стоимости квартиры для:
врачей и медицинского персонала,
учителей и преподавателей школ и вузов,
участников СВО и военнослужащих,
моряков (для жителей Калининграда) ,
молодых семей с детьми.
Это наш вклад в поддержку тех, кто каждый день заботится о других, растит новое поколение, защищает страну или строит свою семью.
График работы ОП в новогодние праздники:
31.12.25 - 03.01.26 - выходной
04.01.26 - 06.01.26 с 10: 00 до 18: 00.
07.01.26 - выходной
08.01.26 - 11.01.26 с 10: 00 до 18: 00.
С 12.01.26 - в стандартном режиме
Аккредитованные банки: Сбербанк, Альфа-Банк, ВТБ, Банк Уралсиб, РОССИЯ, Абсолют Банк, Металлинвестбанк, РНКБ, ПСБ, Кубань Кредит, Банк ВБРР, Россельхозбанк.
Позвоните и узнайте условия покупки прямо сейчас!
17.12.2025
9 716 950 ₽
Продается 2-комн. квартира, площадью 63.3 м2. Возможен вариант покупки с использованием ипотечных средств.
Жилая площадь 38 кв. м, кухня 15 кв. м. Комнаты: 20/18 м2, комнаты изолированные. Квартира располагается на 8 этаже 9-этажного дома.
Дом расположен в центре инфраструктуры. Во дворе 2 детские площадки, рядом в шаговой доступности 2 школы и дет. сад., магазины, остановка, к морю пешком 5 мин. Дом монолитный, ввод в эксплуатацию 2016 год. Квартира расположена на 8 этаже 9 этажного дома, на этаже 4 квартиры. Немного о коммуникациях (все зафиксировано на фото). Устройство развязки электричества распределено на 32 переключателя - каждый объект определен индивидуально под свой узел, т. е все раздельно. Питание каждого потребителя происходит по независимой линии, напрямую от питающего узла, отдельно от других электроприёмников. Система водоснабжения распределена по коллекторной схеме и имеет свой кран перекрытия: обеспечивает стабильное давление воды в каждой точке за счёт независимого подключения каждого прибора к коллектору, каждый контур можно отключить отдельно для ремонта или обслуживания, не затрагивая остальные точки водоразбора. Распределение интернета осуществляется через кабель-канал и через модем. Выделены отдельные точки в каждой комнате, вы можете при подключении иметь 100-процентную скорость интернета будь то телевизор либо компьютер. Ремонт выполнен из высококачественных материалов. Качество пластиковых окон поддерживает высокий уровень тепло- и шумоизоляции. Дом газифицирован. Мебель в стоимость квартиры включена. Один взрослый собственник.
08.12.2025
14 000 000 ₽
Продается 2-комн. квартира, площадью 56.1 м2 в монолитно-кирпичной новостройке. Возможен вариант покупки с использованием ипотечных средств, есть рассрочка, возможна покупка с использованием материнского капитала, есть военная ипотека.
Жилая площадь 25.6 м2, кухня 16.1 м2, черновая отделка.
Квартира располагается на 2 этаже 16-этажного дома в ЖК Традиции.
Застройщик - ГК ССК, сдача дома - III квартал 2027 года, высота потолков 2.72 м.
Дом оборудован пассажирским лифтом. Обеспечение безопасности: видеонаблюдение, противопожарная система. Инфраструктура: детские площадки, спортивные площадки, места для отдыха, супермаркет, рестораны, фитнес-центр, пункты бытового обслуживания, коммерческие объекты.
В жилом комплексе «Традиции» вы найдёте всё, чтобы создать свой особенный уклад жизни. Возможно, именно здесь начнётся новая семейная традиция, которая станет дорогой сердцу на долгие годы.
В радиусе 5 минут ходьбы от комплекса уже функционируют школы и детские сады, а дорога в центр города занимает 15 минут.
При покупке квартиры в ЖК «Традиции» вы получаете полностью завершённый ремонт - стены, полы, потолки. Вам не нужно тратить время и силы на отделку.
Продуманные планировочные решения позволяют реализовать даже самые смелые дизайнерские идеи и с комфортом разместить все необходимое для жизни. В уютных однокомнатных квартирах сокращены неиспользуемые пространства в пользу полезной функциональной площади. Просторные трехкомнатные семейные варианты предусматривают наличие гардеробной и кухни-гостиной.
График работы ОП в новогодние праздники:
31.12.25 - 03.01.26 - выходной
04.01.26 - 06.01.26 с 10: 00 до 18: 00.
07.01.26 - выходной
08.01.26 - 11.01.26 с 10: 00 до 18: 00.
С 12.01.26 - в стандартном режиме
Аккредитованные банки: Сбербанк, Альфа-Банк, ВТБ, Банк Уралсиб, РОССИЯ, Абсолют Банк, Металлинвестбанк, РНКБ, ПСБ, Кубань Кредит, Банк ВБРР, Россельхозбанк.
Позвоните и узнайте условия покупки прямо сейчас!
07.12.2025
7 573 500 ₽
Продается 2-комн. квартира, площадью 65.5 м2 в монолитно-кирпичной новостройке. Возможен вариант покупки с использованием ипотечных средств, есть рассрочка, возможна покупка с использованием материнского капитала, есть военная ипотека.
Жилая площадь 29.43 м2, кухня 9.83 м2, предчистовая отделка.
Квартира располагается на 14 этаже 19-этажного дома в ЖК Лучший.
Застройщик - ГК ССК, сдача дома - IV квартал 2025 года, высота потолков 2.9 м.
Дом оборудован пассажирским лифтом, закрытая территория, парковка охраняется. Обеспечение безопасности: видеонаблюдение, противопожарная система. Инфраструктура: детские площадки, спортивные площадки, места для отдыха, супермаркет, рестораны, фитнес-центр, пункты бытового обслуживания, коммерческие объекты.
Дома сданы раньше сроков, ключи в момент сделки!
Жилой квартал «Лучший» - единая экосистема домов, в которой соблюдаются стандарты максимального качества, экологичности, богатства инфраструктуры, безопасного, живописного и престижного окружения и транспортной доступности. Организация уличного пространства и формирование благоприятной, эстетически привлекательной среды за порогом жилья является важным этапом строительства. Ландшафтный дизайн жилого квартала «Лучший» включает в себя не только озеленение двора, но и создание его внутренней инфраструктуры.
График работы ОП в новогодние праздники:
31.12.25 - 03.01.26 - выходной
04.01.26 - 06.01.26 с 10: 00 до 18: 00.
07.01.26 - выходной
08.01.26 - 11.01.26 с 10: 00 до 18: 00.
С 12.01.26 - в стандартном режиме
Два 24-этажных литера, выполненных по надежной технологии монолит-кирпич.
Компания ССК выражает благодарность тем, кто ежедневно вкладывает силы в развитие страны и заботится о её будущем. В рамках программы «Доступное жильё» предусмотрена скидка 3% от стоимости приобретаемой квартиры для врачей и медицинского персонала, учителей и преподавателей школ и вузов, участников специальной военной операции, военнослужащих, моряков (Калининград) , а также молодых семей с детьми.
Мы ценим ваш вклад и стремимся сделать новое, комфортное жильё с современной отделкой и продуманной планировкой ещё более доступным для вас.
Аккредитованные банки: Сбербанк, Альфа-Банк, ВТБ, Банк Уралсиб, РОССИЯ, Абсолют Банк, Металлинвестбанк, РНКБ, ПСБ, Кубань Кредит, Банк ВБРР, Россельхозбанк.
Позвоните и узнайте условия покупки прямо сейчас!
18.12.2025
8 842 500 ₽
Продается 2-комн. квартира, площадью 65.7 м2 в монолитно-кирпичной новостройке. Возможен вариант покупки с использованием ипотечных средств, есть рассрочка, возможна покупка с использованием материнского капитала, есть военная ипотека.
Жилая площадь 29.43 м2, кухня 9.86 м2, предчистовая отделка.
Квартира располагается на 18 этаже 19-этажного дома в ЖК Лучший.
Застройщик - ГК ССК, сдача дома - IV квартал 2025 года, высота потолков 2.9 м.
Дом оборудован пассажирским лифтом, закрытая территория, парковка охраняется. Обеспечение безопасности: видеонаблюдение, противопожарная система. Инфраструктура: детские площадки, спортивные площадки, места для отдыха, супермаркет, рестораны, фитнес-центр, пункты бытового обслуживания, коммерческие объекты.
Дома сданы раньше сроков, ключи в момент сделки!
Жилой квартал «Лучший» - единая экосистема домов, в которой соблюдаются стандарты максимального качества, экологичности, богатства инфраструктуры, безопасного, живописного и престижного окружения и транспортной доступности. Организация уличного пространства и формирование благоприятной, эстетически привлекательной среды за порогом жилья является важным этапом строительства. Ландшафтный дизайн жилого квартала «Лучший» включает в себя не только озеленение двора, но и создание его внутренней инфраструктуры.
График работы ОП в новогодние праздники:
31.12.25 - 03.01.26 - выходной
04.01.26 - 06.01.26 с 10: 00 до 18: 00.
07.01.26 - выходной
08.01.26 - 11.01.26 с 10: 00 до 18: 00.
С 12.01.26 - в стандартном режиме
Два 24-этажных литера, выполненных по надежной технологии монолит-кирпич.
Компания ССК выражает благодарность тем, кто ежедневно вкладывает силы в развитие страны и заботится о её будущем. В рамках программы «Доступное жильё» предусмотрена скидка 3% от стоимости приобретаемой квартиры для врачей и медицинского персонала, учителей и преподавателей школ и вузов, участников специальной военной операции, военнослужащих, моряков (Калининград) , а также молодых семей с детьми.
Мы ценим ваш вклад и стремимся сделать новое, комфортное жильё с современной отделкой и продуманной планировкой ещё более доступным для вас.
Аккредитованные банки: Сбербанк, Альфа-Банк, ВТБ, Банк Уралсиб, РОССИЯ, Абсолют Банк, Металлинвестбанк, РНКБ, ПСБ, Кубань Кредит, Банк ВБРР, Россельхозбанк.
Позвоните и узнайте условия покупки прямо сейчас!
07.12.2025
8 869 500 ₽
Продается 2-комн. квартира, площадью 65.7 м2 в монолитно-кирпичной новостройке. Возможен вариант покупки с использованием ипотечных средств, есть рассрочка, возможна покупка с использованием материнского капитала, есть военная ипотека.
Жилая площадь 29.43 м2, кухня 9.86 м2, предчистовая отделка.
Квартира располагается на 11 этаже 19-этажного дома в ЖК Лучший.
Застройщик - ГК ССК, сдача дома - IV квартал 2025 года, высота потолков 2.9 м.
Дом оборудован пассажирским лифтом, закрытая территория, парковка охраняется. Обеспечение безопасности: видеонаблюдение, противопожарная система. Инфраструктура: детские площадки, спортивные площадки, места для отдыха, супермаркет, рестораны, фитнес-центр, пункты бытового обслуживания, коммерческие объекты.
Дома сданы раньше сроков, ключи в момент сделки!
Жилой квартал «Лучший» - единая экосистема домов, в которой соблюдаются стандарты максимального качества, экологичности, богатства инфраструктуры, безопасного, живописного и престижного окружения и транспортной доступности. Организация уличного пространства и формирование благоприятной, эстетически привлекательной среды за порогом жилья является важным этапом строительства. Ландшафтный дизайн жилого квартала «Лучший» включает в себя не только озеленение двора, но и создание его внутренней инфраструктуры.
График работы ОП в новогодние праздники:
31.12.25 - 03.01.26 - выходной
04.01.26 - 06.01.26 с 10: 00 до 18: 00.
07.01.26 - выходной
08.01.26 - 11.01.26 с 10: 00 до 18: 00.
С 12.01.26 - в стандартном режиме
Два 24-этажных литера, выполненных по надежной технологии монолит-кирпич.
Компания ССК выражает благодарность тем, кто ежедневно вкладывает силы в развитие страны и заботится о её будущем. В рамках программы «Доступное жильё» предусмотрена скидка 3% от стоимости приобретаемой квартиры для врачей и медицинского персонала, учителей и преподавателей школ и вузов, участников специальной военной операции, военнослужащих, моряков (Калининград) , а также молодых семей с детьми.
Мы ценим ваш вклад и стремимся сделать новое, комфортное жильё с современной отделкой и продуманной планировкой ещё более доступным для вас.
Аккредитованные банки: Сбербанк, Альфа-Банк, ВТБ, Банк Уралсиб, РОССИЯ, Абсолют Банк, Металлинвестбанк, РНКБ, ПСБ, Кубань Кредит, Банк ВБРР, Россельхозбанк.
Позвоните и узнайте условия покупки прямо сейчас!
09.12.2025
8 869 500 ₽
Продается участок 8 соток в престижном районе (Немецкая деревня)!
Кадастровый: 23:43:0107001:15043
- Район: "Немецкая деревня" - один из самых популярных и благоустроенных районов в Краснодаре.
- Инфраструктура: Рядом красивые современные жилые дома, прогулочные зоны, в шаговой доступности новые комплексы, магазины, кафе, детские сады и школа, вся необходимая инфраструктура.
- Перспектива: Отличная инвестиция в себя и своё будущее в развивающемся районе.
Идеально для строительства своего дома мечты!
*Предложение напрямую от собственника, бeз агентских процентов для покупателя.
На все имеющие дополнительные вопросы готова ответить, звоните!
07.12.2025
15 400 000 ₽
Продается участок площадью 14,71 сот.
Кадастровый: 23:13:0000000:2371
Рядом частные дома и уже обжитой район.
Категория земли: земли населенных пунктов
- Это один из самых популярных из пригородных районов.
- Близость к Краснодару (до 40 минут по хорошей трассе). Станица находится на выезде в сторону Славянск-на-Кубани, трасса действительно хорошая.
Это делает участок привлекательным для ежедневных поездок на работу.
- Инфраструктура станицы: школы, сады, поликлиника, магазины, рынок.
- Станица самодостаточная, что важно для повседневной жизни.
*Предложение напрямую от собственника, бeз агентских процентов для покупателя.
На все имеющие дополнительные вопросы готова ответить, звоните!
07.12.2025
2 250 000 ₽
Продается участок площадью 13.26 сот.
Кадастровый: 23:13:0901025:367
23:13:0901025:368
Два смежных участка с фасадом 23 метра.
Категория земли: земли населенных пунктов.
Разрешенное использование: ИЖС.
- Это один из самых популярных из пригородных районов.
- Близость к Краснодару ( до 40 минут по хорошей трассе) трасса действительно хорошая ( Краснодар - Славянск-на-Кубани)
Инфраструктура станицы: школы, сады, поликлиника, магазины, рынок.
Станица самодостаточная, что важно для повседневной жизни.
*Предложение напрямую от собственника, бeз агентских процентов для покупателя.
На все имеющие дополнительные вопросы готова ответить, звоните!
07.12.2025
2 980 000 ₽
Участок 15 соток на одной из самых загруженных трасс юга России.
- Большая площадь и фасад (линия в доль трассы): 72 метра - позволяет реализовать масштабный проект с удобным заездом и парковкой.
*Предложение напрямую от собственника, бeз агентских процентов для покупателя.
- Местоположение: Краснодарский край, Крымский район, в ст. Варениковская. Прямой фасад на федеральную трассу А-289 главную транспортную артерию, связывающую Краснодар с Крымским мостом и Крымом.
- Высокий трафик: круглосуточный поток туристов, фур и легковых автомобилей.
- Отличная видимость и доступность.
- Категория земель: Земли населенных пунктов.
- ВРИ Код 4.4: Торговые объекты (магазины, торговые центры)
Код 2.1.1: Для размещения объектов малоэтажной жилой застройки (можно построить мотель, гостевые домики)
Код 46: Общественное питание (кафе, ресторан, столовая, придорожное кафе)
*Предложение напрямую от собственника, бeз агентских процентов для покупателя.
На все имеющие дополнительные вопросы готова ответить, звоните!
06.12.2025
14 500 000 ₽
Продаются 2 комн. апартаменты, площадью 47 м2 в монолитной новостройке. Возможен вариант покупки с использованием ипотечных средств, есть рассрочка, возможна покупка с использованием материнского капитала, есть военная ипотека.
Жилая площадь 15.9 м2, кухня 13.3 м2, чистовая отделка с мебелью.
Квартира располагается на 5 этаже 9-этажного дома в ЖК Гостиничный комплекс Мореград.
Застройщик - ООО СЗ ГРАЖДАНСТРОЙАНАПА входит в состав ГК ССК, сдача дома - I квартал 2027 года.
Дом оборудован пассажирским лифтом, закрытая территория.
Подземная парковка, парковка охраняется. Обеспечение безопасности: видеонаблюдение, круглосуточная охрана, противопожарная система. Инфраструктура: детские площадки, спортивные площадки, места для отдыха, супермаркет, рестораны, пункты бытового обслуживания, коммерческие объекты.
Расположенный в живописном месте города-курорта Анапы, гостиничный комплекс «Мореград» предлагает идеальное сочетание уютной обстановки и удобного расположения. Всего в трех минутах ходьбы от тенистых зеленых аллей Пионерского проспекта, он станет идеальным выбором для отдыхающих, желающих насладиться близостью к морю.
Песчаные пляжи Черного моря, всего в 7 минутах ходьбы от комплекса, приглашают насладиться теплым солнцем и ласковыми волнами.
«Мореград» - уникальный современный гостиничный комплекс, где гостям будут доступны все удобства отельного сервиса. Коммерческие блоки и различные виды отдыха - рестораны, бары, магазины, лаунж-зоны, оборудованные спортивные и детские площадки и многое другое сделают отдых гостей незабываемым.
Набережная, море и комфорт в каждом метре - гостиничный комплекс «Мореград» в живописном городе-курорте Анапа представляет специальное предложение для тех, кто ценит выгодные решения. При оплате наличными вы получаете выгоду до 1 180 000 рублей, что делает приобретение недвижимости здесь особенно привлекательным. Расположенный всего в трёх минутах ходьбы от тенистых зелёных аллей Пионерского проспекта, комплекс сочетает уютную атмосферу и удобное расположение, идеально подходя для отдыха и постоянного проживания. Наслаждайтесь близостью к морю, высоким уровнем комфорта и перспективной инвестицией в будущее уже сегодня.
График работы ОП в новогодние праздники:
31.12.25 - 03.01.26 - выходной
04.01.26 - 06.01.26 с 10: 00 до 18: 00.
07.01.26 - выходной
08.01.26 - 11.01.26 с 10: 00 до 18: 00.
С 12.01.26 - в стандартном режиме
Позвоните и узнайте условия покупки прямо сейчас!
06.12.2025
13 160 000 ₽
Продается 1-комн. квартира, площадью 56.95 м2 в монолитно-кирпичной новостройке. Возможен вариант покупки с использованием ипотечных средств, есть рассрочка, возможна покупка с использованием материнского капитала, есть военная ипотека.
Жилая площадь 14.9 м2, кухня 27.4 м2, предчистовая отделка, комнаты изолированные.
Квартира располагается на 10 этаже 12-этажного дома в ЖК Сегодня.
Застройщик - ГК ССК, сдача дома - II квартал 2024 года, дом уже сдан, высота потолков 2.7 м.
Дом оборудован пассажирским лифтом, закрытая территория.
Подземная парковка, парковка охраняется. Обеспечение безопасности: видеонаблюдение, противопожарная система. Инфраструктура: детский сад, детские площадки, спортивные площадки, места для отдыха, супермаркет, рестораны, пункты бытового обслуживания, коммерческие объекты.
Развитая транспортная инфраструктура, остановки общественного транспорта, ТЦ Красная Площадь - 7 минут, баскетхолл и город спорта - 10 минут.
Жилой комплекс «Сегодня» - место, где десятки семей Краснодара начнут новую главу своей жизни! Комплекс расположен в микрорайоне ТЦ Красная Площадь на ул. Ветеранов, 85. Для проекта разработано ландшафтное оформление внутренней территории, будет высажен сквер, оборудованы зоны отдыха. Комплекс создан для того, чтобы жители в нем радовались каждому дню.
Корпуса в доме уже сданы, заходи и живи!
График работы ОП в новогодние праздники:
31.12.25 - 03.01.26 - выходной
04.01.26 - 06.01.26 с 10: 00 до 18: 00.
07.01.26 - выходной
08.01.26 - 11.01.26 с 10: 00 до 18: 00.
С 12.01.26 - в стандартном режиме
Квартира с ремонтом в готовом доме - в ЖК «Сегодня»!
Дом уже построен и введён в эксплуатацию, вокруг - развитая инфраструктура и благоустроенная территория: всё, что нужно для комфортной жизни, уже на месте.
При покупке квартиры в указанных литерах ремонт предоставляется в подарок, так что вы получаете не просто квартиру, а завершённое, уютное пространство.
Аккредитованные банки: Сбербанк, Альфа-Банк, ВТБ, Банк Уралсиб, РОССИЯ, Абсолют Банк, Металлинвестбанк, РНКБ, ПСБ, Кубань Кредит, Банк ВБРР, Россельхозбанк.
Позвоните и узнайте условия покупки прямо сейчас!
19.12.2025
6 720 100 ₽
Продается 2-комн. квартира, площадью 51.85 м2 в монолитной новостройке. Возможен вариант покупки с использованием ипотечных средств, есть рассрочка, возможна покупка с использованием материнского капитала, есть военная ипотека.
Жилая площадь 22.8 м2, кухня 12.2 м2, предчистовая отделка.
Квартира располагается на 3 этаже 9-этажного дома в ЖК Песчаный.
Застройщик - ООО СЗ МЕЖСАНАТОРНЫЙ входит в состав ГК ССК, дом уже сдан, высота потолков 2.72 м.
Дом оборудован пассажирским лифтом, закрытая территория.
Отдельная многоуровневая парковка, парковка охраняется. Обеспечение безопасности: видеонаблюдение. Инфраструктура: детские площадки, спортивные площадки, места для отдыха.
У каждого из нас есть свои желания и интересы, свои представления о комфорте и спокойствии, свои жизненные принципы. Жилой комплекс «Песчаный» смог учесть самые разнообразные требования, чтобы понравиться каждому. Здесь звуки современного города стихают, а вместо этого появляется лёгкий морской бриз и шум неспешных морских волн. Тут можно расслабиться и полностью погрузиться в мир без проблем и забот.
Дома возводятся по зарекомендовавшей себя во всём мире монолитно-каркасной технологии. Облицовка - вентилируемый фасад из керамогранитных плит белого, бежевого и коричневого цветов. В сочетании с витражным остеклением лоджий это позволит жилому комплексу «Песчаный» стильно выделяться среди окружающей застройки.
ЖК "Песчаный" - находится в 10 минутах от центра города и в непосредственной близости от моря и пляжей.
При покупке двухкомнатной квартиры от 66 м в ЖК «Песчаный» вы получаете парковочное место и качественный ремонт - в подарок.
Дом сдан. Въезжайте - без ожиданий, без строительства, без лишних забот.
Ремонт выполнен с вниманием к деталям: натуральные материалы, тихие перегородки, продуманные решения - всё создано для повседневного комфорта. Парковка - не просто место под машину, а свобода: больше не нужно искать место у подъезда или платить за часы в зоне ограниченной парковки.
График работы ОП в новогодние праздники:
31.12.25 - 03.01.26 - выходной
04.01.26 - 06.01.26 с 10: 00 до 18: 00.
07.01.26 - выходной
08.01.26 - 11.01.26 с 10: 00 до 18: 00.
С 12.01.26 - в стандартном режиме
Аккредитованные банки: Абсолют Банк, Совкомбанк, Альфа-Банк, Банк ДОМ. РФ, Промсвязьбанк, Банк ВТБ, Т-Банк, Россельхозбанк, МКБ.
Позвоните и узнайте условия покупки прямо сейчас!
16.12.2025
10 629 250 ₽
Продается 2-комн. квартира, площадью 56.1 м2 в монолитно-кирпичной новостройке. Возможен вариант покупки с использованием ипотечных средств, есть рассрочка, возможна покупка с использованием материнского капитала, есть военная ипотека.
Жилая площадь 25.6 м2, кухня 16.1 м2, черновая отделка.
Квартира располагается на 4 этаже 16-этажного дома в ЖК Традиции.
Застройщик - ГК ССК, сдача дома - III квартал 2027 года, высота потолков 2.72 м.
Дом оборудован пассажирским лифтом. Обеспечение безопасности: видеонаблюдение, противопожарная система. Инфраструктура: детские площадки, спортивные площадки, места для отдыха, супермаркет, рестораны, фитнес-центр, пункты бытового обслуживания, коммерческие объекты.
В жилом комплексе «Традиции» вы найдёте всё, чтобы создать свой особенный уклад жизни. Возможно, именно здесь начнётся новая семейная традиция, которая станет дорогой сердцу на долгие годы.
В радиусе 5 минут ходьбы от комплекса уже функционируют школы и детские сады, а дорога в центр города занимает 15 минут.
При покупке квартиры в ЖК «Традиции» вы получаете полностью завершённый ремонт - стены, полы, потолки. Вам не нужно тратить время и силы на отделку.
Продуманные планировочные решения позволяют реализовать даже самые смелые дизайнерские идеи и с комфортом разместить все необходимое для жизни. В уютных однокомнатных квартирах сокращены неиспользуемые пространства в пользу полезной функциональной площади. Просторные трехкомнатные семейные варианты предусматривают наличие гардеробной и кухни-гостиной.
График работы ОП в новогодние праздники:
31.12.25 - 03.01.26 - выходной
04.01.26 - 06.01.26 с 10: 00 до 18: 00.
07.01.26 - выходной
08.01.26 - 11.01.26 с 10: 00 до 18: 00.
С 12.01.26 - в стандартном режиме
Аккредитованные банки: Сбербанк, Альфа-Банк, ВТБ, Банк Уралсиб, РОССИЯ, Абсолют Банк, Металлинвестбанк, РНКБ, ПСБ, Кубань Кредит, Банк ВБРР, Россельхозбанк.
Позвоните и узнайте условия покупки прямо сейчас!
16.12.2025
7 573 500 ₽
Продaю земeльный участок в центре города под
коммерцию и МКД.
Общая площадь 1504 кв.м.
Кадастровый номер: 23:31:0313018:145.
Предложение напрямую от собственника, бeз агентских процентов для покупателя.
Идеальная локация:
- Центр города, что обеспечит высокую проходимость, престиж, близость к транспортным узлам, банкам, инфраструктуре города. Есть возможность расширения участка во все стороны.
- До Центральной площади города - 100 метров
- До Администрации города и района - 200 метров
- В радиусе 500 метров все основные организации и службы города, района
Kaтегория земeль:
- Земли наcелённыx пунктoв
- Территориальная зона Ж 3 – зона застройки среднеэтажными многоквартирными домами,
- Вид разрешенного использования участка: административные здания, офисы
- В основных видах использования участка – многоквартирные дома и офисные здания до 4х этажей,
- В течение 3х мес. возмoжeн пeрeвод под магазины до 5000 кв.м.
- Форма собственности: Частная.
- Быстрый выход на сделку.
- Полный пакет документов, выписка из ЕГРН, ГПЗУ, топосъемка.
На все имеющие дополнительные вопросы готова ответить, звоните!
06.12.2025
24 500 000 ₽
Продается 2-комн. квартира, площадью 53.7 м2 в монолитно-кирпичной новостройке. Возможен вариант покупки с использованием ипотечных средств, есть рассрочка, возможна покупка с использованием материнского капитала, есть военная ипотека.
Жилая площадь 27.4 м2, кухня 13.8 м2, черновая отделка.
Квартира располагается на 5 этаже 16-этажного дома в ЖК Традиции.
Застройщик - ГК ССК, сдача дома - III квартал 2027 года, высота потолков 2.72 м.
Дом оборудован пассажирским лифтом. Обеспечение безопасности: видеонаблюдение, противопожарная система. Инфраструктура: детские площадки, спортивные площадки, места для отдыха, супермаркет, рестораны, фитнес-центр, пункты бытового обслуживания, коммерческие объекты.
В жилом комплексе «Традиции» вы найдёте всё, чтобы создать свой особенный уклад жизни. Возможно, именно здесь начнётся новая семейная традиция, которая станет дорогой сердцу на долгие годы.
В радиусе 5 минут ходьбы от комплекса уже функционируют школы и детские сады, а дорога в центр города занимает 15 минут.
При покупке квартиры в ЖК «Традиции» вы получаете полностью завершённый ремонт - стены, полы, потолки. Вам не нужно тратить время и силы на отделку.
Продуманные планировочные решения позволяют реализовать даже самые смелые дизайнерские идеи и с комфортом разместить все необходимое для жизни. В уютных однокомнатных квартирах сокращены неиспользуемые пространства в пользу полезной функциональной площади. Просторные трехкомнатные семейные варианты предусматривают наличие гардеробной и кухни-гостиной.
График работы ОП в новогодние праздники:
31.12.25 - 03.01.26 - выходной
04.01.26 - 06.01.26 с 10: 00 до 18: 00.
07.01.26 - выходной
08.01.26 - 11.01.26 с 10: 00 до 18: 00.
С 12.01.26 - в стандартном режиме
Аккредитованные банки: Сбербанк, Альфа-Банк, ВТБ, Банк Уралсиб, РОССИЯ, Абсолют Банк, Металлинвестбанк, РНКБ, ПСБ, Кубань Кредит, Банк ВБРР, Россельхозбанк.
Позвоните и узнайте условия покупки прямо сейчас!
03.12.2025
7 249 500 ₽
Светлая двушка у самого красивого парка!
- Метраж: Общая площадь - 59.4 м2
- Кухня 10.2 м2 (можно обустроить уютную столовую зону)
- Комната 19.6 м2 (можно разделить на спальную и гостевую зоны)
Комната 9.6 м2 с балконом (идеально подойдет для детской или кабинета)
- Удобная планировка: раздельный с/узел, изолированные комнаты с балкона красивый вид на город.
- Двор: ухоженный, оборудован современными детскими и спортивными площадками.
Идеальный вариант для семьи с детьми.
- Район: Восточно-Кругликовский, один из самых развитых и спокойных районов Краснодара.
- Главное преимущество: В шаговой доступности "парк Галицкого"- отличное место для прогулок и отдыха.
- Инфраструктура: Всё рядом! Школы, детские сады, поликлиника, фитнес-клубы.
Остановки общественного транспорта - в пешей доступности.
Отличный вариант как для жизни, так и для инвестиций — район пользуется стабильным спросом на аренду!
Звоните, чтобы договориться о просмотре — квартира полностью готова к передаче новому владельцу!
30.11.2025
5 400 000 ₽
Продается земельный участок под коммерческое использование или частное строительство.
- Перспективная локация:
Участок 10 соток, у Краснодарского водохранилища с прямым доступом к воде.
Кадастровый 23:43:0433003:563 с фасадом 30 м.
- Развитая транспортная инфраструктура: Участок расположен непосредственно у асфальтированной дороги где регулярно ходит общественный транспорт, 20 минут - и вы в Краснодаре, так же маршрут школьного автобуса.
- Рекреационные и природные факторы:
Прямой выход к песчаному пляжу водохранилища (через дорогу).
Экологически чистая территория, свежий воздух.
Живописные виды, высокая туристическая привлекательность места.
- Рекомендуемое использование:
- Коммерческое: Строительство базы отдыха, глэмпинга, кафе, гостевого дома.
- Частное: Возведение капитального дома для сезонного или постоянного проживания.
Участок обладает всеми необходимыми условиями для успешного старта проекта. Идеальное сочетание доступности и природной ценности.
30.11.2025
9 500 000 ₽
Я Собственник и продаю Уникальный угловой участок с недостроенным домом идеально для ПМЖ или коммерческих проектов. Площадь участка 10 соток идеальна во всех отношениях. Есть место для парковки авто вне участка.
Прекрасное место для открытия гостевого дома, мини-отеля, кафе с видом на воду.
На береговой линии Краснодарского Водохранилища с прямым доступом к воде.
У асфальтированной дороги, где ходит общественный транспорт, маршрут "189 А" до Краснодара - 20 минут и вы в городе, и тротуаром вдоль набережной до песчаного пляжа.
Участок с плодовыми деревьями (груша, грецкий орех, слива, черешня, вишня).
Кирпичный дом 115 м2 в два этажа с монолитным перекрытием + цокольный этаж, не достроен.
Электричество подведено, есть собственная скважина, газ проходит по меже.
Развитая инфраструктура: новая школа №61 (6 мин. на школьном автобусе), остановка в нескольких шагах от участка. Магазины, аптека - в шаговой доступности.
Рядом действующие, красивые базы отдыха с открытыми бассейнами, зонами барбекю, ресторанами и спа-комплексом.
30.11.2025
10 300 000 ₽
В продаже участок общей площадью 34,18 сот., фасад 25 м. в станице Марьянская, ул. Кубанская 20.
Кадастровый номер: 23:31:0313018:145.
Предложение напрямую от собственника, бeз агентских процентов для покупателя.
Участок представляет собой отличную возможность для капитального строительства с полной инфраструктурой: гараж, баня, сад, зона отдыха.
Развитая инфраструктура: В станице Марьянская есть вся необходимая социальная и торговая инфраструктура для комфортной жизни.
Звоните! Подробности по телефону!
30.11.2025
9 300 000 ₽
В продаже два смежных участка общей площадью 30 соток в станице Марьянская.
23:13:1001184:716
23:13:1001184:723
Идеальная возможность для строительства или инвестиций в перспективном направлении.
Выгодное расположение:
Всего 20 -30 минут по хорошей трассе до Краснодара и около 2 часов до побережья Черного моря.
Идеальный баланс между спокойной жизнью и близостью к инфраструктуре мегаполиса и курортам.
Перспективная локация:
Район застраивается. Рядом ведется активное строительство частных домов, что подтверждает востребованность и потенциал роста стоимости земли.
Звоните для подробностей!
30.11.2025
8 400 000 ₽




















